
|
很多農村都生有二胎,有二個孩子,可以相互做伴,家里也熱熱鬧鬧。在建房的時候,孩子的房間肯定要考慮好。建兩棟成本大了,負擔大了,不如建個三層的,一人一層,哪怕孩子以后在城市安了家,回農村的時候也有他們自己的獨立空間。今天的這4款戶型,面積都比較適中,開間11米,進深12米,宅基地在這個范圍都可以用的上。 戶型1
這是一款新中式風格的農村別墅,對稱式結構非常經典大氣。淺色的外墻搭配深色的線條,是目前最流行的搭配風格,遠遠看上去,舒適低調不張揚,彰顯戶主的品味。
進門的入口玄關可以布置成堂屋,作為農村生活習俗傳承的重要場所。客廳為開放式,比較寬敞通透。主臥室很大有20平,樓梯間下被設置為雜屋間很實用。
二層客廳和開放式書房連成一線,空間寬敞。兩間朝南的臥室均帶有內陽臺。
這一層主要為套間設計,主臥室附衣帽間、衛生間和書房,屋外有寬敞的大露臺。 戶型2
很簡約普通的一款三層別墅,帶有車庫,戶型方正層次感分明,黃色的外墻,很時尚,入戶門廳大氣。
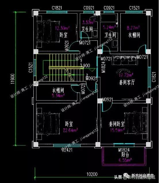
戶型3
這是一款大氣豪華的歐式風格農村別墅,奢華宮殿風,建這個一棟別墅在農村,一眼就可以看出主人家的氣迫和身份。
一層設計有二間臥室,二個衛生間,廚房和餐廳并排而立,比較方便,客廳為復式,比較獨立,動靜分離,適宜居家。
二層為休息場所,三間臥室,2個衛生間和衣帽間的布置,足夠使用。
三層二間臥室和娛樂室,家庭聚會時,客人來的再多也不怕住不下。 戶型4
明亮大氣的歐式農村別墅,兩大開間,大門居右側,戶型可以左右調換。橘黃色的屋頂歡快又溫暖,配上精致的雕花,優雅又時尚。
入戶玄關可以設置為堂屋,客廳有將進30個平方,大氣實用,除了基本的生活空間,還配有儲藏室,用來存放雜物或者做洗衣房都不浪費。
二樓設計有二個套間,一個套間帶有臥室、客廳、衣帽間和衛生間,一個套間帶有衣帽間,另有一間次臥和公衛。
三層三間臥室和屋頂露臺,客廳寬敞,臥室多,這樣的戶型建在農村美觀又實用,既不浪費空間,又節省造價。 圖紙之家-專注農村別墅/自建房設計18年,集合國內200余位經驗豐富的設計師,被評為口碑最好的農村建筑設計公司! |

140平方米三層半新農村房屋別墅設計圖,帶車庫
占地:140平方米
兩層三間農村房屋設計圖,新農村住宅方案推薦
占地:155平方米
一層半中式合院別墅設計圖,帶配房,有庭有院有品位
占地:135平方米左右
110平方米農村三層復式房屋施工圖,通透時尚,低調又奢華
占地:107.98平方米
農村二層四合院設計圖,秒殺各種洋別墅
占地:220平方米
農村簡單雙拼小戶型,總面積190平方米,合理的利用了每一個空間
占地:190平方米
二層兄弟雙拼農村別墅圖新中式,兄弟這樣建房,大氣省錢
占地:143.412平方米
130平方米復式三層別墅房屋設計圖,含外觀效果圖
占地:130平方米
二層半農村小別墅設計方案圖,南方設計圖精選
占地:82平方米
二層復式小別墅設計圖,樓中樓結構,外觀漂亮,簡單
占地:120平方米
100平內的三層豪華歐式別墅房屋設計圖紙 ,簡歐風格
占地:94平方米左右
時尚一層別墅圖,一層這樣蓋房最漂亮
占地:160平方米
農村15萬元二層小樓圖,經濟實用小別墅設計圖
占地:105平方米
170平方米歐式農村兩層小別墅設計圖紙帶外觀圖,精致好看
占地:多種戶型
中式徽派二層農村別墅設計圖,白墻黛瓦馬頭墻,永不過時
占地:171平方米
130平方米農村兩層別墅圖紙及效果圖12X11米
占地:133平方米
農村三層雙拼房屋建筑施工設計圖紙,帶車庫
占地:180平方米
140-150平方米新農村別墅設計圖紙,帶外觀效果圖,復式戶型
占地:146平方米
農村一層雙拼別墅設計方案,豐富的室內空間配置,滿足您的生活
占地:358.46平方米
適合小面寬宅基地的兩開間別墅設計圖,8.5米乘13.5米
占地:107.66平方米
推薦:10套新農村自建房設計圖,2026年最新設計
閱讀次數:4825737次
100套鄉村別墅圖片大全,2026年最新設計
閱讀次數:2492203次
6款農村蓋一層平房的設計圖,10萬元就能建起來
閱讀次數:1852637次
這11個一層農村自建房別墅火爆了朋友圈!我最喜歡戶型十!你呢
閱讀次數:750268次
農村6萬元建一層小別墅圖,你敢相信嗎
閱讀次數:567686次
農村5萬塊就能自建房,6套普通房子設計圖分享,你沒看錯!
閱讀次數:419410次
8套農村漂亮三間平房圖片,非常適合在農村修建!
閱讀次數:411197次
農村自建房化糞池怎么做?附方案及施工過程
閱讀次數:391783次
農村一層三間平房設計圖,告別土氣養老房,讓人忍不住點贊
閱讀次數:350581次
新農村二層樓房圖片造價12萬,挑一套回家建房吧!
閱讀次數:349126次
