
|
西班牙風格是比較古典的建筑形態,它實際上是地中海風格的一種,融合了諸多歷史因素內斂而沉穩。不僅擁有良好的景觀,精美的外形,還有安逸舒適的生活休閑空間,讓住戶全方位感受生活的美好。
西班牙不需要講究太多的技巧而是保持簡單的信念,捕捉光線、取材于自然,大膽而自由地運用色彩、造型。
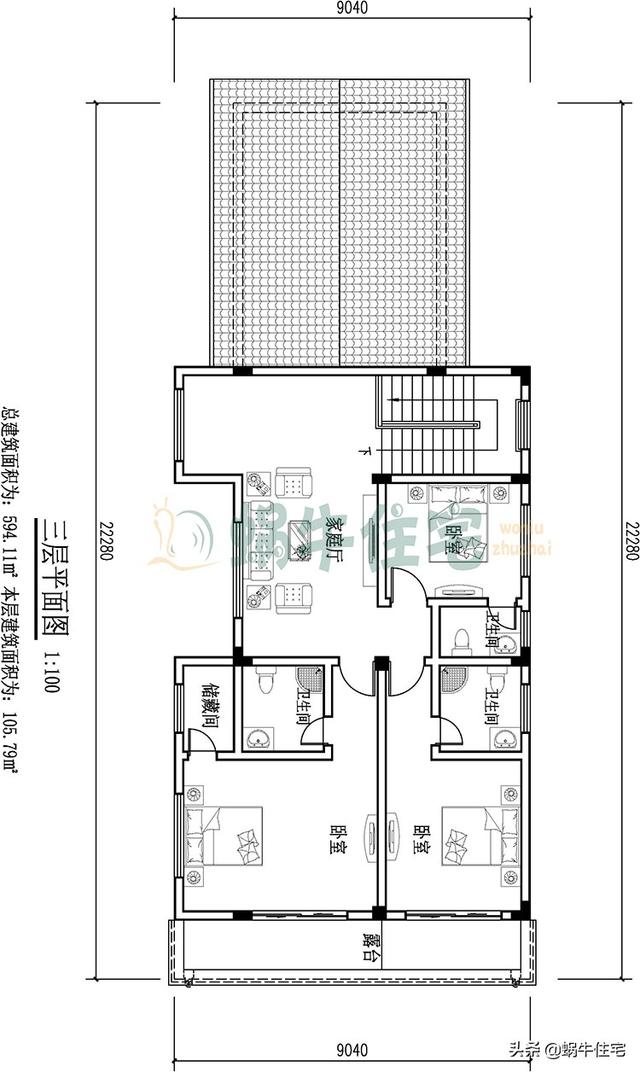
開間:22.28米,進深:9.04米、首層占地面積:166.56方米、總建筑面積:594.11平方米,結構形式:框架結構,主體造價:48萬
地下室設的是電動地下室。
1層;玄關、會客廳、兩室兩廳、廚房、餐廳。
二層:家庭廳、主臥室(帶內衛、衣帽間)、兩個臥室帶洗手間、臥室、公衛、露臺
三層:家庭廳、臥室(帶內衛、儲藏間、露臺)、臥室(帶內衛、露臺)、臥室(帶內衛)
圖紙之家-專注農村別墅/自建房設計18年,集合國內200余位經驗豐富的設計師,被評為口碑最好的農村建筑設計公司! |

私人二層中式四合院別墅建筑設計圖,新農村經濟實用戶型
占地:145平方米
新款鄉村二層半別墅設計圖紙帶效果圖,三層別墅外觀圖片大全
占地:108.795平方米
16米X12米四開間二層別墅設計圖,造型美觀經濟實用
占地:198平方米
帶商鋪挑高的三層別墅房屋設計圖,商鋪挑高,層高比較高
占地:118平方米
鄉下一層自建養老平房戶型圖及全套圖紙,占地面積200左右
占地:200平方米
2026年最新三層房屋設計圖紙,12米×11米,實用接地氣
占地:130平方米
中式二層三合院設計圖紙含外觀效果圖片,大氣又實用
占地:216.04平方米
新農村三層樓房住宅設計方案,戶型圖、效果圖、全套施工圖
占地:180平方米
高端大氣的農村四層樓房別墅設計圖,戶型真不錯,占地130多平
占地:135.31平方米
現代四合院別墅設計圖紙,二層戶型,外觀時尚漂亮
占地:287.97平方米
五間二層別墅設計圖紙,樓梯設計的無比大氣
占地:300平方米
帶院子的四間二層別墅房屋設計圖,帶獨立車庫
占地:350平方米
小戶型三層別墅房屋設計圖紙,占地80多平米,麻雀雖小五臟俱全
占地:80平方米
歐式大氣三層小別墅設計圖紙,外觀、造型大方,色彩明快
占地:140平方米
經典小戶型新農村房屋住宅設計圖,10萬左右
占地:80平方米
現代風平屋頂一層自建房設計,經濟時尚
占地:147.17平方米
經典農村三層樓房設計圖,10個不同尺寸戶型,各種戶型供您選擇
占地:多種
農村二層半兄弟共建房別墅設計圖,復式戶型帶車庫,面寬24米
占地:312平方米左右
農村二層小別墅自建房屋設計圖,客廳中空,占地150平米
占地:150平方米
建一棟就成了村里的門面擔當!三層歐式別墅,左右對稱太氣派
占地:173.67平方米
推薦:10套新農村自建房設計圖,2026年最新設計
閱讀次數:4825737次
100套鄉村別墅圖片大全,2026年最新設計
閱讀次數:2492203次
6款農村蓋一層平房的設計圖,10萬元就能建起來
閱讀次數:1852637次
這11個一層農村自建房別墅火爆了朋友圈!我最喜歡戶型十!你呢
閱讀次數:750268次
農村6萬元建一層小別墅圖,你敢相信嗎
閱讀次數:567686次
農村5萬塊就能自建房,6套普通房子設計圖分享,你沒看錯!
閱讀次數:419410次
8套農村漂亮三間平房圖片,非常適合在農村修建!
閱讀次數:411197次
農村自建房化糞池怎么做?附方案及施工過程
閱讀次數:391783次
農村一層三間平房設計圖,告別土氣養老房,讓人忍不住點贊
閱讀次數:350581次
新農村二層樓房圖片造價12萬,挑一套回家建房吧!
閱讀次數:349126次
