
|
現在中國的發展日新月異,隨之城市的房價也越來越貴,很多人將農村和城市做了一番對比,城里吃喝拉撒各種消費都要錢,停個車都是一筆不菲的開銷。而在農村建一棟別墅只要符合政策要求,想建漂亮就建漂亮,想簡單就可以簡單,而且更加適合我們居住。 戶型一
這是一棟帶有美式風情的別墅,無論是在建在城里還是鄉里,都是非常亮眼的存在。富有錯落感的屋頂和老虎窗設計,經濟實用的外墻裝飾材料,既漂亮又經濟。
占地面積114.36平方米,室內布局滿足兩代人的基本需求沒有問題,客廳餐廳縱向連接,延伸視覺,擴展活動空間。 戶型二
雖然是一層別墅,但是卻風情滿滿,一看就特別適合山青水綠的農村。
開間12.8米,進深13.2米,占地面積175.26平方米。屋外、廊檐設計是一個亮點,后院有陽臺,朝北的兩間臥室直通陽臺,房單獨做了柴火房。 戶型三
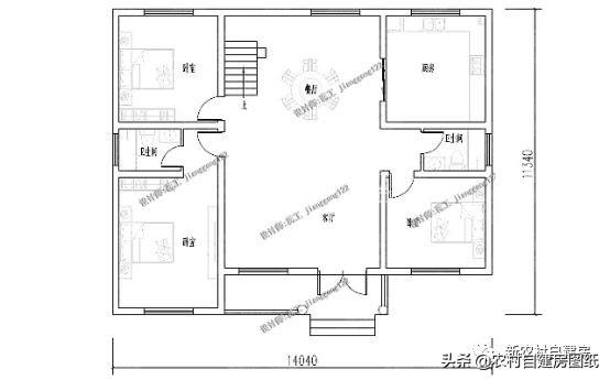
這一款是簡單歐式風格的別墅,整體看起來方正大氣,采光優良。
開間12.1米,進深11.8米,占地面積125.77平方米。旋轉樓梯+調控客廳,同時還有觀景陽臺。 戶型四
濃濃的歐式風情,豪華氣派,配色經典,外觀別致,看上去就讓人眼前一亮。
開間12.3米,進深11米,占地面積131.63平方米。一層進門就有一個門廳過渡,廚房可以根據需求設計成現代化廚房,也可以做柴火灶。二樓臥室帶有衣帽間,還有一個露天大露臺,在家也有度假的感覺。 戶型五
造型優雅別致,建在綠意盈盈的鄉間,更顯舒適自在。
戶型六
這款外觀是經典的簡歐風格,淺色真石漆搭配深色磚,洋紅色斜坡屋頂,造型獨特的采光窗,露臺陽臺搭配花瓶欄桿,舞動是配色還是設計,都堪稱完美。
開間13.9米,進深9米,占地面積109.24平方米。室內設施齊全,臥室設計規矩方正,空間尺度適宜、一層車庫方便日常停放,二層大客廳方便平時單獨會客。 圖紙之家-專注農村別墅/自建房設計18年,集合國內200余位經驗豐富的設計師,被評為口碑最好的農村建筑設計公司! |

30萬左右的新農村自建三層別墅施工設計圖紙及效果圖
占地:148平方米
小戶型現代新農村三層房屋設計建筑圖及效果圖
占地:108平方米
豪華復式三層別墅設計圖紙,效果圖+建筑施工圖+結構施工圖
占地:126平方米
農村兄弟雙拼平房別墅設計圖,獨門獨戶,一層也能建雙拼
占地:274.18平方米
2026新款四層樓房設計圖,占地120平方米左右,客廳中空
占地:120平方米
一層半帶閣樓別墅設計圖,悠閑舒適,養老度假皆可
占地:161.94平方米
農村小別墅一層設計圖紙,全套施工圖兩款戶型可選
占地:多種戶型可選
新中式風格農村自建房二層設計圖,15.5米乘12米
占地:186平方米
210平左右三層(兩層半)雙拼新農村別墅設計圖紙及外觀效果圖
占地:206.712平方米
現代別墅設計圖紙帶效果圖,85平、100平、145平三個戶型方案
占地:多種戶型
?13.5x9米這尺寸火了!好多人家照著建這款二層別墅,簡單實用
占地:115.11平方米
農村2026新式好看又簡單的二層樓房設計圖,外形美觀,家用足夠
占地:200平方米
110平方米農村三層自建房設計圖紙帶外觀圖
占地:110平方米
新式帶挑空客廳三層鄉村別墅設計圖,占地170平左右
占地:170平方米
275平方米新農村雙拼樓中樓戶型別墅設計圖紙及效果圖21X14米
占地:275平方米
農村20萬元二層小樓房設計圖,經典新農村自建房戶型
占地:120平方米
120平米三層別墅房屋設計圖,帶車庫,帶閣樓
占地:120平方米
農村10萬元一層小別墅設計圖,農村一層自建房屋設計圖
占地:多種戶型
2026新農村三層雙拼房屋設計圖紙平面圖與效果圖,帶堂屋
占地:190平方米
2款帶露臺農村別墅設計圖二層精選,造價超值性價比
占地:多戶型可選
推薦:10套新農村自建房設計圖,2026年最新設計
閱讀次數:4825737次
100套鄉村別墅圖片大全,2026年最新設計
閱讀次數:2492203次
6款農村蓋一層平房的設計圖,10萬元就能建起來
閱讀次數:1852637次
這11個一層農村自建房別墅火爆了朋友圈!我最喜歡戶型十!你呢
閱讀次數:750268次
農村6萬元建一層小別墅圖,你敢相信嗎
閱讀次數:567686次
農村5萬塊就能自建房,6套普通房子設計圖分享,你沒看錯!
閱讀次數:419410次
8套農村漂亮三間平房圖片,非常適合在農村修建!
閱讀次數:411197次
農村自建房化糞池怎么做?附方案及施工過程
閱讀次數:391783次
農村一層三間平房設計圖,告別土氣養老房,讓人忍不住點贊
閱讀次數:350581次
新農村二層樓房圖片造價12萬,挑一套回家建房吧!
閱讀次數:349126次
