
|
農村自建帶車庫中式風格小樓,房子占地面積16米乘16米,建筑面積約300m²平方米。沿襲中國傳統建筑精粹的同時,更注重對現代生活價值的精雕細刻,整體布局大家風范,傳世、經典。
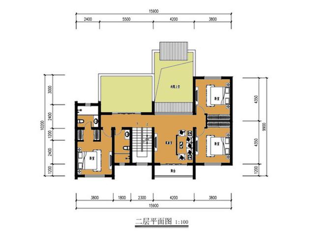
首層,堂屋位通過闊氣玄關過度,為整個房屋的核心之地。玄關為本戶型的特色之處,寬闊無對外采光但不壓抑,東西可與會客廳、廚房形成空間視線交流,增加了豐富的體驗感。客廳有對景設計,玻璃門與窗轉角連接,東西視線各有借景,構思巧妙。首層設有一間衛生間主臥,可為家里老人生活用房。
二層設有三間臥室,相對安靜,二層露臺可以作為農家曬菜、晾衣服的區域。
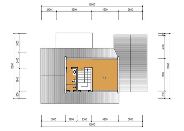
書房位于閣樓層,獨立安靜空間,極其適合辦公學習。
整個設計包括5室3廳5衛1廚 1堂屋,布局傳統中帶有新意,適合人口眾多大家族,希望大家喜歡,多多支持! 圖紙之家-專注農村別墅/自建房設計18年,集合國內200余位經驗豐富的設計師,被評為口碑最好的農村建筑設計公司! |

適合農村建的二層別墅設計圖,簡約美觀,讓人心動不已
占地:153平方米
簡單的復式住宅設計圖,客廳挑高,帶外觀效果圖片
占地:148平方米
12x9米自建一層小別墅設計圖,占地不大造價低,簡單舒適人人夸
占地:108.36平方米
農村高端中式三層雙拼全套房屋施工設計圖,效果圖很大氣
占地:340平方米
帶架空層的農村一層小別墅設計圖,大氣穩重又很實用
占地:123.5平方米
150平米經典二層中式別墅設計圖 ,現代中式相結合
占地:154平方米左右
農村三層半自建房子效果圖及設計圖,戶型占地90平方米左右
占地:92.17平方米
一層5間歐式平房小洋樓建筑設計圖紙,大戶型一層別墅戶型
占地:216平方米
爆款農村兄弟雙拼自建房設計圖,占地不大舒適宜居
占地:147.2平方米
高端大氣三層歐式別墅設計圖,客廳中空,旋轉樓梯
占地:150平方米
共堂屋雙拼兩層小別墅設計圖,倆兄弟農村自建房首選
占地:198平方米
農村三層15萬自建房圖,小戶型別墅設計方案圖
占地:60平方米
歐式新農村三層復式樓自建房別墅圖紙,旋轉樓梯設計
占地:128平方米
簡歐漂亮農村二層別墅設計方案圖紙,12米乘9米
占地:多戶型可選
鄉村三層別墅施工圖紙帶效果圖,田園別墅設計圖紙推薦
占地:178平方米
面寬10米高品質二層別墅設計方案,造價不高顏值很高,非常適合
占地:137.63平方米
140平四層復式別墅房屋設計圖,帶外觀效果圖
占地:140平方米
農村三層復式自建樓房設計圖,外觀圖大氣
占地:130平方米
高端三層帶地下室別墅房屋設計圖方案及效果圖
占地:135平方米
2026年經典新中式三層別墅設計圖紙,新款自建房戶型圖
占地:158.19平方米
推薦:10套新農村自建房設計圖,2026年最新設計
閱讀次數:4825737次
100套鄉村別墅圖片大全,2026年最新設計
閱讀次數:2492203次
6款農村蓋一層平房的設計圖,10萬元就能建起來
閱讀次數:1852637次
這11個一層農村自建房別墅火爆了朋友圈!我最喜歡戶型十!你呢
閱讀次數:750268次
農村6萬元建一層小別墅圖,你敢相信嗎
閱讀次數:567686次
農村5萬塊就能自建房,6套普通房子設計圖分享,你沒看錯!
閱讀次數:419410次
8套農村漂亮三間平房圖片,非常適合在農村修建!
閱讀次數:411197次
農村自建房化糞池怎么做?附方案及施工過程
閱讀次數:391783次
農村一層三間平房設計圖,告別土氣養老房,讓人忍不住點贊
閱讀次數:350581次
新農村二層樓房圖片造價12萬,挑一套回家建房吧!
閱讀次數:349126次
