
|
四合院別墅,一直是我們國人心目中的豪宅。每個人心中對于山水田園生活都有一種向往。想有棟中式宅子,里面自成天地,是不是還能回味小時候的生活! 今天介紹的這棟是北京的四合院別墅,帶有地下室,造價也不過45萬就能建起來!
別墅占地方正,四平八穩,大氣豪華至極,其蘊含的中華文化也是深深地吸引著我們!在村里建一棟獨樹一幟。喜歡的圖紙收藏起來,有錢了就建一棟! 立面效果
立面效果
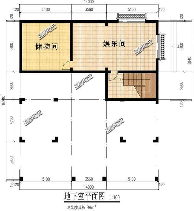
平面布局
平面布局
平面布局 結構形式:異形柱框架結構,造價38-45萬,開間14米,進深16.24米,占地面積162平方米,建筑面積354平方米,建筑高度9.2米 圖紙之家-專注農村別墅/自建房設計18年,集合國內200余位經驗豐富的設計師,被評為口碑最好的農村建筑設計公司! |

經典20萬左右二層別墅設計圖紙,造型頗具設計感的小別墅
占地:多戶型可選
2026二層農村新款別墅設計圖,帶車庫,帶鍋爐房
占地:180平方米
160平方農村三層別墅CAD設計圖紙,含外觀圖片效果圖
占地:156平方米
雅致的鄉下二層蓋別墅設計圖紙,造價35萬左右
占地:178平方米
時尚的農村二層別墅圖紙設計,現代風格,簡約的外觀
占地:152平方米左右
爆火農村養老房設計:16 米面寬一層戶型,自住養老全拿捏
占地:169.87平方米
挑空客廳戶型歐式二層別墅設計圖紙,高端大氣帶車庫
占地:236.09平方米
20萬農村自建三層別墅設計圖,外觀美觀,戶型實用
占地:105平方米
農村2026新式好看又簡單的二層樓房設計圖,外形美觀,家用足夠
占地:200平方米
高端大氣三層歐式別墅設計圖,客廳中空,旋轉樓梯
占地:150平方米
經典四合院別墅設計圖,復式挑空客廳讓四合院更高端
占地:175平方米左右
一層帶架空層的農村別墅設計圖,防潮、停車、放農具全都滿足
占地:163.78平方米
農村三間四層樓房設計圖,農村輕奢型四層別墅
占地:160平方米
農村一層中式別墅設計圖,經典大氣,布局舒適,面寬20米
占地:192.92平方米
農村二層中式戶型設計圖,造型古香古色,建好絕對是地標
占地:245.39平方米
三層新農村住宅設計圖及效果圖,三層樓房設計圖展示
占地:140平方米
平屋頂12米寬別墅三層設計圖,平頂照樣建的漂亮
占地:129.6平方米
帶閣樓兩層半雙拼別墅房屋設計圖,帶外觀效果圖
占地:240平方米
復式別墅農村四層霸氣豪宅設計圖紙,建好你就是村里第一
占地:136.356平方米
農村實用型一層半樓房圖片效果圖,占地140平米左右
占地:140平方米
推薦:10套新農村自建房設計圖,2026年最新設計
閱讀次數:4825737次
100套鄉村別墅圖片大全,2026年最新設計
閱讀次數:2492203次
6款農村蓋一層平房的設計圖,10萬元就能建起來
閱讀次數:1852637次
這11個一層農村自建房別墅火爆了朋友圈!我最喜歡戶型十!你呢
閱讀次數:750268次
農村6萬元建一層小別墅圖,你敢相信嗎
閱讀次數:567686次
農村5萬塊就能自建房,6套普通房子設計圖分享,你沒看錯!
閱讀次數:419410次
8套農村漂亮三間平房圖片,非常適合在農村修建!
閱讀次數:411197次
農村自建房化糞池怎么做?附方案及施工過程
閱讀次數:391783次
農村一層三間平房設計圖,告別土氣養老房,讓人忍不住點贊
閱讀次數:350581次
新農村二層樓房圖片造價12萬,挑一套回家建房吧!
閱讀次數:349126次
