
|
在意大利語中,巴洛克意指“畸形珍珠”其特點是外形自由,追求動態,喜好富麗的裝飾和雕刻、強烈的色彩。經過時代的進步這種設計風格已經進入了農村自建房中,其外觀精美浪漫墻面凹凸度很大,裝飾豐富,有強烈的光影效果受到了農村老百姓的喜愛。本期小編就向大家推薦幾款充滿巴洛克農村別墅設計,浪漫唯美感都要溢出來了,越看越喜歡希望大家能夠喜歡~! 別墅圖一展示:占地面積:14.76m*11.86m,149.7平方米左右; 建筑層高:二層; 建筑高度: 9.88米(含屋頂);
別墅效果圖 設計功能:
地下室戶型圖 地下室:車庫、娛樂室、儲藏室;
一層戶型圖 一層戶型:客廳、廚房、餐廳、臥室(帶衛生間)、臥室、衛生間;
二層戶型圖 二層戶型:客廳上空、活動室、書房、臥室(帶衛生間)x2、臥室、陽臺; 別墅圖二展示:二層巴洛克風別墅,造型方正,白色與紅色的經典配色,層次感豐富,優雅浪漫。一座座房,一扇扇窗,牽引著歸家游子,建一棟漂亮大氣的房子,讓大地芬芳,讓屋檐飄滿桂香,讓家人其樂融融。 占地面積:14.26m*14.26m,210.25平方米左右; 建筑層高:二層; 建筑高度:10.177米(含屋頂);
別墅效果圖 設計功能:
一層戶型圖 一層戶型:客廳、神位、廚房、餐廳、書房、臥室(帶衛生間)、臥室、衛生間;
二層戶型圖 二層戶型:客廳上空、起居室、臥室(帶衛生間)x2、臥室、衛生間、陽臺; 別墅圖三展示:非常適合農村自建房。房體富有層次感,構造規整有力,線條流暢,顯得端正穩重。淡色外墻搭配黃色文化石以及藍紫色琉璃瓦尊貴典雅。 占地面積:17.5m*13.45m,208.98平方米左右; 建筑層高:二層; 建筑高度:9.82米(含屋頂);
別墅效果圖 設計功能:
地下室戶型圖 地下室戶型:家庭影音、酒窖、棋牌室、儲物間、健身區;
一層平面圖 一層戶型:玄關、客廳、餐廳、廚房、臥室(帶衛生間)、臥室(帶衛生間、衣帽間)、車庫;
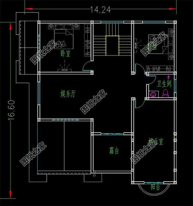
二層平面圖 二層戶型:臥室(帶衛生間、衣帽間、書房)x2、臥室(帶汗蒸房)、露臺x2、陽臺; 別墅圖四展示:二巴洛克風別墅,色調上清新靚麗,氣勢上霸氣側漏,莊重典雅,屋頂采用紅色波形瓦,白色真石漆裝飾外墻,白色雕花和羅馬柱點綴,超大落地窗精美絕倫。 占地面積:14.2m*16.6m,256.88平方米左右; 建筑層高:三層; 建筑高度:14.9米(含屋頂);
別墅效果圖 設計功能:
一層戶型圖 一層戶型:客廳、餐廳、廚房、娛樂室、臥室(帶衛生間)、衛生間、車庫;
二層戶型圖 二層戶型:客廳上空、小客廳、臥室(帶衛生間)x2、臥室、衛生間、陽臺;
三層戶型圖 三層戶型:娛樂區x2、臥室x2、衛生間、露臺; 圖紙之家-專注農村別墅/自建房設計18年,集合國內200余位經驗豐富的設計師,被評為口碑最好的農村建筑設計公司! |

2026年新款二層半農村自建小別墅設計圖紙,占地150平方米
占地:150平方米
面寬8米的新農村三層自建房設計圖平屋頂,全套cad圖紙+效果圖
占地:115平方米
農村三層蓋房設計圖大全,最新的設計,最新的戶型
占地:150平方米
三層平屋頂別墅房屋設計圖及外觀效果圖
占地:150平方米
奢華歐式二層樓房設計圖,入戶設有玄關,一層大窗設計
占地:190平方米
新中式風格二層住宅設計圖,農村自建房不土氣
占地:144.5平方米
帶中式小院的二層仿古別墅設計圖,小戶型自建房設計,外觀美極
占地:82.94
面寬不到10米的小戶型自建房戶型圖,全套設計圖紙可施工
占地:123.2平方米左右
歐式三層別墅設計圖,低調奢華,實用布局,好設計不容錯過
占地:134.1平方米
驚艷全村的三層別墅設計圖,12×16米美觀大氣布局超合理
占地:179.8平方米
新農村帶陽臺三層樓房圖紙,占地180平米左右,豪華大氣
占地:180平方米
兩層半20多萬復式農村自建房設計圖,經典不過時戶型
占地:120平方米
帶車庫徽派風格三層別墅房屋設計圖,新農村住宅設計推薦
占地:140平方米
農村大氣四層樓房圖片及全套設計圖紙,復式客廳旋轉樓梯
占地:143平方米
15萬左右新中式二層別墅設計圖平面圖,占地110平米左右
占地:110平方米
160平方米二層平屋頂房屋設計圖紙及效果圖17x11米
占地:164平方米
200平農村二層別墅設計圖,外觀現代簡約
占地:204平方米
農村小戶型二層房屋別墅設計圖,帶外觀效果圖
占地:95平方米
農村160平四間兩層樓房設計圖,全套施工圖+外觀效果圖片
占地:160平方米
農村25萬別墅款式二層自建房設計圖,外觀簡約大氣
占地:多種戶型
推薦:10套新農村自建房設計圖,2026年最新設計
閱讀次數:4825737次
100套鄉村別墅圖片大全,2026年最新設計
閱讀次數:2492203次
6款農村蓋一層平房的設計圖,10萬元就能建起來
閱讀次數:1852637次
這11個一層農村自建房別墅火爆了朋友圈!我最喜歡戶型十!你呢
閱讀次數:750268次
農村6萬元建一層小別墅圖,你敢相信嗎
閱讀次數:567686次
農村5萬塊就能自建房,6套普通房子設計圖分享,你沒看錯!
閱讀次數:419410次
8套農村漂亮三間平房圖片,非常適合在農村修建!
閱讀次數:411197次
農村自建房化糞池怎么做?附方案及施工過程
閱讀次數:391783次
農村一層三間平房設計圖,告別土氣養老房,讓人忍不住點贊
閱讀次數:350581次
新農村二層樓房圖片造價12萬,挑一套回家建房吧!
閱讀次數:349126次
