
|
很多農村家庭在修建房子的時候,就是直接找個施工隊就開始施工,建造工程中狀況百出,最后建成的房子也沒什么心意。經過專業的設計、根據圖紙建房就不一樣了,不僅能滿足自家的生活需求,也和宅基地的情況相符,每個人都能建成一棟漂亮實用的別墅,這樣在村里才有面子。接下來給大家推薦5套開間18米的三層別墅,寬敞明亮、利落大氣,非常實用! 第一套
正面效果圖
背面效果圖
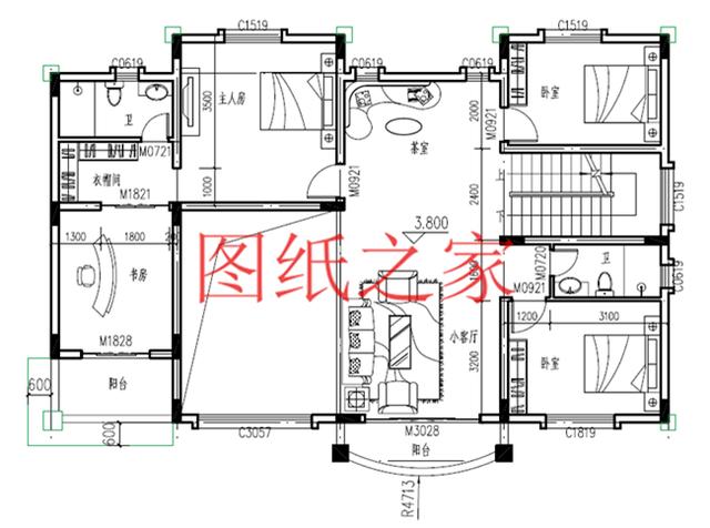
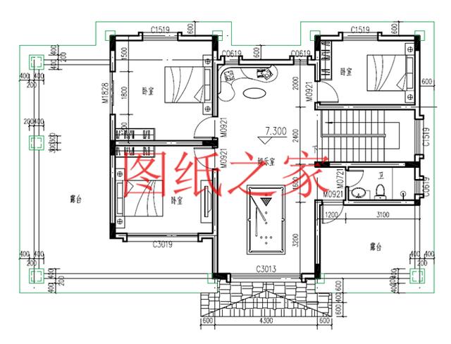
鳥瞰效果圖 占地面積:16.2m*11.2m,一層占地180平方米左右(含外門庭); 建筑層高:三層; 建筑高度:12.8米(含屋頂); 設計功能: 一 層:客廳、廚房、餐廳、老人房(衛生間)、臥室、雜物間、衛生間、車庫; 二 層:小客廳、主臥(帶衛生間,衣帽間,書房,陽臺)、臥室x2、茶室、衛生間、陽臺; 三 層:臥室×4、娛樂室、衛生間、露臺×2;
一層平面圖
二層平面圖
三層平面圖 第二套
正面效果圖
背面效果圖
鳥瞰效果圖 占地面積:15.9m*18.4m,一層占地210平方米左右(含外門庭); 建筑層高:三層; 建筑高度:12.3米(含屋頂); 設計功能: 地下室:車庫、套房(衛生間)、活動區、土灶房; 一 層:客廳、廚房、餐廳、老人房、棋牌室、衛生間、茶室; 二 層:客廳上空、起居室、臥室(帶衣帽間、衛生間)、臥室x2、書房、衛生間、陽臺; 三 層:起居室、臥室(帶衣帽間、衛生間、淋浴間、汗蒸房)、臥室、衛生間、露臺;
地下平面圖
一層平面圖
二層平面圖
三層平面圖 第三套
正面效果圖
背面效果圖 鳥瞰效果圖 占地面積:16.3m*14.3m,一層占地230平方米左右(含外門庭); 建筑層高:三層; 建筑高度:13.3米(含屋頂); 設計功能: 一 層:客廳、廚房、餐廳、臥室(帶衛生間)×2、娛樂室、衛生間; 二 層:起居室、臥室(帶衛生間)×4、衛生間、儲藏室、露臺; 三 層:臥室(帶衛生間)x3、衛生間、陽臺、露臺;
一層平面圖 二層平面圖
三層平面圖 第四套
正面效果圖
背面效果圖
鳥瞰效果圖 占地面積:16.0m*16.2m,一層占地230平方米左右(含外門庭); 建筑層高:三層; 建筑高度:13.3米(含屋頂); 設計功能: 地下室:儲藏間,車庫,自定義房間,電梯; 一 層:玄關、客廳、廚房、餐廳、老人房(帶衛生間)、客房、衛生間、儲藏間; 二 層:客廳上空、臥室(帶衣帽間)、臥室x2、書房、茶室、衛生間、陽臺; 三 層:主人房(帶衣帽間,衛生間、露臺)、客房(帶衣帽間)、客房、衛生間、麻將房、大露臺;
地下平面圖
一層平面圖
二層平面圖
三層平面圖 第五套
正面效果圖
背面效果圖 占地面積:16.5m*15.0m,247平方米左右; 建筑層高:三層; 建筑高度:10.2米(含屋頂); 設計功能: 一 層:玄關、客廳、餐廳、廚房、衛生間、主臥(帶衛生間、帶衣帽間)、臥室; 二 層:客廳、棋牌室、主臥(帶衛生間、帶衣帽間)、臥室x2、衛生間、小露臺; 三 層:健身房、主臥(帶衛生間、帶衣帽間)、臥室、書房、衛生間、大露臺;
一層平面圖
二層平面圖
三層平面圖
圖紙之家-專注農村別墅/自建房設計18年,集合國內200余位經驗豐富的設計師,被評為口碑最好的農村建筑設計公司! |

農村三間三層半別墅設計圖,舒適寬敞時尚經濟,居住生活方便舒
占地:168.29平方米
二層復式農村別墅設計圖,進深12米,戶型堪稱完美
占地:193.2平方米
私人二層農村小樓設計圖,外觀靚麗,富有現代氣息
占地:160平方米
125平兩層別墅房屋設計圖,帶普通和復式兩個戶型
占地:125平方米
時尚大方的農村二層自建房屋設計圖紙,占地120平米左右
占地:120平米
帶框架層的四層別墅設計圖,框架層功能布局很多,很實用
占地:169.09平方米
網紅中式一層三合院別墅設計圖,白墻黛瓦古典大氣,讓人心曠神
占地:248.82平方米
簡歐漂亮農村二層別墅設計方案圖紙,12米乘9米
占地:多戶型可選
四間兩層農村別墅戶型圖,外觀時尚色調搭配和諧,占地超200平米
占地:212.95平方米
一層半房屋別墅設計圖,帶閣樓圖、帶露臺,外觀新穎時尚
占地:130平方米
125平方米三層新農村房屋建筑施工設計圖帶外觀圖
占地:126平方米
兄弟雙拼三層小戶型別墅設計圖紙,160平方米(單戶80平)
占地:163平方米
兩層農村自建二層樓設計圖紙,面寬12米左右
占地:131.2平方米
一層新中式三合院設計,建好城里大平層都不香了
占地:294.12平方米
高端三層別墅設計圖紙,客廳中空,帶地下室,設置多個套間
占地:220平方米
歐式漂亮農村三層自建房設計圖紙,兩個戶型方案可選
占地:多戶型可選
農村10萬元一層小別墅平房設計圖大全,含效果圖
占地:120平方米
農村16萬一層平房小院設計圖,左右對稱布局好,南北方都能建
占地:195.9平方米
一層農村自建房別墅設計方案,左右對稱布局好
占地:154平方米
帶電梯高端四層別墅房屋設計圖,外觀圖大氣、上檔次
占地:220平方米
推薦:10套新農村自建房設計圖,2026年最新設計
閱讀次數:4825737次
100套鄉村別墅圖片大全,2026年最新設計
閱讀次數:2492203次
6款農村蓋一層平房的設計圖,10萬元就能建起來
閱讀次數:1852637次
這11個一層農村自建房別墅火爆了朋友圈!我最喜歡戶型十!你呢
閱讀次數:750268次
農村6萬元建一層小別墅圖,你敢相信嗎
閱讀次數:567686次
農村5萬塊就能自建房,6套普通房子設計圖分享,你沒看錯!
閱讀次數:419410次
8套農村漂亮三間平房圖片,非常適合在農村修建!
閱讀次數:411197次
農村自建房化糞池怎么做?附方案及施工過程
閱讀次數:391783次
農村一層三間平房設計圖,告別土氣養老房,讓人忍不住點贊
閱讀次數:350581次
新農村二層樓房圖片造價12萬,挑一套回家建房吧!
閱讀次數:349126次
