
|
今天小編就為大家送福利來了!3款占地90平的別墅戶型,照樣建得漂亮高大上,別再抱怨地皮小建不出好房子。 ![]() 主體造價20-26萬,開間8.26米,進深10.38米,占地面積84.11平方米,建筑面積168.76平方米 ![]() ![]() ![]() 主體造價20-26萬,開間7米,進深14米,占地面積93.2平方米,建筑面積180.7平方米,建筑高度8.5米 ![]() ![]() ![]() 主體造價29-33萬,開間8.5米,進深11.55米,占地面積92平方米,建筑面積251平方米,建筑高度11.4米 ![]() ![]() ![]() 占地不過百,照樣住漂亮高大上的別墅,這3款占地90平的別墅戶型,簡直就是小宅基地的福音! 圖紙之家-專注農村別墅/自建房設計18年,集合國內200余位經驗豐富的設計師,被評為口碑最好的農村建筑設計公司! |

2026最火的現代別墅設計圖農村三層戶型,帶地下室
占地:119.79平方米
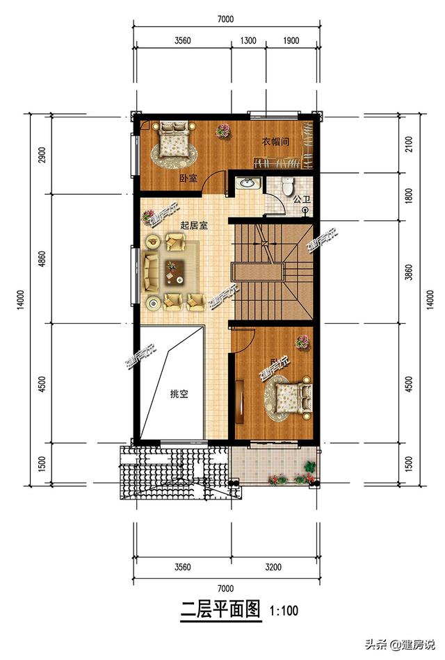
新農村歐式時尚二層別墅設計圖紙,120平方米自建房
占地:多種戶型
現代三層復式小別墅設計圖及外觀圖片,25萬造價
占地:105平方米
帶地下室三層新農村房屋設計圖紙,外觀效果大氣
占地:220平方米
大氣的150平方米新中式三層別墅建筑圖及效果圖
占地:150平方米左右
實用型二層別墅設計方案,占地120平米簡單大方最耐看
占地:120平方米
四層自建別墅設計圖,有車庫帶露臺,時尚大氣給你一個五星級的
占地:152.51平方米
經典實用的新農村三層房屋設計圖紙,推薦自建使用
占地:165平方米
125平方米三層新農村房屋建筑施工設計圖帶外觀圖
占地:126平方米
外觀高檔大氣的三層別墅房屋設計圖,高端別墅設計展示
占地:147平方米
面寬13米方正戶型二層小別墅設計方案,南北通透采光好
占地:166.78平方米
農村三層雙拼別墅設計圖,兄弟建房開間20米,單戶80平方
占地:160平方米
一層中式三合院農村自建別墅圖,面寬18米帶堂屋設計
占地:165.72平方米
2026年新款二層半農村自建小別墅設計圖紙,占地150平方米
占地:150平方米
經典三層別墅設計圖,時尚典雅美觀大氣,新農村自建的理想之選
占地:119.45平方米
鄉下二層樓房住宅設計圖紙及效果圖,農村二層小洋樓
占地:140平方米
帶架空層的農村二層別墅設計方案,造型大氣漂亮
占地:176平方米
170平方米雙拼別墅戶型建筑設計圖紙及外觀效果圖,復式單戶85平
占地:170平方米
150平米田園風格二層別墅設計圖紙,沉穩大氣有內涵
占地:150平方米
簡歐式三層小別墅設計圖,帶地下室,客廳中空,占地150平米
占地:150平方米
推薦:10套新農村自建房設計圖,2026年最新設計
閱讀次數:4825737次
100套鄉村別墅圖片大全,2026年最新設計
閱讀次數:2492203次
6款農村蓋一層平房的設計圖,10萬元就能建起來
閱讀次數:1852637次
這11個一層農村自建房別墅火爆了朋友圈!我最喜歡戶型十!你呢
閱讀次數:750268次
農村6萬元建一層小別墅圖,你敢相信嗎
閱讀次數:567686次
農村5萬塊就能自建房,6套普通房子設計圖分享,你沒看錯!
閱讀次數:419410次
8套農村漂亮三間平房圖片,非常適合在農村修建!
閱讀次數:411197次
農村自建房化糞池怎么做?附方案及施工過程
閱讀次數:391783次
農村一層三間平房設計圖,告別土氣養老房,讓人忍不住點贊
閱讀次數:350581次
新農村二層樓房圖片造價12萬,挑一套回家建房吧!
閱讀次數:349126次
