
|
隨著農村的生活水平越來越好,汽車幾乎是每家必備的交通工具,所以在建房的時候,一定要配有車庫。車庫不僅可以停放車輛,在閑時,還可以做儲藏室,存放農具農用車等。 下面為大家帶來12套帶車庫的農村別墅戶型,適合家里有車的朋友們修建,既經濟又實用,某些戶型主體造價最低18萬就基本可以建好了。 01 圖紙編號:18031201
本戶型為兩層獨棟別墅,開間12米 ,進深 11.1米 ,占地面積125.03平方米,磚混結構,外觀造型方正,色彩明快,別致大方,每間房都有窗戶,通風采光良好,房間尺度設計適宜,空間利用率高,主體造價18-25萬。
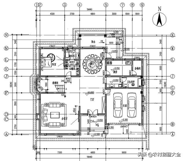
02 圖紙編號:18042301
很多人在農村建房的時候,都追求檔次,要與眾不同一點,這樣才可以顯得自己家花過心思。那么復式客廳和車庫就算得上是基本需求,再加上個屋頂花園,整體變得更加實用又美觀,這棟二層別墅,就將這三點集于一身,開間19.44米,進深18.24米,占地面積263.39平方米,加上歐式的設計顯得十分大氣,造價40萬左右。
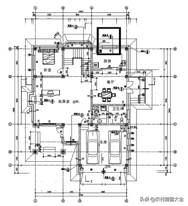
03 圖紙編號:18052301
本戶型為二層新中式別墅,面寬12.4米、進深12米,占地方正,外墻裝飾選用暗紅窗灰瓦白墻,散發古樸優雅氣息,還符合新農村生活需求,庭院、車庫、露臺全都有,主體造價22-25萬。
04 圖紙編號:18060801
本戶型是二層獨棟別墅,開間16.2米,進深15.57米,房屋占地面積216.75平方米,本戶型外觀造型簡約大方,色彩清新淡雅,富有時代的韻味;房間尺度設計適宜,空間利用率高,明廚明衛,主體造價30萬左右。
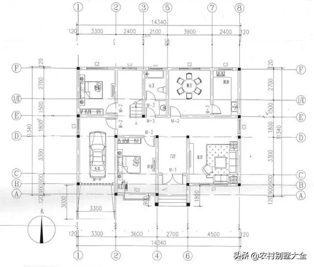
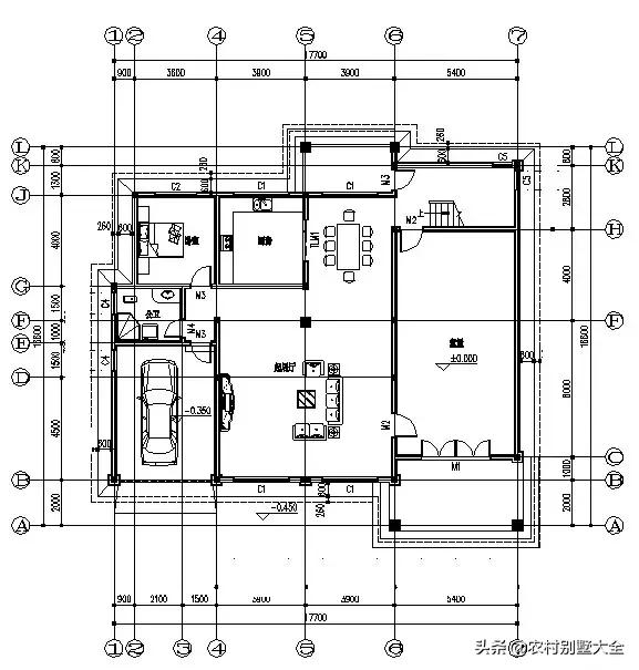
05 圖紙編號:18061801
本戶型是二層農村別墅,開間14.34米,進深11.34米,占地面積:150.95方米,簡歐風格,外墻裝飾采用文化石和涂料相結合,精美具有品味,門斗設計豐富立面造型,車庫和露臺設計實用經濟,整體造價25萬以內。
三層別墅7款三層帶車庫別墅,每一款都很大氣,家里兄弟姐妹多可以建三層,一層生活起居,二層休息學習,三層可以作個大露臺和娛樂空間。 06 圖紙編號:18040701
本戶型是豪華三層獨棟別墅,開間7.7米,進深16.6米,占地面積:127.82平方米。設計時尚,帶車庫,多陽臺,外觀大氣別致,起居室寬敞舒適;有獨立書房,南北通透,布局合情合理,是一個好的住所,單體造價50萬。
07 圖紙編號:18021401
本戶型為三層帶車庫別墅,簡單大方,外形是農村很受歡迎的,簡約大氣又有自己的氣質,配色柔和自然,結構分明,干凈利落,一看就喜歡。每層設計有陽臺,光線極佳,居住空間清雅自由,明廚明衛,單體造價32萬左右。
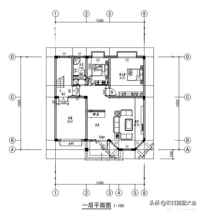
08 圖紙編號:18012601
本戶型為三層含車庫小別墅,開間11.5米,進深12米,總體風格以歐式風格為主,外觀、造型簡潔大方,色彩明快,房間尺度設計適宜,空間利用率高,內部布局為實用性布置,單體造價30萬。
09 圖紙編號:18030901
本戶型為農村三層別墅,大面寬小進深,外觀簡約耐看,外墻選用米黃色外墻漆,屋頂是蝦肉紅英紅瓦,色彩明媚溫馨,采用多窗設計,采光通風效果良好,內部布局合理實用,還帶有車庫,造價35萬左右。
10 圖紙編號:18040801
本戶型為三層別墅,開間11.5米,進深10.2米,占地面積122.56平方米。簡歐風格,紅瓦白墻,造型方正,簡約大氣,符合農村審美;每層都有陽臺,夏季自然通風,窗戶面積大,光線充足;整棟房屋是套房設計使得室內布局緊湊,功能分區合理。主體造價:33-35萬。
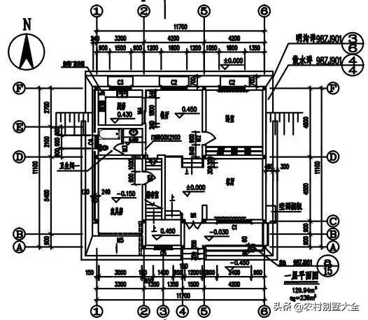
11 圖紙編號:18062001
本戶型為二層半農村別墅,開間12.84米,進深12.54米,占地面積139.6方米 。歐式風格,戶型方正,多處開窗,南北通透,外墻色調以紅色和白色為主,鮮亮明艷,整體造型大氣美觀。主體造價:20~24萬(僅供參考)。
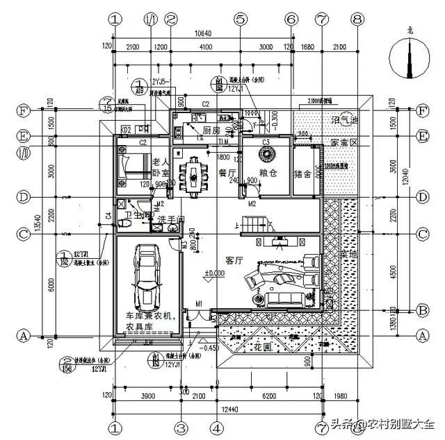
12 圖紙編號:18071101
本戶型為三層框架結構農村別墅,開間11.5米,進深15.6米,占地面積166.19平方米。經典的歐式風格,外墻采用米白色涂料和深紅色瓦塊相結合,配色上經典中帶點清新的味道,大門處的花崗巖立柱,不僅美觀還很有氣勢,有露臺、車庫,一看就實用。主體造價:45萬-50萬(僅供參考)
建房一定要選擇最適合自己的戶型,不用盲目攀比,也無需鋪張浪費。這12款帶車庫的別墅圖紙,都各有特色,不管是小家碧玉形,還大氣精致都能找到適合你的戶型。 圖紙之家-專注農村別墅/自建房設計18年,集合國內200余位經驗豐富的設計師,被評為口碑最好的農村建筑設計公司! |

130平方米歐式實用農村二層樓別墅圖紙帶外觀圖12X13米
占地:132平方米
五十萬二層半鄉村別墅,客廳挑空設計,占地200平米左右
占地:200平方米
簡單實用二層雙拼樓房設計圖,造價30萬左右
占地:180平方米
田園輕奢三層帶露臺的鄉村別墅設計圖紙,11x10米
占地:106.64平方米
歐式大戶型三層農村房屋設計圖紙,歐式住宅圖推薦
占地:178平方米
三層獨棟帶露臺房屋設計圖,含外觀圖片大全
占地:110平方米
背面不開窗二層別墅設計圖,對稱設計簡單好看,眾多建房者的選
占地:183.79平方米
兩層半新農村別墅設計圖紙,CAD設計圖+高清效果圖
占地:90平方米
中式二層對稱別墅設計圖,帶地下室設計,整體造價經濟
占地:171.6平方米
120平方米農村四層別墅施工設計圖紙及效果圖
占地:120平方米
新農村二層住宅設計圖紙,簡單別墅設計圖(含效果圖)
占地:77.6平方米
獨棟經濟型二層小別墅房屋設計圖,含全套施工圖效果圖
占地:多種戶型
80平方米三層農村自建民房設計圖,小戶型別墅方案
占地:81平方米
帶堂屋二層小別墅設計圖紙帶外觀圖,13.6米x9米
占地:122.4平方米
最新三層農村別墅設計圖紙,推薦農村自建
占地:106平方米
現代風格三拼別墅設計圖紙,三兄弟回村自建房戶型
占地:324平方米
四層巴洛克別墅設計圖,旋轉樓梯搭配超大挑空客廳,很有氣勢
占地:146平方米
面寬8米農村二間二層小別墅設計方案,施工簡單造價低
占地:73.77平方米
農村四間二層別墅設計方案圖,外觀精致、時尚
占地:152平方米
三層歐式豪華別墅設計方案,全套圖紙+效果圖
占地:168平方米
推薦:10套新農村自建房設計圖,2026年最新設計
閱讀次數:4825737次
100套鄉村別墅圖片大全,2026年最新設計
閱讀次數:2492203次
6款農村蓋一層平房的設計圖,10萬元就能建起來
閱讀次數:1852637次
這11個一層農村自建房別墅火爆了朋友圈!我最喜歡戶型十!你呢
閱讀次數:750268次
農村6萬元建一層小別墅圖,你敢相信嗎
閱讀次數:567686次
農村5萬塊就能自建房,6套普通房子設計圖分享,你沒看錯!
閱讀次數:419410次
8套農村漂亮三間平房圖片,非常適合在農村修建!
閱讀次數:411197次
農村自建房化糞池怎么做?附方案及施工過程
閱讀次數:391783次
農村一層三間平房設計圖,告別土氣養老房,讓人忍不住點贊
閱讀次數:350581次
新農村二層樓房圖片造價12萬,挑一套回家建房吧!
閱讀次數:349126次
