
|
現在農村孩子都出去讀書或打工,也就留在城市發展。農村的老房子也許只有父母居住,給他們建房子的話貴在實用,安全,溫暖,而不是奢華。宅基地不大的,蓋個單層的小戶型就夠家里人住了。今天就給大家分享6套單層自建房戶型,想蓋房的朋友可以參考。 第一套 這套戶型占地13x12米,占地面積146平方米,建筑面積141平方米,共設3室2廳1廚1衛1雨棚 。這套戶型帶悶頂儲藏間,儲藏不成問題。
平面布局圖 落地窗的3間臥室設計,大餐廳待客方便,家里宅地大的還可以蓋上廂房做客房,實用又漂亮。
第二套 這套戶型占地9.59x8.24米,占地面積96平方米,建筑面積79平方米,共設2室1廳1廚1衛,適合給爸媽的養老房。
平面布局圖 布局簡單實用,南北各1間臥室,廚房內有簡單的小餐桌,老兩口吃飯剛剛好。
第三套 這套戶型占地12.6x14.9米,占地面積195平方米,建筑面積160平方米,共設4室2廳1廚1衛2門斗1走廊,防寒門斗和火炕的設計更適合北方農村建造。
平面布局圖
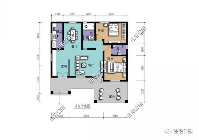
第四套 這套戶型占地12.5x11.8米,建筑面積113.1平方米,共設2室2廳2衛1廚1露臺,適合三口之間或者用作養老房,成本低,房間寬敞舒適。
平面布局圖 主臥帶獨立衛生間,客廳面積較大,有玄關隔離,生活空間功能豐富。
第五套 這套戶型占地13.1x12.5米,占地面積158平方米,建筑面積147平方米,共設4室2廳1廚2衛1檐廊,適合三代人居住。
平面布局圖 4間臥室的設計,主臥帶獨立衛生間,另外3間臥室共用1間衛生間。
第六套 這套戶型占地11.3x9.2米,建筑面積87.5平方米,共設3室2廳1衛1廚,適合3~5口人居住。房子外墻用實用經濟的灰白的鋪磚,搭配屋頂的朱紅琉璃瓦,顯得簡單美觀。
平面布局圖 有后門設計,3間臥室的設計;廚房、餐廳面積夠大,適合經常需要待客的農村家庭。
這6套單層自建房,哪套布局更適合你家?每平米造價也都不太高,農村自建700到900一平米起主體就夠,總價10~18萬就能蓋起毛坯房。 圖紙之家-專注農村別墅/自建房設計18年,集合國內200余位經驗豐富的設計師,被評為口碑最好的農村建筑設計公司! |

農村二層帶車庫四合院別墅設計圖,新中式外觀圖片,戶型實用方
占地:247平方米
新款私人定制四層歐式獨棟住宅別墅設計圖紙,含外觀效果圖
占地:138平方米左右
鄉村三層別墅設計圖紙,帶屋頂花園(含效果圖)
占地:150平方米
120平米農村三層房屋設計圖,客廳中空,戶型合理
占地:120平方米
美式二層別墅設計圖,含外觀效果圖,造型精美
占地:144平方米
平屋頂12米寬別墅三層設計圖,平頂照樣建的漂亮
占地:129.6平方米
農村自建房三間設計圖,花錢少效果好12米乘9米,經濟適用性價比
占地:108.9平方米
10米×13米最好看的農村三層樓房圖,客廳中空
占地:124平方米
一層共用,二層兄弟雙拼的二層別墅設計圖
占地:182.48平方米
50萬以內的歐式三層房屋別墅施工設計圖紙及效果圖
占地:169平方米
現代簡約時尚二層帶超大露臺農村別墅戶型,既可以休閑又可晾曬
占地:100.06平方米
農村四間兩層別墅房屋設計圖,含外觀圖片
占地:160平方米
農村4間2層樓房設計圖,戶型方正,四平八穩的二層農村別墅
占地:180平方米
二層復式雙拼別墅設計圖(客廳中空),含外觀效果圖
占地:195平方米
180平米農村二層小別墅設計圖,外觀漂亮,帶露臺
占地:180平方米
120平方米現代新農村二層自建房設計圖,造型時尚好看
占地:120平方米
爆火農村養老房設計:16 米面寬一層戶型,自住養老全拿捏
占地:169.87平方米
時尚耐看現代二層農村別墅設計圖,14米×11米,年輕人建房的不二
占地:138.125平方米
120平方米新農村全套二層施工設計圖紙大全11X11米
占地:120平方米
100平方米自建三層半別墅設計圖紙,帶地下車庫
占地:100平方米
推薦:10套新農村自建房設計圖,2026年最新設計
閱讀次數:4825737次
100套鄉村別墅圖片大全,2026年最新設計
閱讀次數:2492203次
6款農村蓋一層平房的設計圖,10萬元就能建起來
閱讀次數:1852637次
這11個一層農村自建房別墅火爆了朋友圈!我最喜歡戶型十!你呢
閱讀次數:750268次
農村6萬元建一層小別墅圖,你敢相信嗎
閱讀次數:567686次
農村5萬塊就能自建房,6套普通房子設計圖分享,你沒看錯!
閱讀次數:419410次
8套農村漂亮三間平房圖片,非常適合在農村修建!
閱讀次數:411197次
農村自建房化糞池怎么做?附方案及施工過程
閱讀次數:391783次
農村一層三間平房設計圖,告別土氣養老房,讓人忍不住點贊
閱讀次數:350581次
新農村二層樓房圖片造價12萬,挑一套回家建房吧!
閱讀次數:349126次
