
|
如今,選擇在農村建別墅的人越來越多,對戶型的要求也越來越多,不僅要求外觀上要漂亮,室內布局也要求大氣實用。今天就為大家帶來10套帶復式設計的別墅戶型,室內布局合理,造價經濟實用,看了的都說好! 第一套:圖片編號:18022401
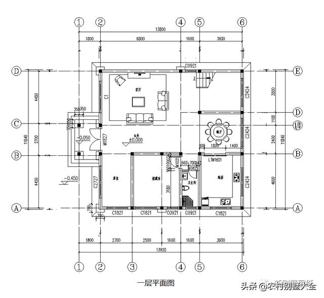
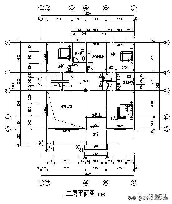
本戶型簡單大方,外形是農村很受歡迎的,簡約大氣又有自己的氣質,配色柔和自然,結構分明,干凈利落,一看就喜歡。每層設計有陽臺,光線極佳,居住空間清雅自由,明廚明衛。 開間:13.9米 進深:13米 占地面積:180.7平方米 建筑面積:436.1平方米 建筑高度:11.2米
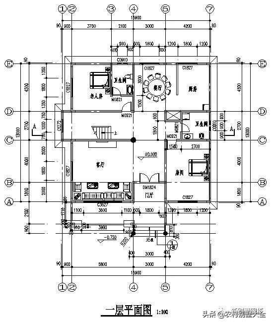
一層:客廳、餐廳、廚房、老人房、房間、門廳、衛生間;
二層:客廳上空、3間房間、露臺、主人房、2間衛生間;
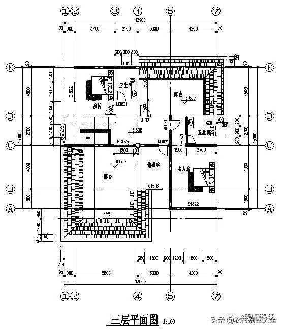
三層:儲藏間、主人房、露臺、房間、2間衛生間; 第二套:圖片編號:18100301
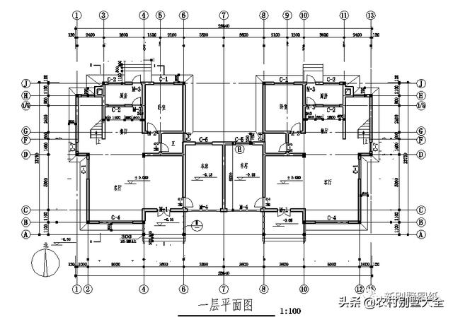
開間:11.84米 進深:13.92米 占地面積:151平方米 建筑面積:389平方米 建筑高度:11.35米
第三套:圖片編號:18071001
開間:14.4米 進深:9.44米 占地面積:124.54平方米 建筑面積:425.9平方米 建筑高度:10.42米
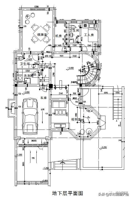
戶型為3層的小獨棟別墅,占地面積,124.54平米,建筑面積425.9平米,地上302.1平米,半地下123.8平米,建筑高度10.42米。一層設有客廳、餐廳、廚房、書房、衛生間;二層設有2間臥室、更衣室、2間衛生間、家庭廳、露臺;三層設有臥室、衛生間、更衣室、二個大露臺。 本戶型采用平屋頂與坡屋頂相結合,外觀造型簡潔大方,房間尺度設計適宜,空間利用率高。 第4套:圖片編號:18060901
開間:13.32米 進深:13.72米 占地面積:143.192平方米 建筑面積:348.676平方米 檐口高度:9.3米
第5套:圖片編號:09170102
面寬:14.1米 進深:14.4米 占地面積:190.9平米 建筑面積:558.1平米 建筑高度:11.1米
第6套:圖片編號:18052201
開間:14.4米 進深:14.1米 占地面積:190.9平方米 建筑面積:558.1平方米 建筑高度:17.45米
第7套:圖片編號:18060701
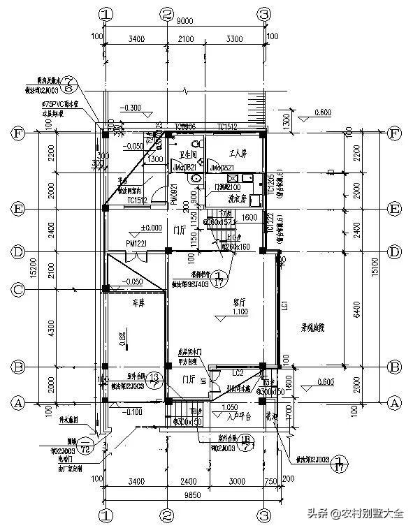
開間:9.85米 進深:15.1米 占地面積:106.69平方米 建筑面積:287.47平方米 建筑高度:11.7米
第8套:圖片編號:18070701
開間:19.4米 進深:10.5米 占地面積:185.8平方米 建筑面積:412.23平方米 建筑高度:9.75米
第9套:圖片編號:18072901
開間:11.5米 進深:11米 占地面積:126.5平方米 建筑面積:323.94平方米 建筑高度:11.5米
第10套:圖片編號:18051101
開間:10.1米 間深:13.5米 占地面積:129.4平方米 建筑面積:334平方米 建筑高度:11.55米
圖紙之家-專注農村別墅/自建房設計18年,集合國內200余位經驗豐富的設計師,被評為口碑最好的農村建筑設計公司! |

簡單農村二層自建房子設計圖,主體18萬就能建好,太心動了!
占地:124.53
別致漂亮二層別墅設計圖紙,占地160平米左右,精致的外觀,讓人
占地:160平方米
實用三層新農村住宅設計圖,鄉村別墅設計圖(含外觀效果圖)
占地:102.34平方米
帶車庫的三層房屋方案設計圖,帶堂屋全套圖紙
占地:163.8平方米
三層農村自建房別墅設計圖紙,大廳中空,外觀高端大氣
占地:230平方米
帶架空層的農村一層小別墅設計圖,大氣穩重又很實用
占地:123.5平方米
大氣的美式三層別墅設計圖,外觀效果圖氣派、美觀
占地:148平方米
農村一層獨棟別墅設計圖,帶閣樓,設計感十足
占地:250平方米
左右對稱的歐式高端三層別墅設計圖,外觀氣派、豪華
占地:200平方米
新農村二層小別墅全套設計圖紙(含外觀效果圖)
占地:85.6平方米
農村自建房就選它!一層新中式設計,日常居住需求全搞定
占地:128.45平方米
帶車庫鄉下雙拼別墅設計圖,三層造型漂亮大全
占地:256平方米
新農村二層歐式別墅設計圖,外觀漂亮,主體18萬起建
占地:115.2平方米
110平方米農村兩層別墅設計效果圖及圖紙,12X12米
占地:110平方米
新農村二層房屋建筑施工圖紙,廚房獨立在配房
占地:107平方米
130平方米新農村自建三層別墅設計施工圖,13x11米
占地:130平方米
120平方米新農村全套二層施工設計圖紙大全11X11米
占地:120平方米
農村二層半新中式小別墅設計圖(帶閣樓層),二層半自建房戶型
占地:144平方米
鄉村二層半別墅圖紙設計,歐式風格、錯落有致,150平左右
占地:149.76
最美中式農村別墅二層三間的房子圖,帶土灶房,娛樂室,大露臺
占地:180平方米
推薦:10套新農村自建房設計圖,2026年最新設計
閱讀次數:4825737次
100套鄉村別墅圖片大全,2026年最新設計
閱讀次數:2492203次
6款農村蓋一層平房的設計圖,10萬元就能建起來
閱讀次數:1852637次
這11個一層農村自建房別墅火爆了朋友圈!我最喜歡戶型十!你呢
閱讀次數:750268次
農村6萬元建一層小別墅圖,你敢相信嗎
閱讀次數:567686次
農村5萬塊就能自建房,6套普通房子設計圖分享,你沒看錯!
閱讀次數:419410次
8套農村漂亮三間平房圖片,非常適合在農村修建!
閱讀次數:411197次
農村自建房化糞池怎么做?附方案及施工過程
閱讀次數:391783次
農村一層三間平房設計圖,告別土氣養老房,讓人忍不住點贊
閱讀次數:350581次
新農村二層樓房圖片造價12萬,挑一套回家建房吧!
閱讀次數:349126次
