
別墅訂制別墅風格:歐式 宅基地面積:72㎡ 建筑面積:252㎡ 建筑尺寸:6m * 12m 戶型概況:6室4廳3衛1廚1儲物間 土建造價:35萬
別墅外觀效果如圖 項目概況項目位于浙江,建筑占地面積80平左右,基地西面是廣場。 當地政策需統一建房,因此層高、格局、外觀大致外觀需要與鄰居家統一。 業主要求:車庫要求在房子的北面,東側不能開窗。 宅基地開間非常窄,進深較長,對采光的要求和空間利用的要求高。 此項目之前已經打好了地基,柱子鋼筋都已固定了位置。 綜上所述:此案設計的專業要求高,難度也高。設計師需詳細了解清楚業主的地基深度,厚度,鋼筋型號等數據。 設計概況一層主要為就餐區和接待空間 一層布局是錯層的,因為考慮到占地面積比較小,對總層高也有要求,還需要一個地下車庫,整體綜合考慮設計成錯層更為合適。 入戶即是客廳,接待空間更是大氣。 東側與鄰居緊挨著,整體布局東側都不能開窗,衛生間設計在中間,方便兩端的功能間使用,與餐廳距離較近,這樣也方便同時使用餐廳的窗戶來采光。
二層主要為起居空間 位于中間的起居室將整層的臥室連接起來,也是整層臥室的過渡空間。 南邊主臥帶有生活陽臺,提升了居住品質。 臥室基本都是大面積的落地窗,不僅能達到好的采光效果,住起來也提升了舒適度.
三層平面布局與二層一樣
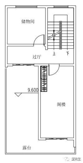
四層主要為儲藏間和休閑娛樂空間
模型階段設計最初模型給業主設計了兩種不同的閣樓形式。 第二種考慮設計了一間陽光房,第一種主要考慮閣樓的功能使用空間。 業主根據這兩種兩個模型,選擇了第二種功能實用型,但是對外觀顏色搭配希望有更好的調整。
設計師重新優化了兩種不同的顏色,并將閣樓微調 業主最終選擇了第一個顏色。 住宅保持原有的歐式風格,簡潔大方。外墻材料主要是真石漆和瓷磚。
服務概況業主的滿意才是我們最大的動力 圖紙之家-專注農村別墅/自建房設計18年,集合國內200余位經驗豐富的設計師,被評為口碑最好的農村建筑設計公司! |

160平方米新農村三層半別墅設計圖11X16米65萬以內
占地:160平方米
140平四層復式別墅房屋設計圖,帶外觀效果圖
占地:140平方米
高端三層豪宅別墅設計方案圖,帶地下室,過悠然愜意生活
占地:127.06平方米
一眼就驚艷的二層新中式別墅設計圖,大氣做夢都想回家蓋棟!
占地:128.58平方米
農村二間二層小別墅設計方案,精而美的經典樣式不容錯過
占地:115.32平方米
一層農村房子設計圖,含外觀效果圖,自建推薦戶型
占地:200平方米
90平方米小戶型自建三層房屋設計圖紙及外觀效果圖
占地:91平方米左右
二層新中式別墅設計施工圖,廚房在配房,占地140平米
占地:141平方米
160平米三層別墅設計圖,功能齊全,外觀漂亮,適合和父母同住
占地:160平方米
2026年簡單實用二層農村別墅,經典大氣真的香
占地:165.98平方米
鄉村典型自建房中式二層四合院別墅設計圖,左右對稱設計
占地:430平方米
經濟實用二層復式樓房設計圖 ,占地150平方米,造價25萬左右
占地:150平方米
經典三層雙拼樓房設計圖,經典外觀,經典戶型
占地:225平方米
13.5米乘11米兩層半別墅設計圖,中式與現代相融合
占地:148.5平方米
農村三層樓房設計圖三層別墅圖片,占地面積135平米
占地:135平方米
獨棟歐式三層農村實用樓房設計圖,外觀圖大氣,13×13米
占地:144.75平方米
中式徽派二層農村別墅設計圖,白墻黛瓦馬頭墻,永不過時
占地:171平方米
小占地的農村別墅設計圖,占地僅72平米,參考造價不到15萬
占地:多戶型可選
110平左右二層小洋樓設計圖,含效果圖片
占地:108平方米
30萬以下的經典二層新農村別墅設計圖紙及效果圖,簡單大氣
占地:170平方米
推薦:10套新農村自建房設計圖,2026年最新設計
閱讀次數:4825737次
100套鄉村別墅圖片大全,2026年最新設計
閱讀次數:2492203次
6款農村蓋一層平房的設計圖,10萬元就能建起來
閱讀次數:1852637次
這11個一層農村自建房別墅火爆了朋友圈!我最喜歡戶型十!你呢
閱讀次數:750268次
農村6萬元建一層小別墅圖,你敢相信嗎
閱讀次數:567686次
農村5萬塊就能自建房,6套普通房子設計圖分享,你沒看錯!
閱讀次數:419410次
8套農村漂亮三間平房圖片,非常適合在農村修建!
閱讀次數:411197次
農村自建房化糞池怎么做?附方案及施工過程
閱讀次數:391783次
農村一層三間平房設計圖,告別土氣養老房,讓人忍不住點贊
閱讀次數:350581次
新農村二層樓房圖片造價12萬,挑一套回家建房吧!
閱讀次數:349126次
