項目名稱:北京順義張家新中式別墅
項目地點:北京市順義區
建筑面積:312㎡
基地面積:510㎡
建筑尺寸:16.74m×11m
占地面積:156㎡
圖紙編號:996
戶型概況:6室3廳4衛1廚2儲物2洗衣1書房
建筑結構:框架結構
主創建筑師:張賀棠
土建參考造價:52萬元(不包含室內裝修費用)
項目概況
△總平面示意圖
項目位于北京,基地北側是自家老房,東側是村內過道,西、南兩側是馬路,
業主不喜歡凹凸變化,偏愛方正的建筑。前期業主提供了手繪平面圖作為參考資料,根據場地情況和實際需求,建筑最終造型偏向新中式風格。
圖紙設計
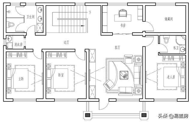
△一層平面圖
業主提供的手繪平面圖中客廳和餐廳距離較遠,功能相對混亂。最終平面方案客廳和餐廳連通,南北通透的格局讓室內空間使用感受極佳。臥室均位于南側,環境有所保證,使用上也較為方便。
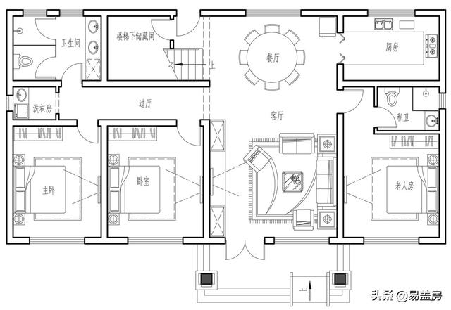
△二層平面圖
二層以起居功能為主,三間臥室與一層布局一致。客廳與陽臺連通,室外活動空間與室內功能相輔相成,提升居住品質。書房的增加為業主及其家人提供了學習、辦公場所。
平面布局十分規整,符合業主要求和家人的使用習慣。
造型設計
△鳥瞰圖
建筑整體偏向新中式風格,配色上以暖黃色為主,淡雅的顏色讓建筑視覺上清新、舒適。門窗選用深色框架,清晰的對比將建筑各部分間的關系展現出來。
△鳥瞰圖
建筑門廳跨度較大,通過較為夸張的處理手法使得正面具有更強烈的層次表達。立柱的粗細變化提升穩重感,結合壁燈,給人大氣又精致的感覺。
△南側效果圖
屋頂在門廳部分進行突出,再次強調出入戶儀式感。同時門廳為二層提供室外活動空間,陽臺增加了立面層次,兼顧美觀和實用。
△東南側效果圖
△西南側效果圖
建筑南側窗戶采用一體設計,不同空間窗戶利用不同幾何分割對比。視覺上窗戶面積的增大弱化了建筑過于方正的呆板,讓整體更加和諧。
△東北側效果圖
立面沒有較多凹凸變化,整體層次通過裝飾柱進行展現。裝飾柱同時反饋出室內分區和布局,可謂一舉多得。
△西北側效果圖
△東立面圖
△西立面圖
△南立面圖
△北立面圖







































