
|
農村人對于回鄉建房都有一種執著,寧愿花卻大量的精力、人力和財力,回鄉建套一年到頭住不到幾天的豪宅。這是一種故鄉情結,因為中國人自古便于老來歸家、落葉歸根的夙愿。 下面這5款三層農村別墅,每一款都很不錯,回鄉建一棟絕不輸旁人。 第一款
經典的暖色調米色真石漆和時尚的文化石拼接,在燈光的映襯下,看起來充滿家的溫馨和生活氣息。 基本信息 別墅編號:MS1803006 占地尺寸:14X10.9米 占地面積:152.6平方米 建筑面積:482平方米 結構類型:框架結構
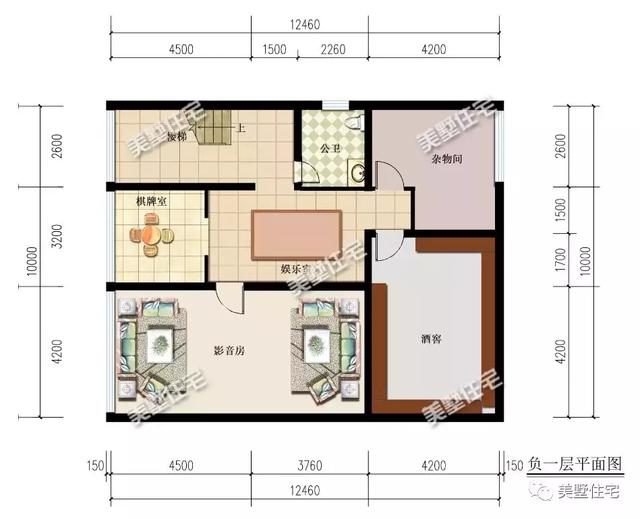
第二款
外在的時尚與清爽并不能磨滅別墅的精心設計,大氣淋漓,舒適愜意。晚上,室內逐漸亮起暖光色的燈光,讓人不禁心生暖意,不由感動。 基本信息 別墅編號:MS1803044 占地尺寸:12.46X10米 占地面積:153.59平方米 建筑面積:658.36平方米 結構類型:磚混結構
第三款
經典的歐式外觀,端莊明朗。純色外墻在燈光和夜幕的襯托下,顯得唯美浪漫。 基本信息 別墅編號:MS1903024 占地尺寸:13.14x10.92米 占地面積:130.88平方米 建筑面積:290.46平方米 結構類型:磚混結構
第四款
別墅外觀配色簡單和諧,凸出式門廊橫向延伸,搭配尖頂八角窗,賦予建筑別樣的美感,仿若一個大城堡,越看越有味道。 基本信息 別墅編號:MS1803086 占地尺寸:14.40X12.17米 占地面積:150.27平方米 建筑面積:518.63平方米 結構類型:磚混結構
第五款
這款別墅造型、結構簡練大方,整體自然和諧,淺色的真石漆材質和深藍色坡屋頂相搭配,沉穩而大氣。 基本信息 別墅編號:MS1903007 占地尺寸:12X13.3米 占地面積:144.18平方米 建筑面積:468.09平方米 結構類型:框架結構
看到別人家都蓋起了小別墅,說不羨慕是騙人的,趁著父母猶在,趁著陽光正好,你是否也想擁有一套屬于自己的家? 圖紙之家-專注農村別墅/自建房設計18年,集合國內200余位經驗豐富的設計師,被評為口碑最好的農村建筑設計公司! |

110平米一層小別墅設計方案,布局四室兩廳一廚兩衛
占地:110.5平方米
115平旋轉樓梯三層復式別墅房屋設計圖,含外觀效果圖
占地:115平方米
二層農村房子圖片及全套施工圖紙,占地150平面左右
占地:150平方米
30萬以下的經典二層新農村別墅設計圖紙及效果圖,簡單大氣
占地:170平方米
簡單實用農村自建房五間一層別墅設計圖,多款戶型
占地:多戶型可選
170平方米新農村現代樓中樓三層別墅設計施工圖紙及效果圖
占地:170平方米
樓中樓客廳挑高二層別墅設計圖,復式別墅方案推薦
占地:122平方米
農村兩間三層房屋設計圖,含外觀圖片
占地:120平方米
260平方米歐式四層別墅設計圖20X18米,造價108萬
占地:260平方米
最新三層農村別墅設計圖紙,推薦農村自建
占地:106平方米
三層新農村小別墅設計圖紙,占地120平米,客廳中空,帶大露臺
占地:120平方米
鄉村二層簡歐小戶型別墅圖設計,占地90平方米左右
占地:92.12平方米
農村2026新式好看又簡單的二層樓房設計圖,外形美觀,家用足夠
占地:200平方米
155平方米新三層全套別墅設計資料,15x10米
占地:158平方米
簡約大氣四開間二層自建房設計圖,16x10米,經典耐看高顏值
占地:160平方米
95平方米農村四層房屋設計圖,8米X11米 ,預算37萬
占地:95平方米
150平米簡歐三層農村別墅設計圖,低調又奢華
占地:151.2平方米
歐式豪華三層別墅設計圖,占地面積170平米,高端大氣帶露臺
占地:170平方米
140平方米新農村三層房屋設計圖,磚混結構帶地下室
占地:138平方米左右
240平方米新農村四合院兩層樓房施工設計圖紙帶外觀圖
占地:234平方米
推薦:10套新農村自建房設計圖,2026年最新設計
閱讀次數:4825737次
100套鄉村別墅圖片大全,2026年最新設計
閱讀次數:2492203次
6款農村蓋一層平房的設計圖,10萬元就能建起來
閱讀次數:1852637次
這11個一層農村自建房別墅火爆了朋友圈!我最喜歡戶型十!你呢
閱讀次數:750268次
農村6萬元建一層小別墅圖,你敢相信嗎
閱讀次數:567686次
農村5萬塊就能自建房,6套普通房子設計圖分享,你沒看錯!
閱讀次數:419410次
8套農村漂亮三間平房圖片,非常適合在農村修建!
閱讀次數:411197次
農村自建房化糞池怎么做?附方案及施工過程
閱讀次數:391783次
農村一層三間平房設計圖,告別土氣養老房,讓人忍不住點贊
閱讀次數:350581次
新農村二層樓房圖片造價12萬,挑一套回家建房吧!
閱讀次數:349126次
