
|
擇一城終老,選一處養老!自建新款農村三層樓房別墅設計圖紙!
外觀
外觀
外觀
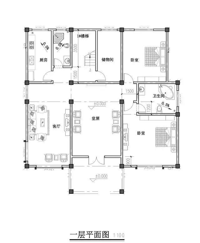
一層
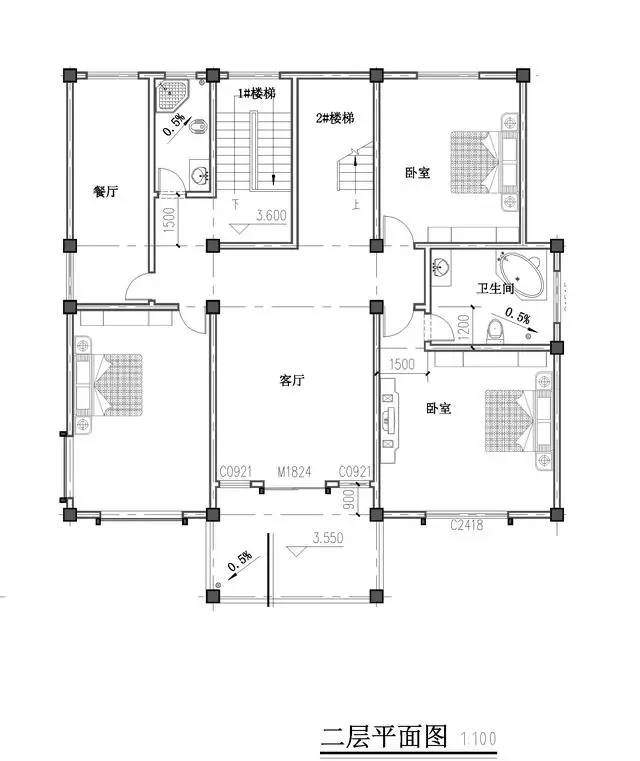
兩層
三層 想要以上別墅全套施工圖紙還是想要根據您的地基及要求來定制設計獨一無二的個性化別墅大宅?:全套圖紙包含完整效果圖預覽,房屋平面設計、結構設計、建筑設計、水電設計以及各個細微部分的設計,圖紙拿給施工人員即可立即施工。
VILLA ﹀ ﹀
別墅設計: 分享前沿設計,傳遞創意、情感設計, 品位生活美學,享受格調生活。 在這里,看見你的美學,遇見你的生活! 圖紙之家-專注農村別墅/自建房設計18年,集合國內200余位經驗豐富的設計師,被評為口碑最好的農村建筑設計公司! |

農村二層半帶露臺別墅圖片及設計圖,戶型方案比較經典
占地:123平方米
農村超級好看的現代風格兩層小樓圖,清新優雅
占地:多種戶型
獨立餐廳廚房,平屋頂現代風格三層別墅設計圖
占地:159.02平方米
平屋頂二層自建房帶商鋪別墅設計圖紙及外觀圖
占地:225平方米
160平方米農村三層小別墅設計圖紙,13.8x12.7米
占地:163平方米
小戶型現代新農村三層房屋設計建筑圖及效果圖
占地:108平方米
120平方米農村四層別墅設計圖,含全套施工圖
占地:120平方米
帶車庫三層自建別墅設計圖紙,客廳中空,外觀洋氣時尚,這款戶
占地:170平方米
歐式二層別墅平面圖,全套cad設計圖紙和外觀效果圖
占地:202平方米
120平方米農村經典二層房屋設計圖紙,造型精致好看
占地:121平方米
農村25萬別墅款式二層自建房設計圖,外觀簡約大氣
占地:多種戶型
造價便宜的二層雙拼別墅設計圖,造型簡約大氣,進深10米
占地:SP23059
農村簡單雙拼小戶型,總面積190平方米,合理的利用了每一個空間
占地:190平方米
農村實用三層樓房圖片,占地140平米左右,客廳中空
占地:140平方米
占地百平農村三層戶型方案,簡約實用,獨具特色,理想新居等你
占地:105.61平方米
農村兩開間農村別墅設計圖,典雅大氣,完全不輸大戶型
占地:116.26平方米
一層農村三合院平房設計圖,可以倆兄弟或和父母兒女一起住
占地:202.79平方米
經濟實用二層農村自建房設計圖,新中式風格12x11米
占地:114平方米
14米乘10米農村二層別墅新款,外觀對稱設計,經久耐看!
占地:140平方米
新農村二層小別墅全套設計圖紙(含外觀效果圖)
占地:85.6平方米
推薦:10套新農村自建房設計圖,2026年最新設計
閱讀次數:4825737次
100套鄉村別墅圖片大全,2026年最新設計
閱讀次數:2492203次
6款農村蓋一層平房的設計圖,10萬元就能建起來
閱讀次數:1852637次
這11個一層農村自建房別墅火爆了朋友圈!我最喜歡戶型十!你呢
閱讀次數:750268次
農村6萬元建一層小別墅圖,你敢相信嗎
閱讀次數:567686次
農村5萬塊就能自建房,6套普通房子設計圖分享,你沒看錯!
閱讀次數:419410次
8套農村漂亮三間平房圖片,非常適合在農村修建!
閱讀次數:411197次
農村自建房化糞池怎么做?附方案及施工過程
閱讀次數:391783次
農村一層三間平房設計圖,告別土氣養老房,讓人忍不住點贊
閱讀次數:350581次
新農村二層樓房圖片造價12萬,挑一套回家建房吧!
閱讀次數:349126次
