
|
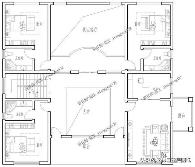
新中式風格是近幾年農村建房中最流行的風格,雖然沒有歐式那樣霸氣側漏,但是它的低調內斂,卻處處彰顯內涵和品味。而今天推薦的這款新中式風格的別墅,整個外觀都非常的有質感,米白色的真石漆,大開間的入戶門廳,對稱式的結構,都是經典和傳世的象征。
建筑面寬18.0米,進深18.2米。從大門入戶,用影壁遮擋,有一個室內天井,配有石椅和水景和景觀樹,地面以石頭紋理體現質感,配合角落樹木讓空間更為開闊。院門樣式大方,中心門把以圓體現吉祥寓意。四周的走廊方便出入室內的各個功能。
東廂房為廚房和餐廳,餐廳比較大,可以容納一大家子一起吃飯聚餐。另個還有側門方便出入。中堂是復式為堂屋兼客廳,一層另設計有3間臥室。
二樓設計有三間臥室,每間臥室都帶有內衛,另有客廳和書房,屋頂露臺。
三層設計有起居室,2個帶內衛的套間和屋頂露臺。
室內裝修都是采用中式元素裝飾,鏤空設計和幾何形狀結合都極有特色。陽臺選用中式護欄,弱化墻體厚度增加中式韻味。
圖紙之家-專注農村別墅/自建房設計18年,集合國內200余位經驗豐富的設計師,被評為口碑最好的農村建筑設計公司! |

人字坡紅磚一層別墅設計圖,簡約低調超實用,這樣的房子人人能
占地:136.51平方米
2款現代風格農村兩層別墅設計圖,時尚漂亮
占地:多戶型可選
農村4開間二層別墅設計圖,帶堂屋帶露臺,進深9米
占地:126平方米左右
小宅基地自建房設計圖,占地不到90平三層別墅圖紙
占地:87平方米左右
2026年新款二層半農村自建小別墅設計圖紙,占地150平方米
占地:150平方米
經濟實用二層農村自建房設計圖,新中式風格12x11米
占地:114平方米
不帶廚房的一層別墅設計圖,三臥二廳超巴適,室外獨立廚房
占地:120平方米
美式二層別墅設計圖,含外觀效果圖,造型精美
占地:144平方米
13米開間的獨棟經濟型二層小別墅房屋設計圖,現代簡約
占地:150.39平方米
二層精美偏法式風格別墅設計圖,不但顏值高,品質還高
占地:154.17平方米
網紅中式一層三合院別墅設計圖,白墻黛瓦古典大氣,讓人心曠神
占地:248.82平方米
全新農村簡歐風格三層房屋別墅效果圖,110和210兩個戶型,帶電梯
占地:多種戶型
私家二層農村自建房設計圖及效果圖,造價20萬左右
占地:125平方米
帶閣樓的一層半平房設計圖,比樓房還舒適,12米×13米
占地:170.1平方米
165平方米三層雙拼農村房屋設計圖大全14x12
占地:168平方米
簡歐式三層半(4層)農村自建房別墅設計圖效果圖,帶車庫戶型
占地:127平方米
歐式大氣新農村三層別墅豪宅設計圖,外觀高端,對稱設計
占地:225平方米左右
130平新農村二層住宅設計圖,外觀精致、漂亮
占地:130平方米
美式風格鄉村兩層小別墅自建房設計圖,外觀圖好看
占地:150平方米
2026新農村三層雙拼房屋設計圖紙平面圖與效果圖,帶堂屋
占地:190平方米
推薦:10套新農村自建房設計圖,2026年最新設計
閱讀次數:4825737次
100套鄉村別墅圖片大全,2026年最新設計
閱讀次數:2492203次
6款農村蓋一層平房的設計圖,10萬元就能建起來
閱讀次數:1852637次
這11個一層農村自建房別墅火爆了朋友圈!我最喜歡戶型十!你呢
閱讀次數:750268次
農村6萬元建一層小別墅圖,你敢相信嗎
閱讀次數:567686次
農村5萬塊就能自建房,6套普通房子設計圖分享,你沒看錯!
閱讀次數:419410次
8套農村漂亮三間平房圖片,非常適合在農村修建!
閱讀次數:411197次
農村自建房化糞池怎么做?附方案及施工過程
閱讀次數:391783次
農村一層三間平房設計圖,告別土氣養老房,讓人忍不住點贊
閱讀次數:350581次
新農村二層樓房圖片造價12萬,挑一套回家建房吧!
閱讀次數:349126次
