
|
現在農村的生活越來越好,不管是人文環境還是居住環境,基礎設施建設,都在向著現代化農村邁進,難怪不少城市人都費盡心思想在農村圈一塊地建一棟房子。如果農村的房子可以上市交易買賣,恐怕早被炒房客炒上天。今天給大家介紹一波看起來豪氣沖天,但是造價卻非常經濟的三層歐式小洋樓,隨便擁有一套都足夠讓你笑開花。 戶型一
集高貴與端莊于一體,完全不是外面隨處可見的歐式風格,線條棱角分明,羅馬柱威武大氣,雕花精美細致,落地窗通透大氣,沉穩富有質感的配色,每天在這樣的屋子里醒來,真的要被鄰居和朋友羨慕死。
開間12米,進深13.9米,占地面積148平方米,建筑面積405平方米,主體造價45萬左右。一層設計1室2廳1廚1衛1玄關,朝南的臥室大方通透,適合老人家居住,免于爬樓,二層設計3室1廳2衛,朝南主臥帶套間設計,三層設計2室2廳1衛1陽臺,娛樂廳的設計讓農村生活更加有趣味性。 戶型二
這款配色比較的活潑有生氣,和周邊綠意盈盈的植物遙相呼應,與自然融為一體才是這棟房子想要強調。復式玻璃窗的設計,通透又明亮。
開間10.2米,進深11.9米,占地面積126.74平方米,建筑面積362.67平方米,主體造價35—42萬左右。這是一款南北通透的小戶型,麻雀雖小五臟俱全,室內設計7間臥室,二層有一個小陽臺,三樓有一個大露臺,家里有兩兄弟人口簡單的也可以這樣建,每一層都有各自的私密空間。 戶型三
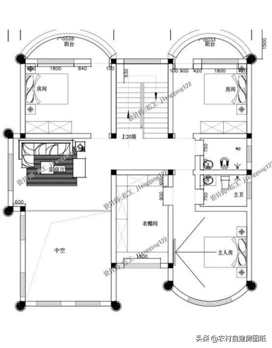
這是一棟獨棟三層歐式別墅,八角樓臺讓整個建筑富有設計感,整齊統一的落地玻璃窗通透明亮,而且讓外觀現代氣息濃郁,外觀采用文化石頭裝飾,既簡單平時又容易打理。
開間13.2米,進深14.1米,占地面積168.16平方米,建筑面積428.32平方米,主體造價45—50萬。別墅第一層設計門廳,餐廳,客廳,廚房,公衛,儲藏室,2間臥室,臥室在北面,形成一個相對獨立的休息區域,免于被打擾。二層設計3間臥室,主臥是套間設計,帶有衣帽間和衛生間。三層設計2間臥室,公衛,陽臺,大露臺,大露臺的設計非常吸引人,不僅可以用作休閑娛樂,還可以晾曬衣物,非常方便。 戶型四
這是一款簡單素雅的三層別墅,灰色真石漆裝飾主體,讓整棟建筑看起來富有格調,沉穩而內斂,洋紅色屋頂增添活力氣息。通過屋頂和陽臺之間的落差,形成層次感。
開間11.4米,進深10.5米,占地面積124平方米,建筑面積354平方米,造價36—42萬左右。室內一共設計7室3廳1廚6衛,再搭配一個大露臺,每一層都是一個獨立的空間,可以做到互不打擾。 圖紙之家-專注農村別墅/自建房設計18年,集合國內200余位經驗豐富的設計師,被評為口碑最好的農村建筑設計公司! |

新中式復式三層別墅設計圖紙,最美的新中式別墅
占地:130平方米
鄉村仿古一層別墅圖片及設計圖,經典實用,占地170平
占地:170平方米
農村簡單雙拼小戶型,簡單適用,客廳中空,總占地210平方米
占地:210平方米
80-90平米自建樓房設計圖,農村小別墅經典戶型圖
占地:86平方米
七字型一層平房別墅設計圖紙,15X16米
占地:177.9平方米
居家養老一層別墅設計圖,面寬20米,農村建一棟不吃虧
占地:259.7平方米
共用樓梯二層雙拼自建別墅設計圖,簡單大氣方正
占地:153.88平方米,
16米乘12米農村二層別墅設計圖,布局舒適寬敞、客廳挑空
占地:188.18平方米
最漂亮五間一層自建別墅設計圖,布局實用顏值高!
占地:多戶型可選
農村自建四層百萬豪宅別墅設計圖,客廳中空
占地:170平方米
鄉村兩層半150平帶閣樓別墅房屋設計圖,客廳大、臥室多
占地:150平方米
新款三層豪華大氣歐式別墅設計圖,3種戶型設計方案
占地:125平方米左右
新款三層農村自建別墅設計圖,中式風復式客廳
占地:158.96平方米
帶陽光房的二層簡歐別墅圖紙,戶型經典實用
占地:147.2平方米
歐式三層樓中樓別墅設計圖紙帶車庫(含外觀效果圖)
占地:130平方米
農村四間房屋設計圖經典戶型,這樣設計美觀、實用
占地:169平方米
農村兩層新中式仿古四合院別墅戶型圖,小型占地不到200平
占地:193平方米
面寬17米農村實用自建房一層別墅設計圖,簡約大氣經濟時尚
占地:192.94平方米
簡單漂亮實用的三層自建房設計圖,帶露臺,占地170平方米
占地:170平方米
造價40萬三層大氣自建房設計圖紙,鄉村別墅建造圖
占地:159.609平方
推薦:10套新農村自建房設計圖,2026年最新設計
閱讀次數:4825737次
100套鄉村別墅圖片大全,2026年最新設計
閱讀次數:2492203次
6款農村蓋一層平房的設計圖,10萬元就能建起來
閱讀次數:1852637次
這11個一層農村自建房別墅火爆了朋友圈!我最喜歡戶型十!你呢
閱讀次數:750268次
農村6萬元建一層小別墅圖,你敢相信嗎
閱讀次數:567686次
農村5萬塊就能自建房,6套普通房子設計圖分享,你沒看錯!
閱讀次數:419410次
8套農村漂亮三間平房圖片,非常適合在農村修建!
閱讀次數:411197次
農村自建房化糞池怎么做?附方案及施工過程
閱讀次數:391783次
農村一層三間平房設計圖,告別土氣養老房,讓人忍不住點贊
閱讀次數:350581次
新農村二層樓房圖片造價12萬,挑一套回家建房吧!
閱讀次數:349126次
