
|
隨著社會的發展,經濟水平的提高,現在的農村地區也得到了很大的改善,最起碼基礎設施已經完善的差不多了,條條大路,逐漸浮現出來,正所謂要想富先修路,現在的農村路面已經修好了,想必離富裕也不遠了。
全國各地許多農村地區都已經住上了小洋樓,開上了小汽車,這讓許多城里人感到羨慕,也許看到這一棟棟豪華的別墅,人們會認為在農村鑒別出一定很貴吧,其實并非如此,在農村蓋一棟別墅,100多平米,二三十萬就能修建成功,很多人不相信,下面讓我們一起來看一下楊女士的曬家,看看她是怎么說的吧!
“其實農村建房子真的沒有人們所要想的那么高。在不我的這款農村2層別墅,占地面積76.6平方米,主體造價20萬不到,許多城里人看見都表示羨慕,這么低的造價就能夠建出這么美麗的別墅。” 下面就讓我帶大家一起閱覽一下我家這款別墅。因為在農村修建,所以選擇田園風別墅,這樣的話更貼近大自然,更貼近農村生活,別墅的外觀主要使用文化史,面磚進行裝飾。其余的材料裝飾都是為了凸顯出別墅的美感,整體看下來,整棟別墅十分溫馨,有家的溫暖。
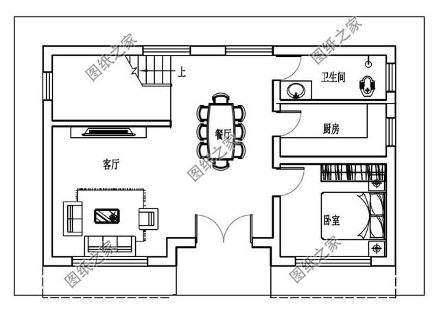
下面再讓我們看一下室內布局情況,別墅一層入戶就是客廳,臥室位于右側,出門就是餐廳廚房和公共衛生間,室內布局簡約時尚,面積不大,室內卻應有盡有,非常符合現代年輕人的生活需求。
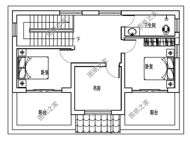
二層里有兩間臥室,因為家庭人口不多,所以兩間臥室完全能夠滿足我們的需求。為了保障臥室的面積,寬敞,衛生間書房陽臺面積都相對較小,將留有空余的空間都留給臥室。
上圖為實景拍攝圖,為了讓別墅更突出,門前設立有長長的迎賓臺階,提高了別墅的豪華版,同時讓人一眼就能記住,增加自己在村里的威望。
自從進了這棟別墅后,每逢過年過節家里十分熱鬧,親戚朋友看到這款別墅都說好,在老家建房子就要選擇這樣的別墅風格,享受真正的田園生活。 圖紙之家-專注農村別墅/自建房設計18年,集合國內200余位經驗豐富的設計師,被評為口碑最好的農村建筑設計公司! |

130平米左右三層農村小別墅,經典永不過時三層小洋樓
占地:130平方米
預算20萬左右三層別墅設計圖紙,新農村自建房推薦
占地:118平方米
210平方米新農村三層雙拼全套別墅設計圖紙帶效果圖
占地:207.25平方米
自建一層農村別墅圖,經濟實用新選擇,建房必備參考戶型!
占地:142.88平方米
農村15萬元二層小樓圖,經濟實用小別墅設計圖
占地:105平方米
農村三層樓房設計圖及圖片,客廳挑空,優化室內采光
占地:140平方米
復式挑空二層別墅設計圖,占地175平米,建好住著很舒適
占地:175.44平方米
二層復式小洋樓設計圖,外觀精致,戶型合理
占地:115平方米
一層中式風格自建小院,白墻黛瓦舒適宜居,享受舒適愜意的鄉村
占地:263.94平方米
農村實用型一層半樓房圖片效果圖,占地140平米左右
占地:140平方米
大開間小進深的一層別墅設計圖,進深僅8.7米,獨立餐廚照樣美觀
占地:130.32平方米
農村三層帶車庫、帶露臺別墅設計圖,經典自建別墅設計方案
占地:160平方米
極簡大氣二層別墅設計圖,15米面寬,簡約大氣,年輕人的最愛!
占地:150平方米
新中式徽派帶露臺別墅設計圖,構思精巧,自然得體
占地:124.82平方米
農村二層半樓房設計圖及效果圖,歐式風格
占地:150平方米
造價40萬三層大氣自建房設計圖紙,鄉村別墅建造圖
占地:159.609平方
18×15米新中式高檔農村三層別墅設計圖,低調奢華又實用
占地:195.91平方米
105平方米新農村三層別墅設計圖,全套CAD建筑圖+效果圖
占地:105平方米
歐式二層別墅cad施工圖紙,含效果圖,歐式別墅設計圖紙展示
占地:189平方米
農村二層半新中式小別墅設計圖(帶閣樓層),二層半自建房戶型
占地:144平方米
推薦:10套新農村自建房設計圖,2026年最新設計
閱讀次數:4825737次
100套鄉村別墅圖片大全,2026年最新設計
閱讀次數:2492203次
6款農村蓋一層平房的設計圖,10萬元就能建起來
閱讀次數:1852637次
這11個一層農村自建房別墅火爆了朋友圈!我最喜歡戶型十!你呢
閱讀次數:750268次
農村6萬元建一層小別墅圖,你敢相信嗎
閱讀次數:567686次
農村5萬塊就能自建房,6套普通房子設計圖分享,你沒看錯!
閱讀次數:419410次
8套農村漂亮三間平房圖片,非常適合在農村修建!
閱讀次數:411197次
農村自建房化糞池怎么做?附方案及施工過程
閱讀次數:391783次
農村一層三間平房設計圖,告別土氣養老房,讓人忍不住點贊
閱讀次數:350581次
新農村二層樓房圖片造價12萬,挑一套回家建房吧!
閱讀次數:349126次
