
|
今天要給大家分享的這套別墅,是小編特別喜歡的一款,不論是從外觀,還是布局上來看,都深得小編的歡心,這棟房子說真的,真是漂亮極了,小編看過這么多圖紙,這款是比較能get到內心的點,真正的別墅,就該是這樣的! 項目地點位于內蒙古,基地東側距離業主家8米左右是一棟住宅,西側是鄰居家住宅,南、北兩側是道路。由于基地面積較大,建筑受到環境影響極其有限。 考慮到北方冬天寒風凜冽,在入戶門的位置均設計有避風閣,布局上結合農村建房風俗、當地的氣候,設有佛堂、火炕、鍋爐房等,既美觀又很接地氣呢!
【戶型信息】 開間:25.0米 進深:11.0米 建筑面積:551.0㎡ 土建造價:85.0萬
背面效果
東南側
西南側
東立面
西立面
【施工效果】
【室內布局】
地下層平面圖 地下層:酒窖、儲藏室
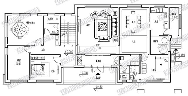
一層平面圖 一層:挑空客廳、廚房、餐廳、鍋爐房、長輩房(帶火炕、衛生間)、棋牌室、佛堂、客臥、公衛×2、避風閣×2
二層平面圖 二層:家庭活動廳、臥室(帶露臺)、臥室、臥室(帶書房、陽臺)、臥室(帶陽臺)、公衛×2、陽臺 圖紙之家-專注農村別墅/自建房設計18年,集合國內200余位經驗豐富的設計師,被評為口碑最好的農村建筑設計公司! |

田園風格別墅設計圖紙及效果圖,三層鄉村小別墅設計方案
占地:166.4平方米
造價低經濟簡單的二層農村自建房圖紙設計,簡潔實用
占地:136.08平方米
16×12米二層歐式帶車庫農村小別墅,既舒適又美觀
占地:180平方米
農村三間一層別墅設計圖,經濟實用還好看
占地:139.56平方米
農村二層半別墅設計圖,簡單實用,造價低
占地:140平方米
新農村三層自建樓房設計圖,帶大露臺,外觀大氣
占地:136平方米
面寬9米的三層農村自建房設計圖,適合鄉下地區自建
占地:121.94平方米
面寬16米三層法式別墅設計圖,設計新穎別致,建成后美不勝收
占地:162.07平方米
200平方米農村二層中式四合院設計圖,含外觀圖片
占地:200平方米
帶閣樓的二層半別墅設計圖和效果圖,外飾簡單但不失奢華
占地:210平方米
新農村二層客廳挑高樓房設計圖,外觀歐式風格
占地:178平方米
2026帶車庫三層雙拼別墅房屋設計圖,配色淡雅低調
占地:224平方米
新款三層豪華大氣歐式別墅設計圖,3種戶型設計方案
占地:125平方米左右
復式三層別墅設計圖片及全套圖紙,客廳中空,外觀為歐式建筑的
占地:175平方米
農村一層帶小院房屋設計圖,帶院子一層自建房別墅戶型圖
占地:161.16平方米
新中式高端豪宅三層別墅自建房設計圖,大戶型經典
占地:270平方米左右
漂亮的二層中式現代別墅圖,配色非常的溫馨淡雅
占地:160平方米
地中海風格二層別墅房屋設計圖,帶外觀效果圖
占地:150平方米
平頂三層別墅設計方案,簡潔舒適大氣通透,12乘9米,打造理想住
占地:98.21平方米
260平方米兩層帶車庫四合院房屋設計圖紙及效果圖
占地:260平方米
推薦:10套新農村自建房設計圖,2026年最新設計
閱讀次數:4825737次
100套鄉村別墅圖片大全,2026年最新設計
閱讀次數:2492203次
6款農村蓋一層平房的設計圖,10萬元就能建起來
閱讀次數:1852637次
這11個一層農村自建房別墅火爆了朋友圈!我最喜歡戶型十!你呢
閱讀次數:750268次
農村6萬元建一層小別墅圖,你敢相信嗎
閱讀次數:567686次
農村5萬塊就能自建房,6套普通房子設計圖分享,你沒看錯!
閱讀次數:419410次
8套農村漂亮三間平房圖片,非常適合在農村修建!
閱讀次數:411197次
農村自建房化糞池怎么做?附方案及施工過程
閱讀次數:391783次
農村一層三間平房設計圖,告別土氣養老房,讓人忍不住點贊
閱讀次數:350581次
新農村二層樓房圖片造價12萬,挑一套回家建房吧!
閱讀次數:349126次
