
|
兩側有鄰居,75萬廣東農村別墅中庭車庫采光都有,這外觀真美
兩側有鄰居,75萬廣東農村別墅中庭車庫采光都有,這外觀真美 項目名稱:廣東清遠丁家新中式別墅 項目地點:廣東省清遠市 建筑面積:500㎡ 基地面積:280㎡ 建筑尺寸:11.8m×17.9m 占地面積:142㎡ 圖紙編號:681 戶型概況:10室5廳6衛1廚1車庫1茶室1儲物1書房1水泵 建筑結構:框架結構 主創建筑師:楊洋 土建參考造價:75萬元(不包含室內裝修費用) 項目概況
兩側有鄰居,75萬廣東農村別墅中庭車庫采光都有,這外觀真美 △總平面示意圖 項目位于廣東,建筑占地140平米左右。基地東、西兩側是鄰居家住宅,南、北兩側都是村內小路。由于東、西兩側鄰居家住宅距離基地過近,因此平面需要注意室內采光問題。 圖紙設計
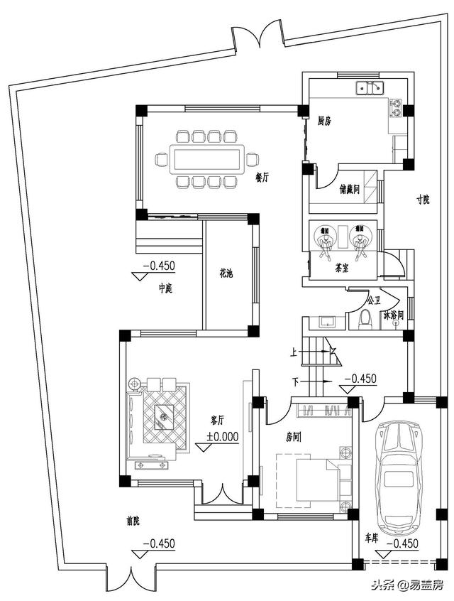
兩側有鄰居,75萬廣東農村別墅中庭車庫采光都有,這外觀真美 △一層平面圖 考慮到場地實際情況,東西兩側向內退讓部分距離,平面利用中庭為室內引入更多光照。 客廳位于西南角,通過中庭形成南北通透的室內格局,老人房與客廳和樓梯間相鄰,位置上較為便利。車庫位于東南角,直接與室內連通。 北側餐廳三向采光,室內明亮,空間上也更加通透。廚房與儲藏間一體化設計,功能布置方便了家人的日常生活。廚房和樓梯間位于東側,符合風水要求。茶室與寸院相連,同時正對中庭的花池,風景視野極佳。
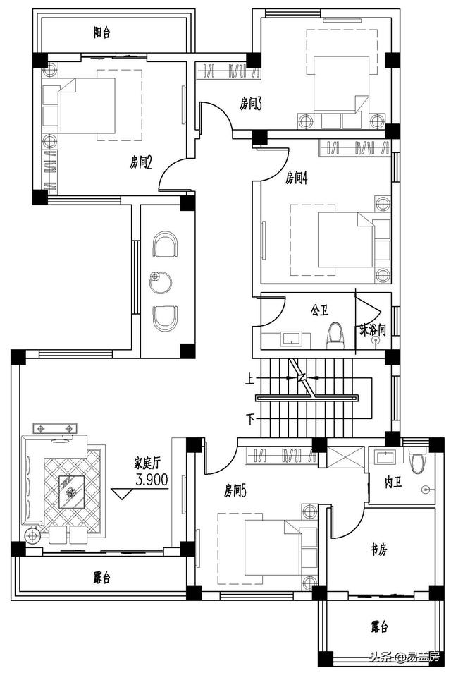
兩側有鄰居,75萬廣東農村別墅中庭車庫采光都有,這外觀真美 △二層平面圖 二層為起居空間,整層共有4間臥室,南側主臥配有書房、露臺和獨立衛生間,豐富功能讓主臥更為豪華。中庭上方休息區增加公共區域面積,讓整層空間更為舒適,也符合業主及其家人使用習慣。
兩側有鄰居,75萬廣東農村別墅中庭車庫采光都有,這外觀真美 △三層平面圖 三層與二層布局基本一致,僅在南側進行了調整,取消了露臺空間,并將主臥書房調整為陽臺,保證主臥室內光照充足,同時為業主家人提供了衣物晾曬場所。
兩側有鄰居,75萬廣東農村別墅中庭車庫采光都有,這外觀真美 △四層平面圖 四層主臥與三層配置一樣,南側過廳空間較大,后續可根據實際情況進行布置。西側露臺除觀景外,聚餐燒烤也別有一番趣味。 造型設計
兩側有鄰居,75萬廣東農村別墅中庭車庫采光都有,這外觀真美 △鳥瞰圖 建筑整體為新中式風格,立面采用白灰作為主色,局部點綴木色提亮。顏色變化配合中庭寸院,在視覺上明確空間界限,讓建筑整體層次分明。
兩側有鄰居,75萬廣東農村別墅中庭車庫采光都有,這外觀真美 △鳥瞰圖 屋頂采用雙坡屋頂和單坡屋頂組合,除造型不同外,屋頂在不同區域高度也有所不同,如此設計將建筑重點更好展現。屋頂變化也使得建筑整體更為醒目。
兩側有鄰居,75萬廣東農村別墅中庭車庫采光都有,這外觀真美 △鳥瞰圖 建筑整體層次豐富,錯落起伏間提高基地內空間利用率,也為室內帶去更多采光。南側中式窗檐配合現代窗套形成對比,于沖突中形成建筑的獨特性。
兩側有鄰居,75萬廣東農村別墅中庭車庫采光都有,這外觀真美 △鳥瞰圖
兩側有鄰居,75萬廣東農村別墅中庭車庫采光都有,這外觀真美 △西南側效果圖 院門兩側墻面以簡約大方墻燈作為裝飾,暖黃色燈套與木色大門交相輝映,使得中式門樓于大氣中擁有家的感覺。
兩側有鄰居,75萬廣東農村別墅中庭車庫采光都有,這外觀真美 △東南側效果圖
兩側有鄰居,75萬廣東農村別墅中庭車庫采光都有,這外觀真美 △西北側效果圖 庭院無過多景觀裝飾,如此設計不會遮擋室內采光,開闊空間也會讓建筑更加突出。厚重院墻與建筑立面結合,使得顏色多了變化,與建筑主體更加貼合。
兩側有鄰居,75萬廣東農村別墅中庭車庫采光都有,這外觀真美 △東北側效果圖
兩側有鄰居,75萬廣東農村別墅中庭車庫采光都有,這外觀真美 △東立面圖
兩側有鄰居,75萬廣東農村別墅中庭車庫采光都有,這外觀真美 △西立面圖
兩側有鄰居,75萬廣東農村別墅中庭車庫采光都有,這外觀真美 △南立面圖
兩側有鄰居,75萬廣東農村別墅中庭車庫采光都有,這外觀真美 △北立面圖 圖紙之家-專注農村別墅/自建房設計18年,集合國內200余位經驗豐富的設計師,被評為口碑最好的農村建筑設計公司! |

L字型自建房屋設計圖,一層別墅類型,外觀效果圖漂亮
占地:188.62平方米
新農村二層帶庭院的小別墅設計圖及效果圖
占地:137平方米
新中式一層別墅設計圖紙,農村自建平房戶型方案圖
占地:183.7平方
120平米三層別墅房屋設計圖,帶車庫,帶閣樓
占地:120平方米
10萬內2層小洋樓設計圖,平屋頂,戶型設計合理
占地:90平方米
2026最新款50萬左右農村三層別墅設計圖,客廳中空
占地:160平方米
漂亮實用三層新農村小別墅設計圖紙,占地150平米,帶露臺,從哪
占地:150平方米
鄉村兄弟二層小戶型雙拼房屋別墅設計圖,造價低,面積小
占地:多種戶型
農村一層四開間養老別墅設計圖,造型美布局佳
占地:164.27平方米
180平方米新農村三層別墅設計圖紙,效果圖+全套cad施工圖
占地:180平方米
南方新農村三層房屋設計圖大全,預算30萬內
占地:145平方米
農村18萬元二層小樓圖,占地120平面,戶型緊湊合理
占地:120平方米
2026最好看的農村三層樓房圖片及施工圖紙,客廳寬敞
占地:120平方米
占地200平米簡歐三層農村別墅設計圖,既顯華麗又接地氣
占地:209.27平方米
高端豪華三層別墅住宅設計方案圖,歐式外觀風格
占地:170平方米
帶閣樓的二層半別墅設計圖和效果圖,外飾簡單但不失奢華
占地:210平方米
帶架空層的三層農村別墅設計火了!雨季不怕返潮
占地:147.15平方米
新農村二層房屋建筑施工圖紙,廚房獨立在配房
占地:107平方米
簡單漂亮實用的三層自建房設計圖,帶露臺,占地170平方米
占地:170平方米
農村二層住宅樓圖紙及效果圖,帶地下室,戶型好
占地:220平方米
推薦:10套新農村自建房設計圖,2026年最新設計
閱讀次數:4825737次
100套鄉村別墅圖片大全,2026年最新設計
閱讀次數:2492203次
6款農村蓋一層平房的設計圖,10萬元就能建起來
閱讀次數:1852637次
這11個一層農村自建房別墅火爆了朋友圈!我最喜歡戶型十!你呢
閱讀次數:750268次
農村6萬元建一層小別墅圖,你敢相信嗎
閱讀次數:567686次
農村5萬塊就能自建房,6套普通房子設計圖分享,你沒看錯!
閱讀次數:419410次
8套農村漂亮三間平房圖片,非常適合在農村修建!
閱讀次數:411197次
農村自建房化糞池怎么做?附方案及施工過程
閱讀次數:391783次
農村一層三間平房設計圖,告別土氣養老房,讓人忍不住點贊
閱讀次數:350581次
新農村二層樓房圖片造價12萬,挑一套回家建房吧!
閱讀次數:349126次
