
|
歐式別墅丨堂屋+茶室+KTV+露臺,想體驗通透雅質的異國風情嗎?
歐式別墅丨堂屋+茶室+KTV+露臺,想體驗通透雅質的異國風情嗎? 項目名稱:湖南邵陽阮家歐式別墅 項目經理:陳林欣 圖紙編號:1127 建筑面積:495.3㎡ 占地面積:141.4㎡ 建筑尺寸:12.4m×11.9m 建筑結構:磚混結構 參考造價:79萬元左右(不含室內裝修費用) 項目概況
歐式別墅丨堂屋+茶室+KTV+露臺,想體驗通透雅質的異國風情嗎? △總平面示意圖 基地情況: 東:空曠場地 西:村內道路 南:入戶小路 北:空曠場地 項目簡介: 業主在項目前期表示在平面上,不喜歡增加凹凸變化的布局,希望設置大體積堂室,同時對立面效果有一定需求。設計師根據場地特殊朝向情況及業主需求和喜好,將項目形式確定為南北朝向的四層歐式別墅。 戶型概況: 4層 /12室 1堂屋 1廳 8衛 1廚 1衣帽 1茶室 2衣帽 1KTV室 2陽臺 2露臺
歐式別墅丨堂屋+茶室+KTV+露臺,想體驗通透雅質的異國風情嗎? △一層平面圖 一層布局相對簡潔,北側的老人房配置衣帽間和獨衛,半開放式廚房和餐廳則位于東北側;南側設置的客廳搭配中部堂屋和西側茶室相連極大豐富了空間的功能性。
歐式別墅丨堂屋+茶室+KTV+露臺,想體驗通透雅質的異國風情嗎? △二層平面圖
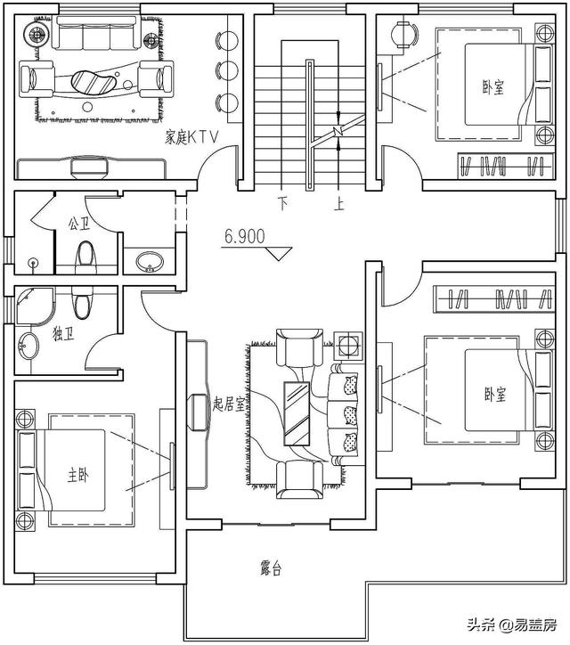
歐式別墅丨堂屋+茶室+KTV+露臺,想體驗通透雅質的異國風情嗎? △三層平面圖 二、三層以居住休閑功能為主,均設置大量臥室,二層在東南側預留挑空客廳的空間,與南側向外延伸的陽臺相呼應;三層中間布置的KTV室與南側的露臺相呼應,充分提升三層整體功能豐富性,又增強室內的采光效果。
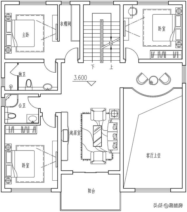
歐式別墅丨堂屋+茶室+KTV+露臺,想體驗通透雅質的異國風情嗎? △四層平面圖 四層室內空間均用于日常休閑居住,北側樓梯旁設置雙臥室,搭配采用干濕分離的公衛,和東南側大體量露臺空間,齊全的功能設置使居住體驗更為舒適。
歐式別墅丨堂屋+茶室+KTV+露臺,想體驗通透雅質的異國風情嗎? △南側效果圖
歐式別墅丨堂屋+茶室+KTV+露臺,想體驗通透雅質的異國風情嗎? △東側效果圖 建筑整體采用歐式風格設計,立面以豐富的柱體等裝飾突出門廳部分的入戶空間質感,并采用暖色真石漆與深色護欄形成對比,使整體造型更具視覺沖擊力。
歐式別墅丨堂屋+茶室+KTV+露臺,想體驗通透雅質的異國風情嗎? △東南側效果圖
歐式別墅丨堂屋+茶室+KTV+露臺,想體驗通透雅質的異國風情嗎? △鳥瞰圖 根據其功能特點把房子切割成三個部分,第一個部分是一二層,通過挑空客廳的大面積落地窗和玄關門頭柱,將一二層銜接在一起。
歐式別墅丨堂屋+茶室+KTV+露臺,想體驗通透雅質的異國風情嗎? △東北側效果圖 第二個部分重點在第三層,三層和二層通過包檐等歐式配件設計,使得露臺分隔開;第三個部分是四層,四層和三層由通長的深色包檐設計分隔開,看上去更顯大氣。
歐式別墅丨堂屋+茶室+KTV+露臺,想體驗通透雅質的異國風情嗎? △鳥瞰圖
歐式別墅丨堂屋+茶室+KTV+露臺,想體驗通透雅質的異國風情嗎? △局部效果圖 建筑南側設置雙露臺,使得建筑的景觀功能大大增強,同時為室外休閑活動提供了充足的空間,每層的臥室都有良好的活動空間和采光面,層次感很豐富。
歐式別墅丨堂屋+茶室+KTV+露臺,想體驗通透雅質的異國風情嗎? △室內效果圖
歐式別墅丨堂屋+茶室+KTV+露臺,想體驗通透雅質的異國風情嗎? △東立面圖
歐式別墅丨堂屋+茶室+KTV+露臺,想體驗通透雅質的異國風情嗎? △西立面圖
歐式別墅丨堂屋+茶室+KTV+露臺,想體驗通透雅質的異國風情嗎? △南立面圖
歐式別墅丨堂屋+茶室+KTV+露臺,想體驗通透雅質的異國風情嗎? △北立面圖 1.作為設計師,在這個項目中遇到了哪些困難? 答:整個項目溝通過程十分順利,業主的訴求也很明確,設計過程中,我們和業主配合默契,項目基本沒有遇到困難。 2.這個項目的設計周期是多久? 答:45天左右。 3.是否有自己非常滿意的設計建議未被業主接受? 答:項目溝通過程中業主的需求一直很明確,在設計過程中進展一直比較順利,經過我們的溝通說明,所有的設計意見都被很好地接受了。 圖紙之家-專注農村別墅/自建房設計18年,集合國內200余位經驗豐富的設計師,被評為口碑最好的農村建筑設計公司! |

帶地下室的三層歐式別墅戶型設計圖,帶地下室農村自建房
占地:139.256平方米
140平方米三層別墅設計圖紙,歐式帶外觀效果圖
占地:140平方米
兄弟兩戶雙拼房屋設計圖及外觀圖片,戶型合理
占地:185平方米
160平方米農村三層小別墅設計圖紙,13.8x12.7米
占地:163平方米
185平方米二層自建別墅設計施工圖紙及外觀效果圖,15x13米
占地:186平方米
2026年最新三層房屋設計圖紙,12米×11米,實用接地氣
占地:130平方米
人字坡紅磚一層別墅設計圖,簡約低調超實用,這樣的房子人人能
占地:136.51平方米
新農村自建三層復式結構房屋別墅設計圖紙及效果圖
占地:138平方米
大氣自建三層雙拼別墅戶型圖方案,完美的戶型就是它
占地:287平方米
170平方米農村二層房屋設計施工圖,外觀圖時尚、好看
占地:172平方米
簡歐復式四層別墅房屋設計圖,外觀圖高端、大氣
占地:143平方米
農村四間二層小洋樓設計圖,歐式別墅、現代洋氣
占地:200平方米
2026兩層半20多萬農村自建房圖,簡歐風格,美觀大氣
占地:120平方米
95平米二層別墅必蓋戶型圖,造型洋氣,布局接地氣,趕緊回村建
占地:95.38平方米
125平方米三層新農村房屋建筑施工設計圖帶外觀圖
占地:126平方米
兄弟倆二層雙拼別墅設計圖紙,一層共用,設計新穎
占地:180平方米
復式200平米三層樓房設計圖紙,大露臺還有健身房和書房
占地:200平方米
私人自建三層別墅設計圖紙帶效果圖,歐式風格、外觀大氣
占地:209.44平方米
小戶型經濟型三層雙拼小別墅施工設計圖紙,單戶100平內
占地:150平方米
新農村自建二層小樓圖,時尚大方,外型精美,室內布局也很贊
占地:137平方米
推薦:10套新農村自建房設計圖,2026年最新設計
閱讀次數:4825737次
100套鄉村別墅圖片大全,2026年最新設計
閱讀次數:2492203次
6款農村蓋一層平房的設計圖,10萬元就能建起來
閱讀次數:1852637次
這11個一層農村自建房別墅火爆了朋友圈!我最喜歡戶型十!你呢
閱讀次數:750268次
農村6萬元建一層小別墅圖,你敢相信嗎
閱讀次數:567686次
農村5萬塊就能自建房,6套普通房子設計圖分享,你沒看錯!
閱讀次數:419410次
8套農村漂亮三間平房圖片,非常適合在農村修建!
閱讀次數:411197次
農村自建房化糞池怎么做?附方案及施工過程
閱讀次數:391783次
農村一層三間平房設計圖,告別土氣養老房,讓人忍不住點贊
閱讀次數:350581次
新農村二層樓房圖片造價12萬,挑一套回家建房吧!
閱讀次數:349126次
