
|
本款圖紙為農村三層帶車庫別墅設計效果圖。
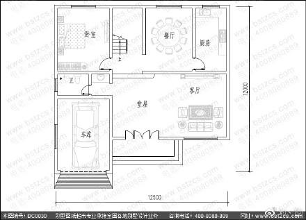
?圖紙屬性 編號: DC0030 層數: 三層 結構形式: 磚混結構 主體造價: 20-25萬 開間: 12.5米 進深: 12米 占地面積: 135.54平方米 建筑面積: 380.48平方米 圖紙內容 建 筑 圖: 建筑施工總說明、建筑構造設計說明、一層平面圖、二層平面圖、三層平面圖、屋頂平面圖、正立面圖、背立面圖、左立面圖、右立面圖、1-1剖面圖、樓梯大樣圖、節點大樣圖、門窗詳圖、門窗表 結 構 圖: 結構設計總說明、大樣圖、基礎平面布置圖、基礎大樣圖、一層頂梁結構平面圖、二層頂梁結構平面圖、悶頂梁結構平面圖、屋頂梁結構平面圖、一層頂結構平面圖、二層頂結構平面圖、悶頂層結構平面圖、屋頂結構平面圖、樓梯配筋圖 給排水圖: 給排水設計說明及圖例、一層給排水平面圖、二層給排水平面圖、三層給排水平面圖、屋頂給排水平面圖、衛生間大樣圖、給排水系統圖 電 氣 圖: 電氣設計說明、電氣設備材料表、等電位聯結做法、配電系統圖、弱電系統圖、配電干線系統圖、一層照明平面圖、二層照明平面圖、三層照明平面圖、一層插座平面圖、二層插座平面圖、三層插座平面圖、一層弱電平面圖、二層弱電平面圖、三層弱電平面圖、基礎接地平面圖、屋頂防雷平面圖 設計功能 一 層: 客廳、臥室、廚房、餐廳、衛生間、車庫 二 層: 客廳、2臥室(附陽臺)、臥室(附書房)、臥室、衛生間 三 層: 客廳(附陽臺)、2臥室、儲藏室、衛生間、露臺 首層戶型設計圖:
?施工圖紙預覽:
![]() 圖紙之家-專注農村別墅/自建房設計18年,集合國內200余位經驗豐富的設計師,被評為口碑最好的農村建筑設計公司! |

二層復式小洋樓設計圖,外觀精致,戶型合理
占地:115平方米
農村自建房就選它!一層新中式設計,日常居住需求全搞定
占地:128.45平方米
240平農村二層自建別墅設計圖紙,帶你體驗家的溫馨
占地:240平方米
帶堂屋新農村三層房屋別墅設計圖紙,帶外觀效果圖
占地:214平方米
小開間三層新中式小別墅設計圖,外觀圖優雅大氣,讓人心動!
占地:103.18平方米
大氣、簡約三層雙拼別墅設計圖,適合和父母同住,既相互關照又
占地:260平方米
小戶型三層現代風別墅設計圖,可別再說農村不適合現代風了
占地:92.34平方米
小戶型經濟農村雙拼自建房別墅設計圖紙,二層簡約造價低
占地:138平方米
戶型獨特的、二層臥室挑高的別墅房屋設計圖,外觀簡歐風格
占地:250平方米
三層平頂現代別墅設計圖,實用不花冤枉錢,建好倍有面子
占地:113.02平方米
120平米農村三層房屋設計圖,客廳中空,戶型合理
占地:120平方米
180平方農村二層別墅施工設計圖紙,15.8x11.7米
占地:180平方米
新農村簡歐三層樓房圖片自建3層別墅施工設計圖及效果圖
占地:126平方米
復式別墅新農村二層房屋設計圖紙,屋頂錯落有致
占地:多戶型可選
農村最好看18萬左右兩層小樓圖,外觀、造型簡潔大方
占地:120平方米
全新農村簡歐風格三層房屋別墅效果圖,110和210兩個戶型,帶電梯
占地:多種戶型
農村一層平房別墅設計圖,18米乘9米,實實在在的好戶型
占地:162平方米
140平方米三層別墅設計圖紙,歐式帶外觀效果圖
占地:140平方米
8.5×12米四層歐式房屋設計圖紙,占地100平,落地窗中嵌入了雕花
占地:100平方米
農村三層帶地下室住宅設計圖及圖片,房內設計了兩個套間
占地:210平方米
推薦:10套新農村自建房設計圖,2026年最新設計
閱讀次數:4825737次
100套鄉村別墅圖片大全,2026年最新設計
閱讀次數:2492203次
6款農村蓋一層平房的設計圖,10萬元就能建起來
閱讀次數:1852637次
這11個一層農村自建房別墅火爆了朋友圈!我最喜歡戶型十!你呢
閱讀次數:750268次
農村6萬元建一層小別墅圖,你敢相信嗎
閱讀次數:567686次
農村5萬塊就能自建房,6套普通房子設計圖分享,你沒看錯!
閱讀次數:419410次
8套農村漂亮三間平房圖片,非常適合在農村修建!
閱讀次數:411197次
農村自建房化糞池怎么做?附方案及施工過程
閱讀次數:391783次
農村一層三間平房設計圖,告別土氣養老房,讓人忍不住點贊
閱讀次數:350581次
新農村二層樓房圖片造價12萬,挑一套回家建房吧!
閱讀次數:349126次
