
|
尺 寸面寬13.7米 進深26.3米 建筑面積458.0㎡ 土建造價68.0萬
△基地照片 項目位于浙江,基地尺寸如上圖所示。東側是道路,西、南兩側為鄰居家住宅,北側是一條村內小路。基地四周環境較為簡單,但由于基地形狀限制導致建筑南向采光有限。
△總平面示意圖 圖紙設計
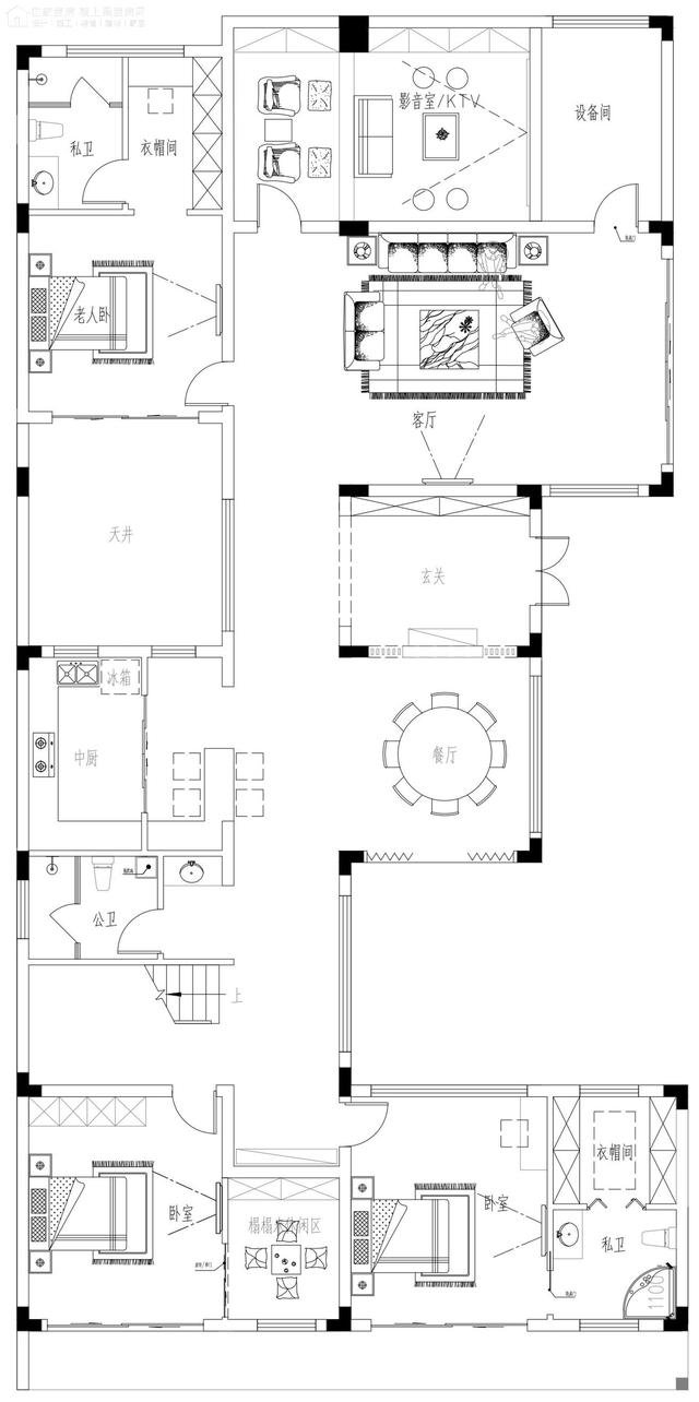
△一層平面圖 由于基地限制,建筑南向采光有限,因此平面布局利用凹凸變化,使房間盡可能獲取南向采光。 一層玄關正對天井,玄關正對位置采用大開窗將景色接入室內,讓入戶即能看到綠色。 客廳位于玄關北側,與影音室和設備間相鄰。客廳選用正面開窗與庭院互動,保證室內優良使用環境。餐廳和廚房位于玄關南側,餐廳位置被室外平臺環繞,直接連通室外的設計也方便業主用餐后散步休息。 一層3間臥室,均為套房形式。西北角和東南角臥室配有衣帽間和衛生間,西南角臥室帶有榻榻米休閑區。不同功能和位置的臥室滿足業主及其家人的不同需求。
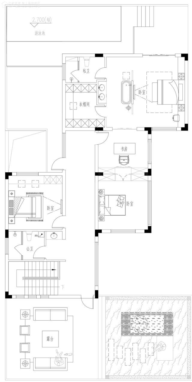
△二層平面圖 二層室內主要為起居空間,但在南北兩側有大量室外平臺,北側室外泳池和南側露臺豐富整體功能。 室內臥室分為主臥和次臥兩種形式,主臥配備衣帽間、衛生間和書房,多向采光讓主臥居住環境極佳。次臥與公衛相鄰,合理凹凸變化讓室內整體環境更好。 造型設計
△東南側效果圖
△鳥瞰圖 建筑整體為中式風格,配色較為傳統,淡雅利落的設計展現建筑的獨特性。平面凹凸變化使得建筑立面層次自然體現,干凈有韻味的中式元素配合層次感讓視覺十分豐富,
△鳥瞰圖 立面大開窗通過中式花紋以及特有元素弱化玻璃帶來的現代感。掩口下方木色利用對比強調存在感,以木質建材的質感配合灰瓦的歷史感,形成自然連接和沖撞亮點。
△鳥瞰圖 平臺位置根據建筑情況選擇玻璃和墻體結合的圍墻,墻體與院墻直接連接,連接處十分自然。玻璃區域將平臺和庭院溝通增強,整體景色呈現階梯狀分布,保證視覺上的舒適。
△東北側效果圖 院墻起伏與墻面配合,增加傳統元素的美感,中和墻面的厚重,院墻起伏之間也使得較長的基地尺寸不會在視覺上產生單調性和壓迫感。
△東南側效果圖 院門高于院墻,門前臺階和兩側小型抱鼓石于自然間展現入戶空間的威嚴。簡約大方的木門利落干凈,與建筑立面展現風格相符,較強的整體性帶來更強舒適感。
△院門效果圖
△庭院效果圖 庭院以月亮門分隔空間,不同區域與室內不同環境相對應,繁簡適中的景觀布局賦予庭院更多層次感。月亮門與墻上圓形孔洞搭配,僅以古意十足的裝飾品就能帶來極致享受。
△庭院效果圖 靠近餐廳處庭院以木廊架和假山流水營造出悠遠出塵之意,景觀兩側用綠竹花樹豐富顏色,展現中式園林的特有韻味。從院門進來,遞進景觀布局讓視覺有自然過渡。
△庭院效果圖
△東立面圖
△西立面圖
△南立面圖
△北立面圖 效果概述 設計師根據業主喜好,考慮到建筑各個空間的面積都較為開闊,因此設計師在公共空間的地面均通過波導線強調了空間劃分,天花板則通過燈池的方式與地面波導線呼應,增強了視覺上的空間感。
△一層客廳 客廳的空間非常開闊,由于沙發所靠的墻面整體比電視背景墻寬出一些,因此設計師通過深色的木材質拋光墻面板弱化了沙發墻兩端的形式感,通過中式壁燈和背景造型實現了和電視墻的對稱設計,突出了中式風格的特點。
△一層玄關 業主原本對于一層玄關的設計要求是兩側均做通透設計,但設計師考慮到玄關的收納和日常使用的方便,因此將北側墻面保留并做通頂的收納柜,南側墻面則通過木格柵和墻體圓形鏤空的設計實現空間的通透和連貫。 另外,入戶位置巧妙借用了西側的天井空間,將西側的落地窗改為整面的玻璃墻,通透的視覺設計可讓住戶一進門便欣賞到精致的綠植景觀。這樣的設計充分確保了整體玄關空間的功能合理性和體驗豐富性。
△一層餐廳&廚房 一層的餐廚空間功能豐富,既有與餐廳融合的使用方便的吧臺,又有與玄關南側相鄰的空間充足的餐廳,涵蓋了日常生活用餐的各方面需要。
△一層西南側客房&茶室 每間臥室的地面與墻面材質設計區分于公共空間,采用了木地板、地毯和墻紙等材料,增加居室空間溫馨感,再通過不同的背景墻裝飾分區使每間臥室具有不同的風格體驗。 一層西南側的臥室包含一間榻榻米茶室,因此設計師將整體風格設計得相對淡雅,創造安靜的品茶、交流氛圍。
△一層東南側客房&私衛 設計師在一層東南側的客房設計中,通過藍色的裝飾元素突出了年輕化的特點。
△一層西北側老人房 一層西北側的老人房在形式上與客房有所區分,老人房的窗楣設計使得室內的整體風格更趨近于傳統的中式風格;室內兩側背景墻的顏色與造型更為典雅沉穩,裝飾也更為莊重。 考慮到老人日常行動的便捷和安全,衣帽間以外的空間并未布置太多家具,衛生間中也設計了方便老人使用的淋浴壁凳。
△一層影音室 一層影音室包含KTV、家庭影院以及品酒室的三重功能。設計師考慮到投影屏尺寸的最佳觀影距離,以及二層露天泳池的影響,因此將觀影區設計在影音室最西側兩步臺階上的半區,而KTV、品酒區則設計在相對下沉的東側半區。 影音室的每側墻面均作了吸音處理,保證空間的影音效果;裝飾方面通過西側墻面的方格造型設計突出中式主題,而星空效果的天花板以及北側整面墻的通頂酒柜則彰顯出了不凡的生活品味。
△二層兒童房 由于業主家里孩子年紀比較小,業主提出不用符合整體中式風格的要求,因此設計師通過乳膠漆和墻紙奠定了兒童房的整體風格基調,主要裝飾通過地毯、床頭燈和吊燈等體現童趣,用于學習的寫字臺區域則風格沉穩,更能使人集中注意力。
△二層主人房 二層主人房功能豐富,衣帽間私衛一應俱全,且通過雙臺盆面盆、浴缸外移,實現了經典的衛生間“四式分離”。 主臥的天花板在設計時并沒有做平吊頂設計,而是保留了原汁原味的雙坡屋頂效果,使得室內在中式基礎上融入了更多新的風格元素。
△二層書房&次臥套間 在二層的大套間內還包括了一間書房和次臥。設計師在連通方式上也做了隱藏式設計,書房內將門隱藏在臺桌后方的展示架中,次臥則將門隱藏在了衣柜之間。 圖紙之家-專注農村別墅/自建房設計18年,集合國內200余位經驗豐富的設計師,被評為口碑最好的農村建筑設計公司! |

3層20萬農村自建房設計圖,占地110平米
占地:110平方米
8.5×12米四層歐式房屋設計圖紙,占地100平,落地窗中嵌入了雕花
占地:100平方米
新款三層豪華大氣歐式別墅設計圖,3種戶型設計方案
占地:125平方米左右
230平方農村雙拼別墅設計圖,26x11米自建房屋戶型
占地:230平方米
四層雙拼豪華別墅設計圖及外觀效果圖,貴族氣質爆棚
占地:188.5平方米
155平方米新三層全套別墅設計資料,15x10米
占地:158平方米
預算30萬三層樓房設計圖含效果圖,戶型經典
占地:125平方米
農村四間三層豪華別墅設計方案圖,造型輕奢雅致
占地:200平方米
人字坡紅磚一層別墅設計圖,簡約低調超實用,這樣的房子人人能
占地:136.51平方米
120平方米農村一層平房別墅設計圖紙,含外觀效果圖
占地:125平方米
農村兩層帶地下室別墅設計圖,還帶庭院規劃,適合農村建
占地:144.5平方米
新中式一層別墅設計圖紙,農村自建平房戶型方案圖
占地:183.7平方
農村自建房就選它!一層新中式設計,日常居住需求全搞定
占地:128.45平方米
一層農村房子設計圖,含外觀效果圖,自建推薦戶型
占地:200平方米
新農村中式三層四合院別墅設計戶型圖,農村自建四合院效果圖
占地:多種戶型
占地160平米的二層簡歐別墅設計圖,外觀圖時尚漂亮
占地:160.28平方米
客廳中空復式二層別墅設計圖,歐式風格外觀
占地:180平方米
130平新農村三層房屋設計圖紙,預算30萬以內,蓋房推薦
占地:132平方米
帶開放式車庫二層農村自建別墅設計方案,造價僅15萬
占地:89.412平方米
農村二層帶車庫樓房設計圖,帶外觀效果圖片
占地:125平方米
推薦:10套新農村自建房設計圖,2026年最新設計
閱讀次數:4825737次
100套鄉村別墅圖片大全,2026年最新設計
閱讀次數:2492203次
6款農村蓋一層平房的設計圖,10萬元就能建起來
閱讀次數:1852637次
這11個一層農村自建房別墅火爆了朋友圈!我最喜歡戶型十!你呢
閱讀次數:750268次
農村6萬元建一層小別墅圖,你敢相信嗎
閱讀次數:567686次
農村5萬塊就能自建房,6套普通房子設計圖分享,你沒看錯!
閱讀次數:419410次
8套農村漂亮三間平房圖片,非常適合在農村修建!
閱讀次數:411197次
農村自建房化糞池怎么做?附方案及施工過程
閱讀次數:391783次
農村一層三間平房設計圖,告別土氣養老房,讓人忍不住點贊
閱讀次數:350581次
新農村二層樓房圖片造價12萬,挑一套回家建房吧!
閱讀次數:349126次
