
|
現在的農村生活水平是越來越高了,從最起碼的居住條件來說是這樣的,年輕人都外出打工,掙錢會到農村想到的第一件事就是蓋別墅,農村朋友說,辛辛苦苦這么多年,就想過的好一些,小時候家里沒條件,現在有條件了,也希望以后能享享福,也可以改善改善孩子們的居住條件。房子建了也能住上好久,建一棟好看的又舒適又有面子。下面介紹一款好看又大氣的別墅,這是農村朋友們都比較中意的一款。 效果圖
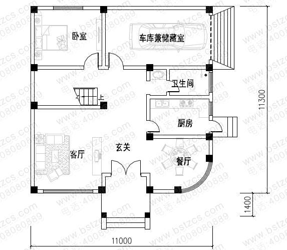
層數: 三層 結構形式: 框架結構 主體造價: 25-32萬 開間: 11米 進深: 11.3米 占地面積: 120.85平方米 建筑面積: 307.63平方米 這款簡歐的自建房設計圖在外觀上沒傳統的那樣四四方方,相對來說比較有特色,也是很多朋友中意的一款之一。 首層平面圖
客戶案例
圖紙之家-專注農村別墅/自建房設計18年,集合國內200余位經驗豐富的設計師,被評為口碑最好的農村建筑設計公司! |

帶庭院的農村一層別墅圖紙設計,外觀時尚好看
占地:多戶型可選
新農村全套四層別墅設計圖紙占地面積:190平方米造價預算:42萬
占地:190平方米
爆火農村養老房設計:16 米面寬一層戶型,自住養老全拿捏
占地:169.87平方米
簡單的復式住宅設計圖,客廳挑高,帶外觀效果圖片
占地:148平方米
最新農村20萬元二層半別墅設計圖,占地僅110多平
占地:110平方米
155平方米二層別墅房屋設計圖,帶獨立車庫
占地:155平方米
120平方米農村經典二層房屋設計圖紙,造型精致好看
占地:121平方米
農村帶閣樓一層房屋設計施工圖,13X9米
占地:102平方米
造價33萬左右超漂亮的三層別墅圖紙設計圖,旋轉樓梯戶型設計
占地:121.59平方米
一層半房屋別墅設計圖,帶閣樓圖、帶露臺,外觀新穎時尚
占地:130平方米
帶配房的二層鄉村歐式別墅設計圖,尺寸15.84×13.84米
占地:149.19平方米
一層鄉村自建別墅設計方案推薦,含外觀圖片
占地:148平方米
農村高端中式三層雙拼全套房屋施工設計圖,效果圖很大氣
占地:340平方米
150平方米的新農村自建三層小別墅設計施工圖紙及效果圖
占地:150平方米
小型雙拼一層平房設計圖,外觀古樸
占地:100平方米
80-90平米自建樓房設計圖,農村小別墅經典戶型圖
占地:86平方米
最漂亮的一層平房圖片及設計圖,造價18萬左右,結構簡單易于施
占地:186平方米
20萬左右農村雙拼別墅住宅設計圖,簡單小戶型設計
占地:120平方米
二層現代風格雙拼別墅設計圖,平屋頂,帶地下室設計
占地:192.47平方米
150平左右新農村自建房設計圖,含外觀效果圖
占地:150平方米
推薦:10套新農村自建房設計圖,2026年最新設計
閱讀次數:4825737次
100套鄉村別墅圖片大全,2026年最新設計
閱讀次數:2492203次
6款農村蓋一層平房的設計圖,10萬元就能建起來
閱讀次數:1852637次
這11個一層農村自建房別墅火爆了朋友圈!我最喜歡戶型十!你呢
閱讀次數:750268次
農村6萬元建一層小別墅圖,你敢相信嗎
閱讀次數:567686次
農村5萬塊就能自建房,6套普通房子設計圖分享,你沒看錯!
閱讀次數:419410次
8套農村漂亮三間平房圖片,非常適合在農村修建!
閱讀次數:411197次
農村自建房化糞池怎么做?附方案及施工過程
閱讀次數:391783次
農村一層三間平房設計圖,告別土氣養老房,讓人忍不住點贊
閱讀次數:350581次
新農村二層樓房圖片造價12萬,挑一套回家建房吧!
閱讀次數:349126次
