
|
項目名稱 浙江溫州蔣家歐式別墅 圖紙編號 1185 建筑面積 604.9㎡ 占地面積 150.9㎡ 建筑尺寸 12.6m×13.8m 建筑結構 框架結構 參考造價 103.9萬元(不含室內裝修費用) 項目概況
△總平面示意圖 基地情況: 東:村內綠地 南:空曠空地 西:田地 北:村內道路 項目簡介: 業主在項目前期溝通過程中,提出了增加一層架空層,并且表示喜歡歐式造型。設計師通過現場情況,及業主需求和喜好,將項目形式確定為南北朝向的歐式風格的底層架空的三層別墅。 平面布局 戶型概況: 3層 + 架空層 / 6室 1廳 7衛 1廚 1茶室 1棋牌室 2書房 1娛樂室 1陽臺 2露臺
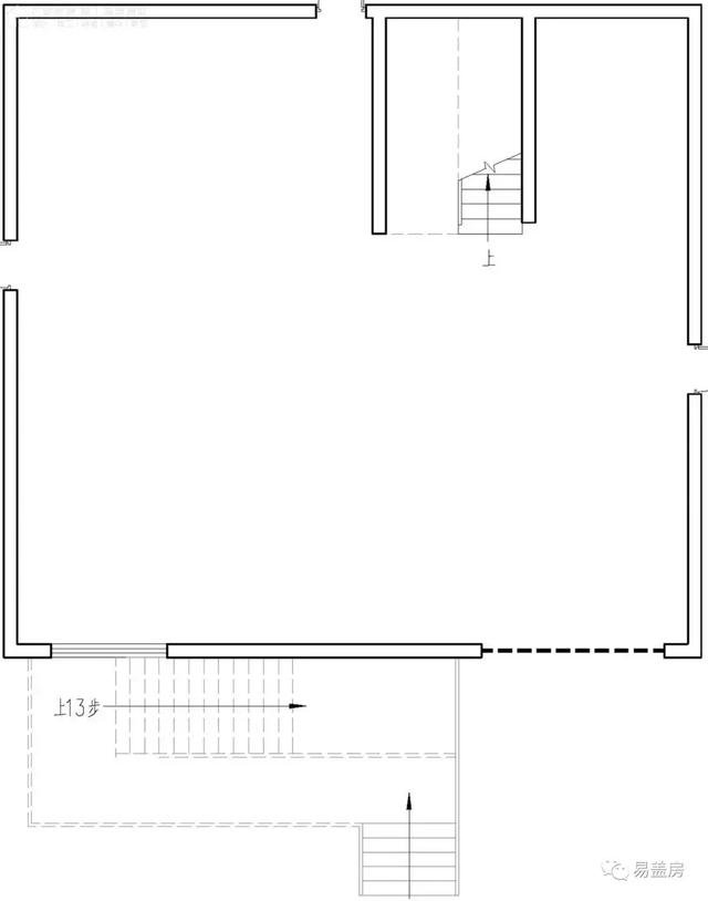
△架空層平面圖 底層為架空層,以儲物功能為主,部分南側設置停車空間。
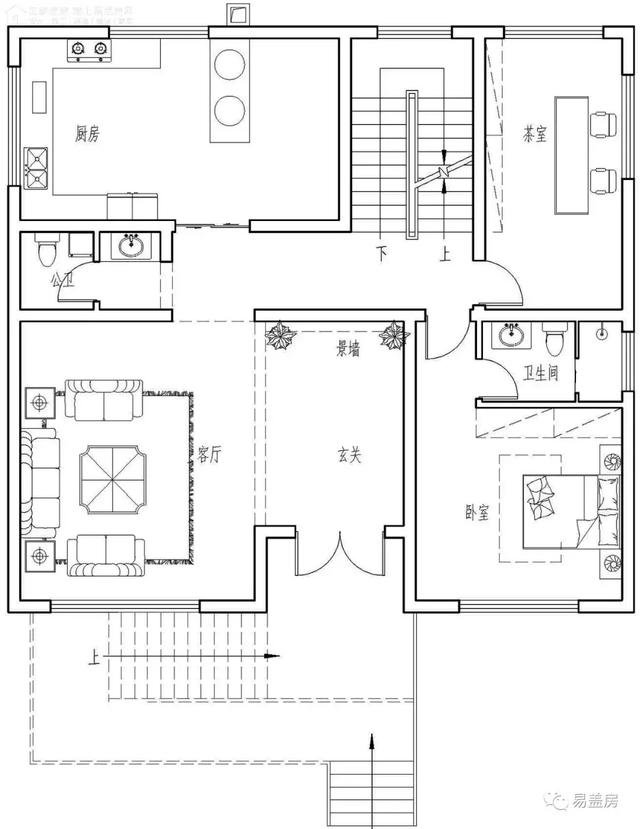
△一層平面圖 一層主要為公共空間和老人居住的房間。南側的玄關處設置景墻,豐富了入口空間。布局上充分利用南側向陽面,右側設置老人房,左側設置客廳。東北側按業主需求增設了茶室,廚房位于西北側。
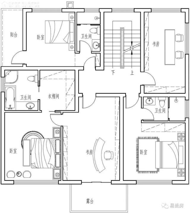
△二層平面圖 二層以居住辦公為主,是主要的起居空間,共設置三間具有獨立衛生間的臥室,其中主臥搭配衣帽間和書房,并另有一間公共書房位于東北側。
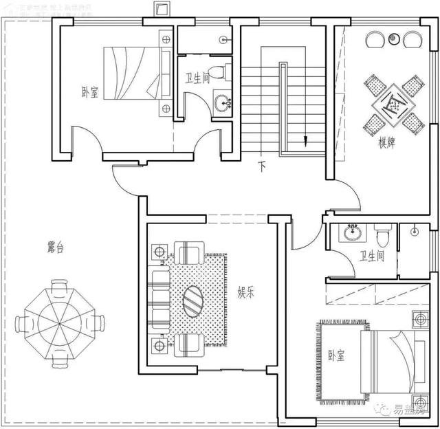
△三層平面圖 三層主體以居住和活動區域為主,共有兩間擁有獨立衛生間的臥室、一間棋牌室,和一間娛樂室。同時,西側向外延伸出露臺的空間,使得業主生活空間的功能完整性得以保障。 造型設計
△南側效果圖
△東南側效果圖 建筑整體為簡約歐式風格,設計師選擇南立面作為主要的造型面,采用柱體來劃分立面空間,同時產生的凹凸變化,豐富了立面效果。
△東南側效果圖 建筑立面多運用形體設計,增強建筑的層次。材質方面,設計師采用石面磚、真石漆搭配灰色平板瓦,使建筑的浪漫氣息通過淡雅的顏色表達出來。
△西南側效果圖
△鳥瞰圖 設計師通過選用傳統的歐式構建,和大體積的開窗設計,構成了豐富的立面效果,增強了建筑造型裝飾的層次感。
△西北側效果圖 各種細節的處理,例如屋檐的線腳、立柱的形式與造型、欄桿的花紋樣式等都彰顯了簡約的歐式風格。這些設計使得建筑整體的線條更流暢,同時也使得風格更加貼近于整體的環境。
△東立面圖
△西立面圖
△南立面圖
△北立面圖 圖紙之家-專注農村別墅/自建房設計18年,集合國內200余位經驗豐富的設計師,被評為口碑最好的農村建筑設計公司! |

120平方三層房子設計圖,漂亮實用農村自建小別墅設計圖
占地:120平方米
四開間兩層別墅設計圖,農村自建住著舒適的好方案!
占地:187.04平方米
210平左右三層(兩層半)雙拼新農村別墅設計圖紙及外觀效果圖
占地:206.712平方米
170平米自建三層房屋別墅設計圖紙及效果圖
占地:170平米
新農村三層小別墅設計圖紙,占地160平左右,好看不貴
占地:160平方米
一層半房屋別墅設計圖,帶閣樓圖、帶露臺,外觀新穎時尚
占地:130平方米
農村25萬別墅款式二層自建房設計圖,外觀圖時尚
占地:115平方米
最美建筑四合院別墅設計方案,大氣經典,開間19米
占地:168.61平方米
兄弟四間三層雙拼別墅設計圖,造價40萬左右
占地:210平方米
30萬左右的新農村自建三層別墅施工設計圖紙及效果圖
占地:148平方米
帶框架層的四層別墅設計圖,框架層功能布局很多,很實用
占地:169.09平方米
歐式二層農村別墅設計圖,140平方米戶型方正的好方案
占地:142.51平方米
新農村兩層帶露臺自建房設計圖,造價30萬內
占地:170平方米
占地120平米清新脫俗簡單二層別墅設計方案,含效果圖
占地:119.01平方米
兩層半雙拼別墅設計方案,超大露臺+歐式風格,好設計別錯過!
占地:175.8平方米
180平米農村二層小別墅設計圖,外觀漂亮,帶露臺
占地:180平方米
雅致的鄉下二層蓋別墅設計圖紙,造價35萬左右
占地:178平方米
簡簡單單一層農村自建別墅方案,布局緊湊又不擁擠
占地:133.55平方米
180平方米漂亮大氣三層雙拼別墅設計圖,自建房圖片
占地:186平方米
農村二層小別墅自建房屋設計圖,客廳中空,占地150平米
占地:150平方米
推薦:10套新農村自建房設計圖,2026年最新設計
閱讀次數:4825737次
100套鄉村別墅圖片大全,2026年最新設計
閱讀次數:2492203次
6款農村蓋一層平房的設計圖,10萬元就能建起來
閱讀次數:1852637次
這11個一層農村自建房別墅火爆了朋友圈!我最喜歡戶型十!你呢
閱讀次數:750268次
農村6萬元建一層小別墅圖,你敢相信嗎
閱讀次數:567686次
農村5萬塊就能自建房,6套普通房子設計圖分享,你沒看錯!
閱讀次數:419410次
8套農村漂亮三間平房圖片,非常適合在農村修建!
閱讀次數:411197次
農村自建房化糞池怎么做?附方案及施工過程
閱讀次數:391783次
農村一層三間平房設計圖,告別土氣養老房,讓人忍不住點贊
閱讀次數:350581次
新農村二層樓房圖片造價12萬,挑一套回家建房吧!
閱讀次數:349126次
