
|
有些人家里面的宅基地與門口的地勢存在一定的高度差,這種情況很多人都選擇一層做架空層,用來儲物、做停車庫等都比較方便,上面的空間用來自住,這樣的一棟別墅造型看起來也比較大氣,也有很多人不是因為地勢的問題,就單純的喜歡這種形式的住宅,這兩棟帶架空層的別墅,每一棟都讓人大飽眼福。 戶型一:13×15.1米,外墻面用黃色真石漆和構件裝飾,配大窗一扇,占地面積170平方米,框架結構,主體造價65萬左右。
平面圖:架空層主要做車庫用,地面上一層設堂屋、一間帶獨衛的主臥室和一間次臥室,客廳挑空設計配帶弧形的直角樓梯,二層一間主臥和兩間次臥室,配室內客廳和娛樂室,室外設觀景陽臺,三層三間臥室設計備用,室外配一觀景露臺。
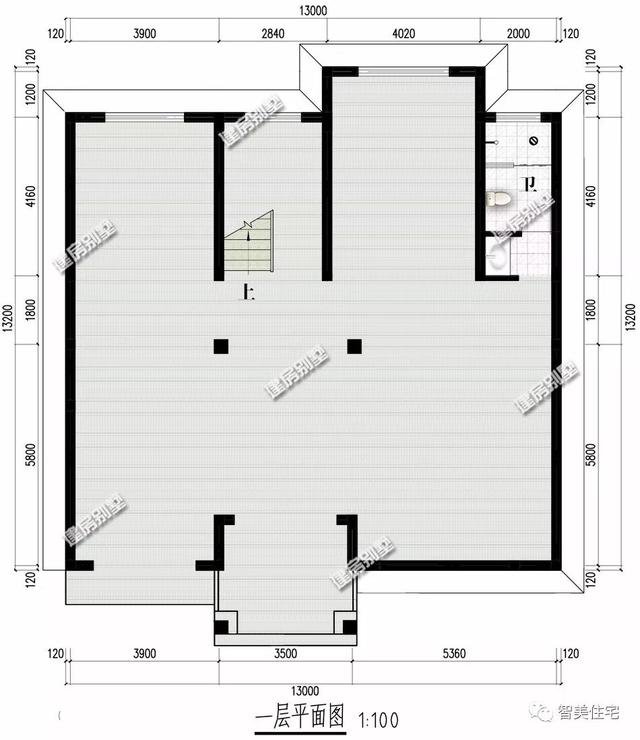
戶型二:13×13.2米,架空層外墻面用文化石裝飾,一二層外墻面用面磚裝飾,三層外墻面用黃色真石漆裝飾,占地面積157.2平方米,磚混結構,主體造價55萬左右。
平面圖:架空層做車庫,一層的客廳挑空,配堂屋、一間帶獨衛的主臥室和一個休閑娛樂室,使用雙跑直角樓梯,室內通透性好,二層設三間臥室,其中一間帶飄窗和獨衛,另一個帶陽臺和獨衛,三層三間臥室設計備用,室外配一觀景露臺。
有一棟這么氣派的別墅在老家,我想一到放假的時候我就會想回老家看看。 圖紙之家-專注農村別墅/自建房設計18年,集合國內200余位經驗豐富的設計師,被評為口碑最好的農村建筑設計公司! |

四層巴洛克別墅設計圖,旋轉樓梯搭配超大挑空客廳,很有氣勢
占地:146平方米
170平方米新農村實用的三層雙拼設計圖紙,帶公用堂屋!
占地:173.62平方米
高端三層獨棟歐式別墅效果圖,帶大衛生間,CAD全套施工設計圖
占地:158平方米
美觀大氣二層歐式別墅設計圖,外觀效果圖高端上檔次
占地:189.8平方米
150平方米農村二層磚混結構別墅施工建筑設計圖,平頂設計
占地:150平方米
平屋頂四間一層農村自建房設計圖紙,經濟時尚
占地:144平方米
農村四間二層半雙拼樓設計圖,住三帶人都沒有問題!
占地:270平方米
經典三層歐式造型別墅圖紙,功能房豐富,挑空客廳
占地:180平方米
兄弟四間三層雙拼別墅設計圖,造價40萬左右
占地:210平方米
農村三間兩層樓房設計圖,背面不開窗,氣勢上就勝人一籌
占地:153.7平方米
30萬造價三層別墅建筑設計圖紙,戶型利用率高
占地:130平方米
方方正正的二層農村別墅設計圖,普通農村人都能建
占地:201.05平方米
170平方米歐式農村兩層小別墅設計圖紙帶外觀圖,精致好看
占地:多種戶型
農村中式一層三合院自建房設計圖,古典大氣白墻黛瓦
占地:177.62平方米
新中式農村三層樓房設計圖紙,全套圖紙設計,線條錯落有致
占地:130平方米
2026最美三層別墅設計圖紙及效果圖,十佳最美農村別墅
占地:151平方米
新農村小洋樓三層別墅戶型設計圖,開間9米,造價25萬
占地:94平方米
新農村三層房屋住宅設計圖紙大全(含效果圖)
占地:122平方米
100平內簡單精致的小戶型自建房二層設計圖,旋轉樓梯
占地:97.08平方米
農村簡單雙拼小戶型,簡單適用,客廳中空,總占地210平方米
占地:210平方米
推薦:10套新農村自建房設計圖,2026年最新設計
閱讀次數:4825737次
100套鄉村別墅圖片大全,2026年最新設計
閱讀次數:2492203次
6款農村蓋一層平房的設計圖,10萬元就能建起來
閱讀次數:1852637次
這11個一層農村自建房別墅火爆了朋友圈!我最喜歡戶型十!你呢
閱讀次數:750268次
農村6萬元建一層小別墅圖,你敢相信嗎
閱讀次數:567686次
農村5萬塊就能自建房,6套普通房子設計圖分享,你沒看錯!
閱讀次數:419410次
8套農村漂亮三間平房圖片,非常適合在農村修建!
閱讀次數:411197次
農村自建房化糞池怎么做?附方案及施工過程
閱讀次數:391783次
農村一層三間平房設計圖,告別土氣養老房,讓人忍不住點贊
閱讀次數:350581次
新農村二層樓房圖片造價12萬,挑一套回家建房吧!
閱讀次數:349126次
