
|
新農村規劃,不少人的房屋都布局在路邊,成了可以外租的商鋪,想要蓋別墅,可是設計不合理,外租不出去。今天小編就給你推薦3款租戶看了就想租的三層別墅設計圖紙以及平面戶型圖。 第一款:簡約現代三層自建房子圖面寬:11.56m 進深:12.52m 總面積:127.912平方米左右 造價:34萬左右
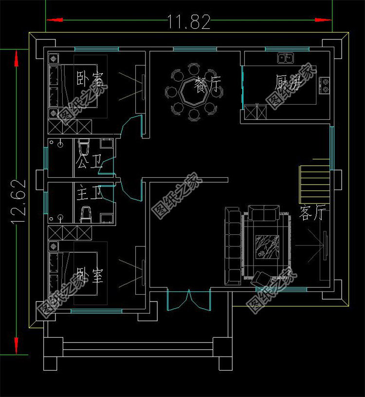
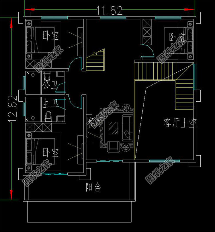
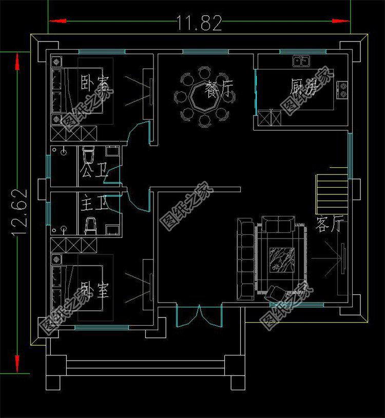
第二款:平屋頂三層小樓設計圖面寬:11.82m 進深:12.62m 總面積:125.142平方米左右 造價:26萬左右
第三款:新中式155平三層別墅設計圖面寬13.8m 進深:11.18m 總面積:155平方米 造價:40萬左右
以上就是小編分享的最新的農村自建三層樓別墅設計圖和平面戶型圖了,有需要的可以收藏哦!悄悄告訴你去搜索圖紙之家網站,還可以找到具體圖紙,別人我不告訴的。
圖紙之家-專注農村別墅/自建房設計18年,集合國內200余位經驗豐富的設計師,被評為口碑最好的農村建筑設計公司! |

精致時尚一層雙拼別墅設計圖,造價實惠,起居互不打擾
占地:369.54平方米
簡單實用新農村三層住宅房屋設計圖,時尚大氣,低調
占地:140平方米
三層現代別墅設計圖紙,全套私人別墅圖紙(含外觀效果圖)
占地:170.38平方米
農村三層復式樓房住宅設計圖,私人別墅設計
占地:165平方米
新徽派農村三層小別墅設計圖,白墻黛瓦中式風,12米乘11米
占地:115.46平方米
田園風格別墅設計圖紙及效果圖,三層鄉村小別墅設計方案
占地:166.4平方米
網紅中式一層三合院別墅設計圖,白墻黛瓦古典大氣,讓人心曠神
占地:248.82平方米
農村三層樓房圖造價26萬,客廳中空,占地90平米
占地:90平方米
好看又簡單二層仿古中式四合院樓房設計圖
占地:352平方米
面寬8米的新農村三層自建房設計圖平屋頂,全套cad圖紙+效果圖
占地:115平方米
二層門面房自建小樓設計圖紙及效果圖,占地150平
占地:151.83平方米
獨棟小別墅設計圖,造價30萬左右的獨棟小別墅設計推薦
占地:150平方米
最新潮的90平方米三層房屋設計圖 ,古樸典雅又不失時尚
占地:90平方米
農村兩層新中式別墅圖紙設計圖,外觀圖片大氣,21萬左右
占地:108平方米
大開間小進深的一層別墅設計圖,進深僅8.7米,獨立餐廚照樣美觀
占地:130.32平方米
兄弟雙拼三層小戶型別墅設計圖紙,160平方米(單戶80平)
占地:163平方米
帶架空層的兩層別墅設計圖,通透又明亮,建在農村絕對有面子
占地:106.79平方米
帶車庫鄉下雙拼別墅設計圖,三層造型漂亮大全
占地:256平方米
農村三層復式自建樓房設計圖,外觀圖大氣
占地:130平方米
簡簡單單一層農村自建別墅方案,布局緊湊又不擁擠
占地:133.55平方米
推薦:10套新農村自建房設計圖,2026年最新設計
閱讀次數:4825737次
100套鄉村別墅圖片大全,2026年最新設計
閱讀次數:2492203次
6款農村蓋一層平房的設計圖,10萬元就能建起來
閱讀次數:1852637次
這11個一層農村自建房別墅火爆了朋友圈!我最喜歡戶型十!你呢
閱讀次數:750268次
農村6萬元建一層小別墅圖,你敢相信嗎
閱讀次數:567686次
農村5萬塊就能自建房,6套普通房子設計圖分享,你沒看錯!
閱讀次數:419410次
8套農村漂亮三間平房圖片,非常適合在農村修建!
閱讀次數:411197次
農村自建房化糞池怎么做?附方案及施工過程
閱讀次數:391783次
農村一層三間平房設計圖,告別土氣養老房,讓人忍不住點贊
閱讀次數:350581次
新農村二層樓房圖片造價12萬,挑一套回家建房吧!
閱讀次數:349126次
