
|
很多農村朋友城市發展好了,也想在農村建一棟別墅,但是家里的宅基地又小,非常發愁,不知道建什么樣的。別擔心,小編今天就給大家帶來了5套九十平米農村建房屋圖,有一層的、二層的、三層的、四層的,不要看他雖然占地面積90平,但是一眼看過去也是一道靚麗的風景線。
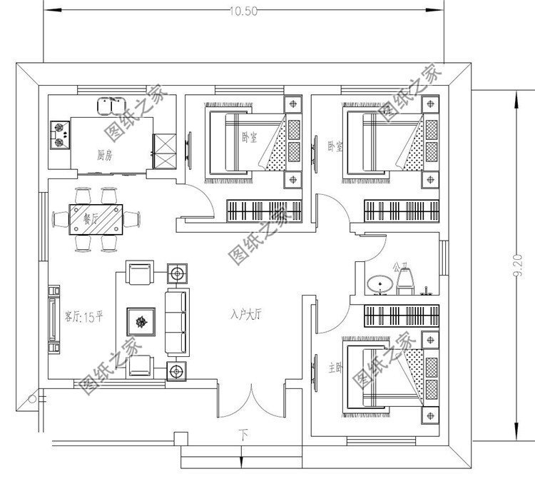
第一套:一層三間平房小戶型農村別墅設計圖占地面積:10.5m*9.2m,91.036平方米左右; 建筑層高:一層; 建筑高度:5.903米(含屋頂); 設計功能: 一層戶型:入戶大廳、客廳、臥室x3、廚房、餐廳; 這一套建筑裝飾簡潔,藍色屋頂,白色外墻漆,美觀又大方。占地90平,入戶設大客廳,門廳附帶門外廊,客廳后設餐廳,餐廳西側設大廚房,內設3間臥室,滿足普通的三口之家沒有任何問題。
第二套:農村二層仿古尖屋頂別墅設計圖占地面積:8.3m*10.6m,87平方米左右; 建筑層高:二層; 建筑高度:8.9米(含屋頂); 設計功能: 一層戶型:客廳、廚房、臥室(帶衛生間)、臥室; 二層戶型:臥室x4、衛生間、露臺; 這一套別墅設計圖有點徽派鄉村建筑的意思,但又與其不同,別墅外觀素雅大氣,沒有復雜的線腳裝飾,通過外墻色彩和門窗的巧妙搭配,使得建筑施工方便、造價經濟的同時造型美觀,布局方正舒適,空間利用率很高。
第三套:農村三層簡單樓房圖占地面積:7.8m*12.0m,一層占地90平方米左右; 建筑層高:三層; 建筑高度:12.5米(含屋頂); 設計功能: 一 層:玄關、客廳、廚房、餐廳、臥室、衛生間; 二 層:客廳上空、臥室x2、書房、衛生間、陽臺; 三 層:臥室x2、臥室(帶衣帽間)、衛生間、陽臺; 這一套別墅占地90平米,難得的好戶型。房子大或者小都是一個家的幸福,小戶型也不應該和平庸、土氣劃等號,更需要費心設計好。別小看了自己家里八九十平的宅基地,設計好了,你看看下面外觀和布局,依舊蓋出百萬豪宅的氣勢!
第四套:90平米小戶型四層房屋設計圖占地面積:10.0m*9.0m,90平方米左右; 建筑層高:四層; 建筑高度:15.62米(含屋頂); 設計功能: 一層戶型展示:大廳、客廳、廚房、餐廳、衛生間、小臥室x2(可以合并為一個大臥室); 二層戶型展示:客廳、主臥(帶衛生間)、臥室、衛生間、陽臺x2; 三層戶型展示:客廳、臥室x2、衛生間、陽臺x3; 四層戶型展示:臥室、衛生間、大露臺、陽臺; 這一套為90平小戶型四層房屋設計圖,雖然建筑面積小,但布局簡單、合理,顯得不會太緊湊,外觀簡單、大方,總體造價較低。
第五套:農村兩間兩層樓房設計圖占地面積:12.2m*10.1m,96平方米左右; 建筑層高:二層; 建筑高度:9.9米(含屋頂); 設計功能: 一層戶型:客廳、餐廳、廚房、衛生間、臥室×2; 二層戶型:客廳、臥室x3、衛生間、陽臺x2; 這一套為農村兩間兩層樓房設計圖,造價15萬左右,獨立的廚房設計,干凈衛生,二層屋頂設計為一個大的露臺,那這款小別墅為什么能夠引起這3代人的共鳴,我覺最重要的一點就是實惠實用,而且外觀也非常的時尚。
以上就是5套九十平米農村房屋圖,有想要更多圖紙的可以搜索圖紙之家進行查看。
圖紙之家-專注農村別墅/自建房設計18年,集合國內200余位經驗豐富的設計師,被評為口碑最好的農村建筑設計公司! |

農村二層小樓的設計圖紙,整體外觀凹凸有致,紅色的坡面屋頂
占地:180平方米
農村二層樓房設計圖帶外觀圖片,造價20多萬,13.3x11
占地:146平方米
120平方米新農村二層自建房屋設計圖紙大全14x9米
占地:120平方米
歐式風格高檔三層別墅設計圖紙,帶高清外觀效果圖
占地:105平方米
共用中堂雙拼兄弟三層別墅設計圖,簡歐式風格
占地:230平方米
鄉村房屋改建三層房屋設計圖紙,農村樓房設計圖推薦
占地:90平方米
面寬12米三層自建房別墅設計圖,廚房在前面,農村施工隊都能建
占地:138.18平方米
戶型獨特的、二層臥室挑高的別墅房屋設計圖,外觀簡歐風格
占地:250平方米
美式風格鄉村兩層小別墅自建房設計圖,外觀圖好看
占地:150平方米
130平四間二層小洋樓設計圖,含外觀圖片
占地:130平方米
14x12.5米二層農村別墅設計圖,布局完美獨立,顏值高又實用
占地:153.95平方米
四層自建別墅設計圖,有車庫帶露臺,時尚大氣給你一個五星級的
占地:152.51平方米
漂亮實用三層新農村小別墅設計圖紙,占地150平米,帶露臺,從哪
占地:150平方米
新農村三層自建房屋設計圖,含外觀圖片
占地:136平方米
2026新款三層小別墅設計圖,占地150平米,帶地下室
占地:150平方米
一層中式三合院別墅設計圖,白墻黛瓦引領潮流
占地:177.94平方米
140平二層帶閣樓別墅設計方案圖,外觀圖片色彩明快
占地:140平方米
戳中年輕人喜好!時尚三層自建房,簡約時尚設計,住著舒適自然
占地:169.76平方米
農村三層雙拼別墅戶型圖及全套施工圖紙,帶書房,帶衣帽間
占地:260平方米
新農村自建三層復式結構房屋別墅設計圖紙及效果圖
占地:138平方米
推薦:10套新農村自建房設計圖,2026年最新設計
閱讀次數:4825737次
100套鄉村別墅圖片大全,2026年最新設計
閱讀次數:2492203次
6款農村蓋一層平房的設計圖,10萬元就能建起來
閱讀次數:1852637次
這11個一層農村自建房別墅火爆了朋友圈!我最喜歡戶型十!你呢
閱讀次數:750268次
農村6萬元建一層小別墅圖,你敢相信嗎
閱讀次數:567686次
農村5萬塊就能自建房,6套普通房子設計圖分享,你沒看錯!
閱讀次數:419410次
8套農村漂亮三間平房圖片,非常適合在農村修建!
閱讀次數:411197次
農村自建房化糞池怎么做?附方案及施工過程
閱讀次數:391783次
農村一層三間平房設計圖,告別土氣養老房,讓人忍不住點贊
閱讀次數:350581次
新農村二層樓房圖片造價12萬,挑一套回家建房吧!
閱讀次數:349126次
