
|
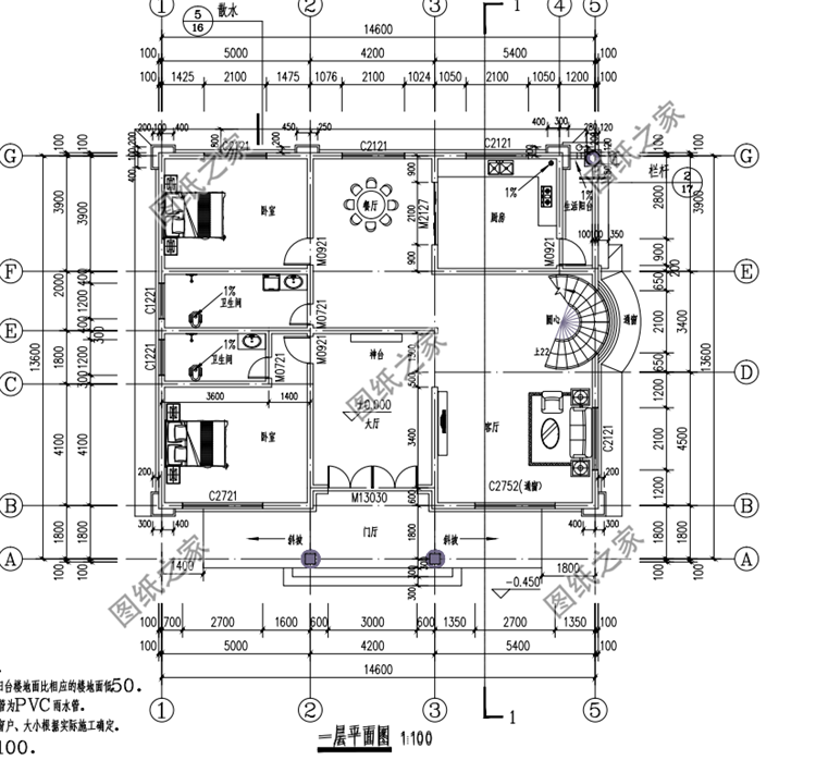
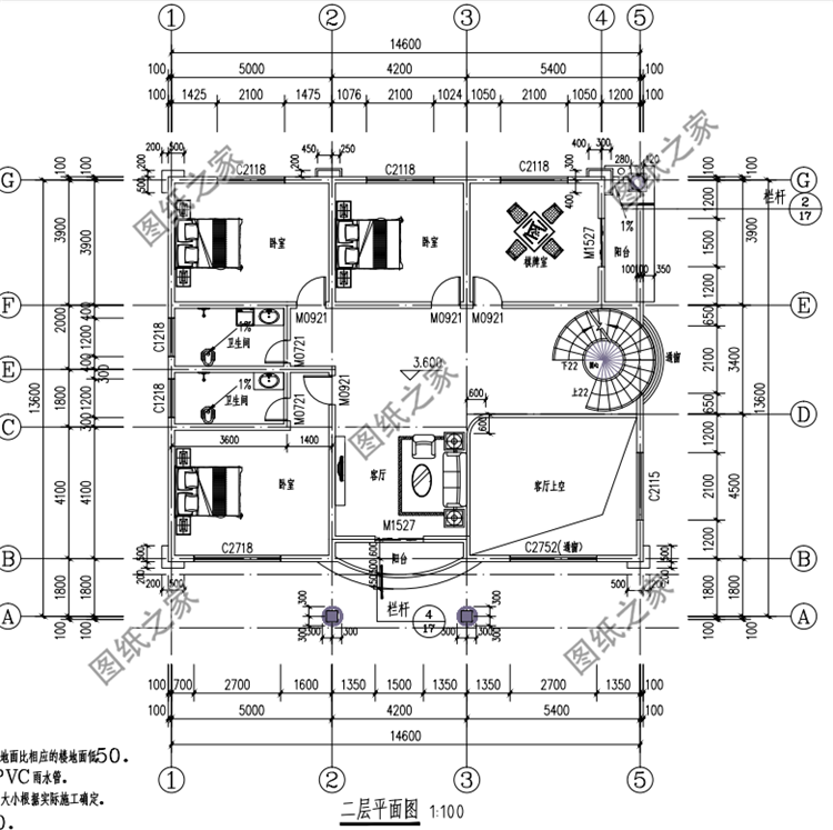
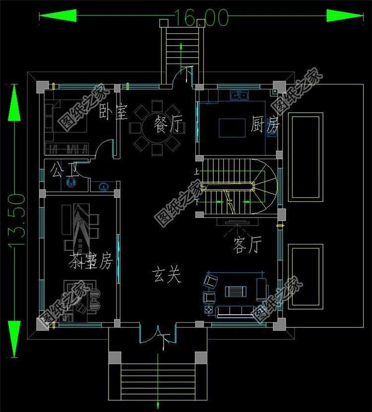
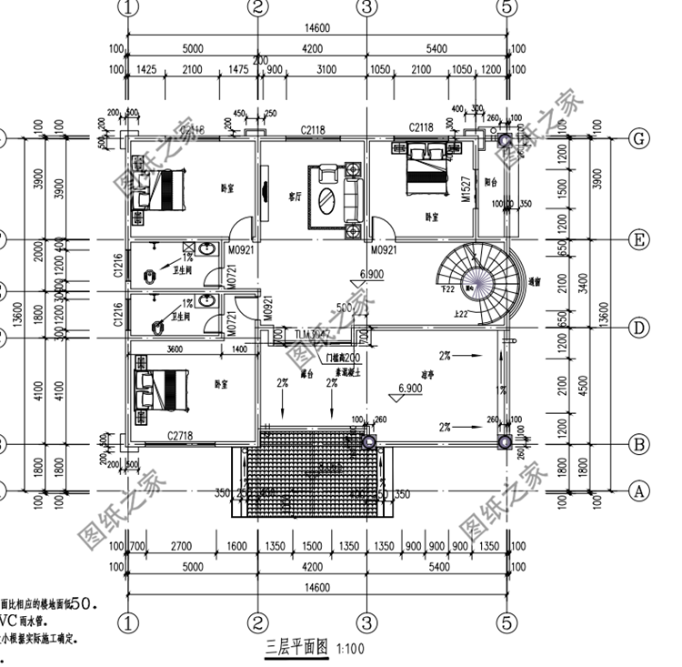
房子對于一個家庭來說可能是一輩子的事,所以大多數朋友都會比較注重房子的室內布局和外觀設計,而且一份好的設計圖是一棟別墅最關鍵的一步。今天就給大家找來了三款農村三層自家房效果圖,占地面積不大,但是戶型很實用。如果有想建房的朋友可以參考這三款戶型,建議收藏。 款式一:農村三層別墅設計圖,占地192平米,帶地下室設計圖紙介紹:本戶型占地192平米,復式挑空客廳,帶超豪華地下室設計,外觀高端大氣。地下室設有多功能活動室,最大程度降低娛樂活動對居家生活的影響。一層氣派的中空客廳非常符合別墅的整體氣質。旋轉樓梯也是非常的氣派。二層設置了3間臥室,設置緊湊,方正合理,開窗采光良好。三層布局與二層一樣,多了一個大露臺,很好的滿足日常晾曬的需求。 占地面積:16m*13.5m,192平方米左右; 建筑層高:三層; 建筑高度:13.444米(含屋頂); 設計功能: 地下室戶型:健身房、品酒室、棋牌室、儲物間、臺球室、KTV、衛生間; 一層戶型:玄關、客廳、茶室+書房、廚房、餐廳、臥室、衛生間; 二層戶型:客廳上空、起居室、臥室(帶衣帽間、衛生間)、臥室(帶衛生間)、臥室、衛生間、陽臺x2; 三層戶型:臥室(帶衣帽間、衛生間)、臥室(帶衛生間)x2、陽臺、露臺; ![]() ![]() ![]() ![]() ![]() 款式二:農村三層別墅設計圖,小戶型設計,占地80平米左右圖紙介紹:本戶型占地80平米左右,精致小戶型設計,整體造價低,經濟實用,配色溫暖喜慶,充滿家的溫馨。外觀時尚簡約,白色真石漆和灰色面磚巧妙搭配的外墻,搭配灰色彎瓦屋頂,配色簡單大方;采用三面開窗,保證采光通風;入戶臺階,地基也與地面有一定距離,有效防潮;沒有過多復雜設計,簡約大方。 占地面積:9.5m*8.95m,79.76平方米左右; 建筑層高:三層; 建筑高度:12.761米(含屋頂); 設計功能: 一層戶型:客廳、餐廳、神位、廚房、茶室、衛生間; 二層戶型:小客廳、臥室x3、衛生間、露臺; 三層戶型:臥室(帶衣帽間)、臥室、衛生間、露臺; ![]() ![]() ![]() ![]() 款式三:農村三層別墅設計圖,占地170平米,外觀實用圖紙介紹:這款三層別墅占地170平米,造價60萬左右,外觀好看大方,室內布局合理,戶型實用。外墻用面磚和真石漆裝飾,配以一些歐式裝飾構件,非常讓人喜歡。 占地面積:14.6m*13.6m,一層占地170平方米左右; 建筑層高:三層; 建筑高度:15.0米(含屋頂); 設計功能: 一 層:客廳、廚房、餐廳、臥室(帶衛生間)、臥室、衛生間; 二 層:客廳上空、客廳、臥室(帶衛生間)、臥室x2、棋牌室、衛生間、陽臺; 三 層:客廳、臥室(帶衛生間)、臥室x2、衛生間、露臺、涼亭; ![]() ![]() ![]() ![]() 不知道這三款戶型大家有沒有喜歡的呢?喜歡的話不要錯過。
圖紙之家-專注農村別墅/自建房設計18年,集合國內200余位經驗豐富的設計師,被評為口碑最好的農村建筑設計公司! |

中式三層新農村房子別墅設計圖,看了那么久,還是中式最有韻味
占地:97.2平方米
大二間三層別墅戶型圖,三層新農村自建房設計圖紙及效果圖
占地:116平方米
現代三層復式小別墅設計圖及外觀圖片,25萬造價
占地:105平方米
經典農村二層小別墅設計圖紙帶露臺(含外觀效果圖)
占地:110平方米
三層新農村自建小型別墅設計圖及效果圖,三間三層樓房戶型
占地:114平方米
造型對稱的簡約二層別墅設計圖紙,戶型布局好,13x13米5室2廳
占地:151.94平方米
西班牙風格農村二層樓房設計圖及效果圖,實用美觀
占地:170平方米
農村一層半房屋設計圖,帶外觀效果圖,外觀時尚
占地:155平方米
農村建房兄弟雙拼兩層住宅設計圖,單戶150平米左右
占地:300平方米
四合院別墅設計效果圖及平面圖,全套施工圖紙
占地:220平方米
農村三層樓房設計圖三層別墅圖片,占地面積135平米
占地:135平方米
四開間二層別墅設計圖,造型精美經典舒適,火爆全村的戶型
占地:150.882平方米
倆兄弟蓋房子的雙拼設計圖,小宅基地設計方案
占地:151.91平方米
帶電梯高端四層別墅房屋設計圖,外觀圖大氣、上檔次
占地:220平方米
廚房餐廳在配房的歐式三層農村別墅設計方案,華麗又宜居
占地:177.58平方米
帶地下室設計三層自建房別墅設計圖,復式挑空客廳
占地:192平方米
農村自建三層別墅設計圖,開間17米進深13米,外觀對稱設計
占地:187.6平方米
農村房子設計圖三層獨棟別墅方案,占地130平方米
占地:130平方米
高端豪華三層別墅住宅設計方案圖,歐式外觀風格
占地:170平方米
農村小別墅一層設計圖紙,外觀漂亮極了,130和160兩個戶型
占地:多種戶型可選
推薦:10套新農村自建房設計圖,2026年最新設計
閱讀次數:4825737次
100套鄉村別墅圖片大全,2026年最新設計
閱讀次數:2492203次
6款農村蓋一層平房的設計圖,10萬元就能建起來
閱讀次數:1852637次
這11個一層農村自建房別墅火爆了朋友圈!我最喜歡戶型十!你呢
閱讀次數:750268次
農村6萬元建一層小別墅圖,你敢相信嗎
閱讀次數:567686次
農村5萬塊就能自建房,6套普通房子設計圖分享,你沒看錯!
閱讀次數:419410次
8套農村漂亮三間平房圖片,非常適合在農村修建!
閱讀次數:411197次
農村自建房化糞池怎么做?附方案及施工過程
閱讀次數:391783次
農村一層三間平房設計圖,告別土氣養老房,讓人忍不住點贊
閱讀次數:350581次
新農村二層樓房圖片造價12萬,挑一套回家建房吧!
閱讀次數:349126次
