
|
現代發展速度越來越快,很多設計都越來越精簡化,連房子也開始追求簡潔的外型。在農村建一棟簡約大氣的一層自建房,供父母養老使用再適合不過,今天小編推薦4款適合農村宅基地120平的一層自建房設計圖,看看有沒有你喜歡的。 第一款:簡歐式一層自建房效果圖,主體造價12萬 占地面積:13.4m*9.3m,120平方米左右; 建筑層高:一層; 建筑高度:6.76米(含屋頂); 設計功能:客廳、茶室、臥室×4、衛生間 這款農村自建一層平房設計圖,占地面積120平米,適合給爸媽的養老房。成本低,房間寬敞舒適。給父母建房子的話貴在實用,安全,溫暖,而不是奢華。
![]() ![]() ![]() ![]() 第二款:農村實用型一層自建房設計圖,主體造價10萬 占地面積:14.8m*8.1m,120平方米左右 設計功能: 一層:玄關、客廳、餐廳、廚房、臥室x2、娛樂室、衛生間 這款一層平房設計圖,暗紅色的墻磚、深藍色的屋頂結合在一起,非常漂亮,戶型合理,滿足絕大部分客戶使用。
![]() ![]() ![]() 第三套:簡歐式一層自建房效果圖,主體造價14萬 占地面積:12.00m*10.00m,120平方米左右 建筑高度:5.50米(含屋頂) 設計功能:客廳、餐廳、廚房、書房、衛生間、臥室x2 這款一層四間別墅設計方案,占地方方正正,既保留農村的質樸,又不失美觀,用最質樸的設計手法傳遞出平靜、低調的生活態度、外觀艷麗,富有現代氣息,戶型設計合理,空間利用極高。
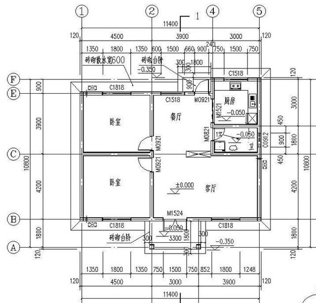
![]() ![]() ![]() 第四款:簡單實用型農村一層 占地面積:11.4m*10.8m,120平方米左右 建筑高度:5.5米(含屋頂) 設計功能: 一層設計:客廳、餐廳、廚房、衛生間、臥室x2 本戶型為120平一層簡單農村別墅設計圖,經濟、實用,建造比較容易,外觀雖然簡單,但比較漂亮,戶型2廳1廚1衛2室,滿足一般家庭居住。 ![]() ![]() 以上就是小編推薦的農村120平一層自建房,有具體施工需要的可以搜索圖紙之家,那里有海量圖紙在等你喲! 圖紙之家-專注農村別墅/自建房設計18年,集合國內200余位經驗豐富的設計師,被評為口碑最好的農村建筑設計公司! |

經典三層農村房屋設計圖紙,占地100平米左右,外觀典雅精致,內
占地:100平方米
現代風格建房圖紙二層別墅設計方案,外觀百看不厭
占地:多戶型可選
三層新農村自建房屋設計圖紙,占地120平米左右
占地:120平方米
農村三層雙拼房屋建筑施工設計圖紙,帶車庫
占地:180平方米
被包工頭夸爆的二層別墅戶型!建好未來幾年必火
占地:189.98平方米
農村一層中式三合院太香了!白墻黛瓦,有院有景超宜居
占地:364.72平方米
新農村三層自建房屋設計圖,含外觀圖片
占地:136平方米
新中式農村50萬三層別墅款式圖,占地面積160平米左右
占地:150平方米
小戶型三層現代風別墅設計圖,可別再說農村不適合現代風了
占地:92.34平方米
實用型二層別墅設計圖,簡單大方最耐看,16.5米乘11米
占地:150.94平方米
二層中式四合院別墅設計圖,經典、漂亮(全套施工圖)
占地:350平方米
170平方米新農村實用的三層雙拼設計圖紙,帶公用堂屋!
占地:173.62平方米
新農村自建三層樓房設計圖紙,外觀簡單大方
占地:137平方米
進深15米新農村三層房屋設計圖紙,農村住宅設計圖集
占地:128平方米
適合農村自建四合院圖片,中式二層四合院別墅設計施工圖紙
占地:232平方米
三層復式別墅設計圖紙(含效果圖),復式住宅設計圖精選
占地:147.7平方米
小青瓦一層中式小院三合院設計施工圖,白墻青瓦古色古香
占地:155.3平方米
小占地的農村別墅設計圖,占地僅72平米,參考造價不到15萬
占地:多戶型可選
農村平屋頂三層現代風別墅戶型圖,簡約實用經濟顏值高
占地:111.9平方米
新農村小洋樓三層別墅戶型設計圖,開間9米,造價25萬
占地:94平方米
推薦:10套新農村自建房設計圖,2026年最新設計
閱讀次數:4825737次
100套鄉村別墅圖片大全,2026年最新設計
閱讀次數:2492203次
6款農村蓋一層平房的設計圖,10萬元就能建起來
閱讀次數:1852637次
這11個一層農村自建房別墅火爆了朋友圈!我最喜歡戶型十!你呢
閱讀次數:750268次
農村6萬元建一層小別墅圖,你敢相信嗎
閱讀次數:567686次
農村5萬塊就能自建房,6套普通房子設計圖分享,你沒看錯!
閱讀次數:419410次
8套農村漂亮三間平房圖片,非常適合在農村修建!
閱讀次數:411197次
農村自建房化糞池怎么做?附方案及施工過程
閱讀次數:391783次
農村一層三間平房設計圖,告別土氣養老房,讓人忍不住點贊
閱讀次數:350581次
新農村二層樓房圖片造價12萬,挑一套回家建房吧!
閱讀次數:349126次
