
|
現在城鄉之間距離已經越來越近,更多的農村人選擇在農村老家建獨棟別墅,而城里人有錢沒地只能干羨慕,各位村里有地準備建房的朋友們,是不是發愁建什么樣的戶型好呢?今天小編就給大家帶來四套農村建房款式,不管你想建一層還是二層,甚至三層四層都有,各種款式,各種戶型應有盡有,趕快繼續往下看一看吧。
方案一:農村建房一層平房戶型圖,占地220平方米
圖紙介紹:這款戶型色調清新靚麗,門前長廊娛樂休閑、日常晾曬都是一個非常好的位置,外觀大氣優雅,羅馬柱的使用更是錦上添花。 占地面積:17.6m*12.6m,220平方米左右; 建筑層高:一層; 建筑高度:6.6米(含屋頂); 設計功能:客廳、餐廳、廚房、、臥室×5、衛生間×2; ![]() ![]() ![]() 方案二:農村二層樓房別墅設計圖,占地140平方米,主體造價20萬左右
圖紙介紹:這款戶型造價20萬左右,戶型造型簡約好看,外墻采用仿石材瓷磚裝飾,兩種不同顏色瓷磚搭配,給人一種自然、復古又清新的感覺,在村里這么蓋上一棟肯定是獨一無二的,而且非常有特色 占地面積:11.0m*12.9m,140平方米左右; 建筑層高:二層; 建筑高度:8.68米(含屋頂); 設計功能: 一層戶型:客廳、廚房、餐廳、臥室、衛生間; 二層戶型:客廳、臥室x2、陽光房、衛生間、陽臺; ![]() ![]() ![]() ![]() 方案三:三層農村自建房別墅圖片,占地面積131平方米
圖紙介紹:這款別墅典型的歐式外觀,外立面采用統一色調真石漆裝飾,簡約時尚,室內布局十分齊全,功能設計實用,設有KTV、棋牌室等娛樂設施,豐富日常生活,符合農村建房需求和生活需要。 占地面積:11.72m*11.42m,131平方米左右; 建筑層高:三層; 建筑高度:12.52米(含屋頂); 設計功能: 一層戶型:入戶大廳、客廳、餐廳、廚房、泡澡間、溫泉室、儲藏間、臥室、衛生間; 二層戶型:起居室、臥室(帶衛生間)x2、臥室x2、書房、衛生間、陽臺; 三層戶型:臥室(帶衛生間)、臥室、KTV、棋牌室、衛生間、露臺; ![]() ![]() ![]() ![]() 方案四:農村大氣四層別墅設計圖,復式客廳+旋轉樓梯
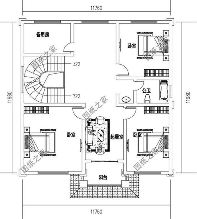
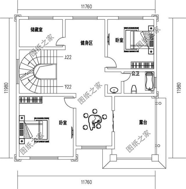
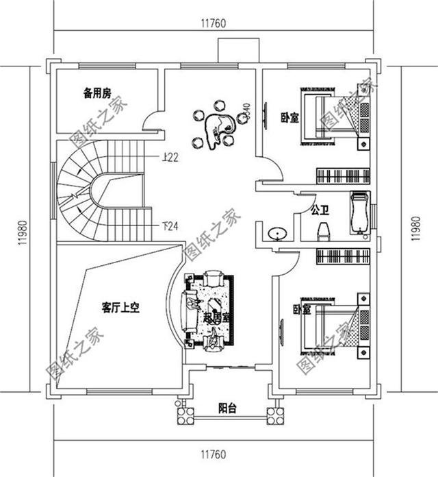
圖紙介紹:本戶型外觀大氣,簡歐風格干凈簡潔,大落地窗的浮雕更是有設計感,左右兩面連通體窗戶和裝飾柱,更是增添了該戶型的大氣感。室內設有中空客廳、健身區以及休閑區等,正是符合新農村建房的標準。 占地面積:11.76m*11.98m,143平方米左右; 建筑層高:四層; 建筑高度:16.59米(含屋頂); 設計功能: 一層戶型:客廳、廚房、餐廳、臥室、儲藏室、衛生間; 二層戶型:客廳上空、起居室、休閑區、備用房、臥室x2、衛生間、陽臺; 三層戶型:起居室、備用房、臥室x3、衛生間、陽臺; 四層戶型:臥室x2、休閑區、儲藏室、健身區、衛生間、露臺; ![]() ![]() ![]() ![]() ![]() 看完這四套,小編已經目瞪口呆了,真的太美,有宅基地真好。大家有喜歡的類型可以在評論留言哦~
圖紙之家-專注農村別墅/自建房設計18年,集合國內200余位經驗豐富的設計師,被評為口碑最好的農村建筑設計公司! |

農村兩層新中式仿古四合院別墅戶型圖,小型占地不到200平
占地:193平方米
170平方米農村二層小別墅設計圖及效果圖
占地:170平方米
農村四間二層小洋樓設計圖,歐式別墅、現代洋氣
占地:200平方米
面寬22米的高端三層自建房別墅設計圖,功能齊全
占地:222.47平方米
高端大氣的農村四層樓房別墅設計圖,戶型真不錯,占地130多平
占地:135.31平方米
新中式農村三層四合院別墅設計圖,四合院風格的別墅圖
占地:177平方米
一層農家雙拼自建房設計圖,左右對稱四平八穩
占地:219.05平方米
占地180平豪華三層農村別墅自建房設計圖,歐式與現代相融合
占地:183.706平方米
26萬二層平頂別墅樓設計圖,客廳中空,占地120平米
占地:120平方米
現代風平屋頂三層半農村小別墅設計圖,面寬僅7米
占地:90平方米
兩戶190平方米新農村雙拼別墅全套設計方案及效果圖
占地:191平方米
2026年新款別墅外觀圖,新中式風格,比簡歐大氣,時尚
占地:135平方米
五間二層別墅設計圖紙,樓梯設計的無比大氣
占地:300平方米
農村四層復式房屋設計圖紙,占地105平方米預算35萬左右
占地:105平方米
210平左右三層(兩層半)雙拼新農村別墅設計圖紙及外觀效果圖
占地:206.712平方米
170平方米新農村實用的三層雙拼設計圖紙,帶公用堂屋!
占地:173.62平方米
帶架空層車庫/地下室自建一層別墅設計圖,隔潮又能儲物
占地:91.32平方米
帶堂屋新農村三層房屋別墅設計圖紙,帶外觀效果圖
占地:214平方米
農村大氣四層樓房圖片及全套設計圖紙,復式客廳旋轉樓梯
占地:143平方米
豪華復式三層別墅設計圖紙,效果圖+建筑施工圖+結構施工圖
占地:126平方米
推薦:10套新農村自建房設計圖,2026年最新設計
閱讀次數:4825737次
100套鄉村別墅圖片大全,2026年最新設計
閱讀次數:2492203次
6款農村蓋一層平房的設計圖,10萬元就能建起來
閱讀次數:1852637次
這11個一層農村自建房別墅火爆了朋友圈!我最喜歡戶型十!你呢
閱讀次數:750268次
農村6萬元建一層小別墅圖,你敢相信嗎
閱讀次數:567686次
農村5萬塊就能自建房,6套普通房子設計圖分享,你沒看錯!
閱讀次數:419410次
8套農村漂亮三間平房圖片,非常適合在農村修建!
閱讀次數:411197次
農村自建房化糞池怎么做?附方案及施工過程
閱讀次數:391783次
農村一層三間平房設計圖,告別土氣養老房,讓人忍不住點贊
閱讀次數:350581次
新農村二層樓房圖片造價12萬,挑一套回家建房吧!
閱讀次數:349126次
