
第一套:一層鄉村別墅設計戶型圖,時尚實用簡單
![]() ![]() ![]() 別墅效果圖展示
占地100平左右,外觀很時尚,室內布局也很實用,造價經濟,施工簡單,如果回老家給父母蓋養老房,一層是個很好的選擇,臥室有三個左右,夠老人家住,偶爾來個客人有地方住,真的是很愜意。 占地面積:10.76m*10m,100平方米左右; 建筑層高:一層; 建筑高度:5.98米(含屋頂); 設計功能: 一層戶型:神位、客廳、餐廳、廚房、臥室x3、衛生間; ![]() 別墅戶型圖展示
第二套:最漂亮的農村二層小樓設計圖紙,簡約又大氣時尚
![]() ![]() ![]() 別墅效果圖展示
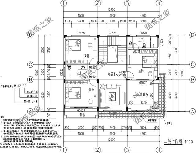
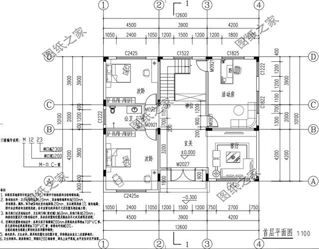
外觀及空間功能搭配都是根據廣大人群需求來設計。在這里建議大家在建房的事情上還需謹慎,不要一味跟風在,追求外表的奢華繁復,更要追求內在的合理設計。 占地面積:12.6m*10.1m,126平方米左右; 建筑層高:二層; 建筑高度:9.7米(含屋頂); 設計功能: 一層戶型:玄關、客廳、神位、臥室x2、衛生間、活動房; 二層戶型:起居室、主臥(帶衛生間)、臥室x2、衛生間、大露臺; ![]() ![]() 別墅戶型圖展示
第三套:20萬農村二層小洋樓設計圖,帶鍋爐房,漂亮簡單實用
![]() ![]() ![]() 別墅效果圖展示
主臥采用火炕設計,非常適用于北方的業主使用。當然不需要火炕的業主也可以不做火炕。樓梯下邊設置了一個洗衣房,充分合理的利用了每一寸空間。 地面積:13.5m*11.5m,165平方米左右; 建筑層高:二層; 建筑高度:9.6米(含屋頂); 設計功能: 一層戶型:客廳、餐廳、廚房、衛生間、主臥(帶火炕)、臥室、洗衣間、鍋爐房、車庫; 二層戶型:起居室、臥室x4、衛生間、露臺×2; ![]() ![]() 別墅戶型圖展示
以上就是2020最新別墅外觀圖,喜歡哪款,歡迎下方留言。 圖紙之家-專注農村別墅/自建房設計18年,集合國內200余位經驗豐富的設計師,被評為口碑最好的農村建筑設計公司! |

160平方米二層小別墅設計圖紙及效果圖大全,12X13米
占地:162平方米
農村三層復式自建樓房設計圖,外觀圖大氣
占地:130平方米
三層平頂現代風格,農村自建房設計圖,可帶電梯,百看不厭
占地:259.55平方米
140平方米新農村二層自建平屋頂房屋設計圖紙帶外觀效果圖
占地:140平方米左右
面寬不到8米的農村二層半別墅建筑圖紙及效果圖
占地:96平方米左右
中國最好看的二層農村房子圖片及施工圖紙,20萬現代風格
占地:130平方米
二層農村房子圖片及全套施工圖紙,占地150平面左右
占地:150平方米
帶開放式車庫二層農村自建別墅設計方案,造價僅15萬
占地:89.412平方米
新農村二層客廳挑高樓房設計圖,外觀歐式風格
占地:178平方米
一層5間歐式平房小洋樓建筑設計圖紙,大戶型一層別墅戶型
占地:216平方米
中式古風別墅設計圖,一層三合院設計,經濟舒適,時尚與傳統的
占地:275.7平方米
農村三間二層別墅設計圖,外觀簡約左右對稱
占地:170.06平方米
新農村二層住宅設計圖紙,簡單別墅設計圖(含效果圖)
占地:77.6平方米
中國最美的四合院別墅設計圖方案,復式挑空客廳戶型
占地:343.57平方米
140平方米現代偏中式實用型三層房屋設計圖紙,新農村建房推薦
占地:142平方米
100來平復式旋轉樓梯二層簡歐別墅設計圖,戶型實用
占地:101.523平方米
三層現代別墅設計圖紙,全套私人別墅圖紙(含外觀效果圖)
占地:170.38平方米
農村120方三層自建房子圖,好看又不貴的三層農村別墅
占地:120平方米
全網都在抄的二層別墅!爆款12米面寬設計戶型太實用
占地:139.51平方米
農村房子設計圖三層獨棟別墅方案,占地130平方米
占地:130平方米
推薦:10套新農村自建房設計圖,2026年最新設計
閱讀次數:4825737次
100套鄉村別墅圖片大全,2026年最新設計
閱讀次數:2492203次
6款農村蓋一層平房的設計圖,10萬元就能建起來
閱讀次數:1852637次
這11個一層農村自建房別墅火爆了朋友圈!我最喜歡戶型十!你呢
閱讀次數:750268次
農村6萬元建一層小別墅圖,你敢相信嗎
閱讀次數:567686次
農村5萬塊就能自建房,6套普通房子設計圖分享,你沒看錯!
閱讀次數:419410次
8套農村漂亮三間平房圖片,非常適合在農村修建!
閱讀次數:411197次
農村自建房化糞池怎么做?附方案及施工過程
閱讀次數:391783次
農村一層三間平房設計圖,告別土氣養老房,讓人忍不住點贊
閱讀次數:350581次
新農村二層樓房圖片造價12萬,挑一套回家建房吧!
閱讀次數:349126次
