
|
什么樣的房子最好?不外乎這八個字:因地制宜,按需而建。自家建房何必要跟村里的房子千篇一律,倒不如定制設計,建造出來的房子才有家的歸屬感。想想住在自己夢想中的家,是不是很舒適。 今天小編就帶來適合在180平米宅基地建造的別墅,看看你有沒有喜歡的。 第一款:現代農村一層帶閣樓別墅設計圖以及戶型圖![]() 圖紙介紹:農村帶閣樓的一層半平房設計圖,住著比樓房還舒適,看了就想建,溫馨又舒適的戶型,立面灰色外墻磚與白色漆的巧妙搭配,非常大氣,且具質感。屋頂為藍色的坡屋頂,層次分明,使立面錯落有致,門廳旁邊的連廊,使別墅的功能更休閑,更舒適。 占地面積:12.1m*13m,170.1平方米左右 建筑層高:一層 建筑高度:6.3米(含屋頂) 設計功能: 一層戶型:客廳、廚房、餐廳、臥室X2、臥室(帶衛生間)衛生間、雜物間 閣樓戶型:臥室(帶衛生間)、臥室、衛生間、雜物間X2 ![]() ![]() 第二款:帶閣樓農村一層別墅設計圖以及戶型圖![]() ![]() ![]() 農村一層小別墅設計圖,適合建給父母的經典一層別墅,畢竟年紀大了上下樓梯不方便也不安全,所以如果單為父母而建房,一層是上上之選。這款圖紙設計多個臥室,方便兒女回家省親。建成后效果極佳,全村老人都羨慕。 占地面積:12.9m*10.8m,130平方米左右 建筑層高:一層 建筑高度:6.39米(含屋頂) 設計功能:客廳、餐廳、廚房、臥室×5、衛生間,儲藏室 ![]() 第三款:新中式二層別墅設計圖以及戶型圖![]() ![]() ![]() 新新農村二層紙,采用灰棕搭配,藍色坡屋頂,主體墻面采用白色其中加入些許灰色裝飾別墅的邊框線條,整體上顯示出一種沉穩端莊的氣質,正面凸出式的大氣門廊,點綴大氣的方柱,凸顯整棟別墅氣質,臥室窗采光通風俱佳,居住舒適度得到保障。 占地面積:13.9m*12.5m,175平方米左右; 建筑層高:二層 建筑高度:10.08米(含屋頂) 建筑結構:磚混結構 主體造價:23萬左右 設計功能: 一層戶型:堂屋、客廳、廚房、餐廳、主臥(帶衛生間)、臥室、衛生間 二層戶型:茶室、臥室(帶衛生間)、書房、臥室x2、衛生間、露臺
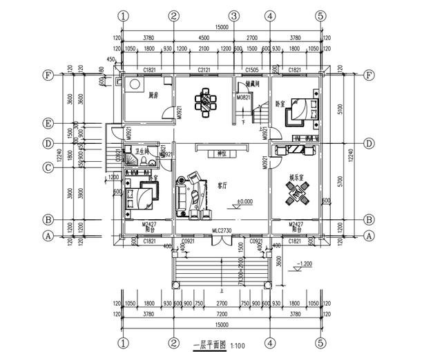
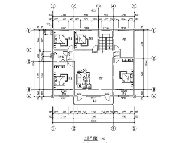
![]() ![]() 第四款:簡歐復式二層別墅
|

簡單實用新農村三層住宅房屋設計圖,時尚大氣,低調
占地:140平方米
二層美式自建別墅設計圖,全套施工圖+外觀效果圖
占地:145平方米
歐式大氣三層小別墅設計圖紙,外觀、造型大方,色彩明快
占地:140平方米
二層農村小別墅設計圖,造價經濟實惠,參考價30萬以內
占地:140平方米
簡單大氣的農村二層樓設計圖,二層歐式農村別墅設計圖
占地:180平方米
農村4間3層樓房設計圖,帶車庫,挑空客廳,坡屋頂設計
占地:160平方米
復式三層雙拼別墅設計圖,客廳中空,旋轉樓梯
占地:350平方米
130平方米農村兩層別墅圖紙及效果圖12X11米
占地:133平方米
時尚漂亮的二層小洋樓設計圖,設計師建房都選這個方案
占地:149.27平方米
90平方米新農村住宅設計二層小別墅設計圖紙11x9米
占地:90平方米
戶型好的三層帶獨立車庫的樓房設計圖,含外觀效果圖
占地:148平方米
帶中式小院的二層仿古別墅設計圖,小戶型自建房設計,外觀美極
占地:82.94
鄉下建房一層戶型圖,一層住宅設計圖紙,誰說一層平房不能叫別
占地:200平方米
復式挑空現代簡約風三層別墅設計圖,簡單時尚最受年輕人最愛
占地:149.7平方米
250平方米農村三層別墅設計圖紙及效果圖大全,18.3x15米
占地:247平方米
新中式復式三層別墅設計圖紙,最美的新中式別墅
占地:130平方米
面寬8米也能建別墅,小面寬農村三層別墅設計圖
占地:93.83平方米
新款農村三層雙拼聯體別墅戶型圖,客廳中空,單戶120平米左右
占地:240平方米
兩戶190平方米新農村雙拼別墅全套設計方案及效果圖
占地:191平方米
2026新款農村四層別墅設計圖紙戶型圖,帶挑空客廳
占地:150平方米
推薦:10套新農村自建房設計圖,2026年最新設計
閱讀次數:4825737次
100套鄉村別墅圖片大全,2026年最新設計
閱讀次數:2492203次
6款農村蓋一層平房的設計圖,10萬元就能建起來
閱讀次數:1852637次
這11個一層農村自建房別墅火爆了朋友圈!我最喜歡戶型十!你呢
閱讀次數:750268次
農村6萬元建一層小別墅圖,你敢相信嗎
閱讀次數:567686次
農村5萬塊就能自建房,6套普通房子設計圖分享,你沒看錯!
閱讀次數:419410次
8套農村漂亮三間平房圖片,非常適合在農村修建!
閱讀次數:411197次
農村自建房化糞池怎么做?附方案及施工過程
閱讀次數:391783次
農村一層三間平房設計圖,告別土氣養老房,讓人忍不住點贊
閱讀次數:350581次
新農村二層樓房圖片造價12萬,挑一套回家建房吧!
閱讀次數:349126次
