
|
在農村建房子,大多數人還是比較傳統的,喜歡“三間堂”或者“五間堂”,但是在功能上在逐漸的接近現代化,對于房屋的本身,很多人都會注意到它居住的功能性。今天小編給大家帶來的四款別墅圖紙就是打破傳統觀念的農村兩間三層樓房新款圖,不僅打破了傳統的觀念,而且在功能上也更加齊全,絕對的適合現代的農村人。 款式一:農村三層樓房設計圖,兩開間,占地90平米左右,客廳中空圖紙介紹:本戶型客廳中空,難得的好戶型,占地90平方米,主體造價26萬左右,內部布局滿足一般家庭人口需求,所以不用擔心人口多會不適合。
占地面積:7.8m*12.0m,一層占地90平方米左右; 建筑層高:三層; 建筑高度:12.5米(含屋頂); 設計功能: 一 層:玄關、客廳、廚房、餐廳、臥室、衛生間; 二 層:客廳上空、臥室x2、書房、衛生間、陽臺; 三 層:臥室x2、臥室(帶衣帽間)、衛生間、陽臺;
戶型二:兩間三層樓房設計圖,占地100平米圖紙介紹:本戶型磚混結構,占地100平米左右,主體造價25-30萬,施工簡單,打破傳統“三間堂”和“五間堂”的觀念,真正做到了“兩間堂”也非常美。
占地面積:9.0m*11.4m,一層占地100平方米左右; 建筑層高:三層; 建筑高度:12.29米(含屋頂); 設計功能: 一 層:客廳、廚房、餐廳、臥室、衛生間; 二 層:客廳上空、客廳、臥室x3、衛生間、陽臺; 三 層:客廳、主臥(帶衛生間、衣帽間)、臥室、衛生間;
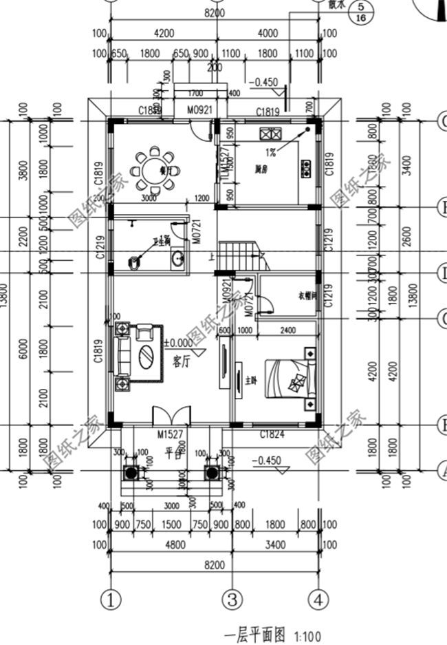
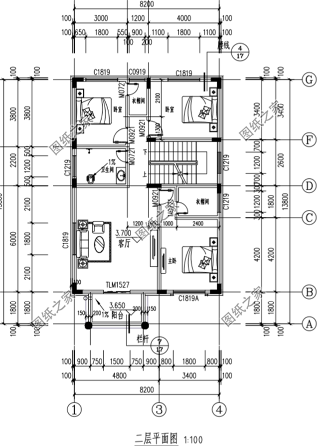
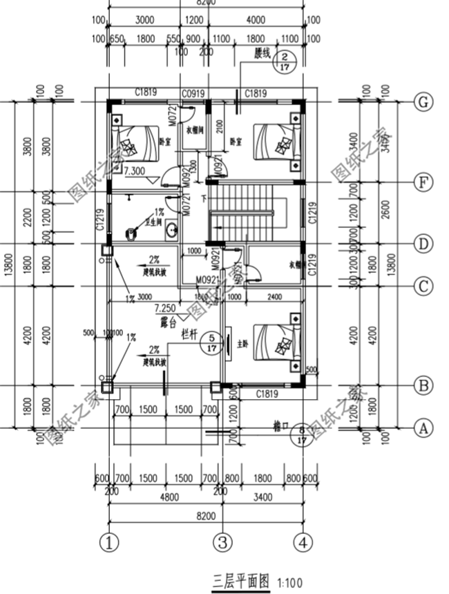
戶型三:三層別墅設計圖,帶露臺,占地面積100平米左右圖紙介紹:本戶型占地100平米左右,小開間,大進深,外觀看上去就給人一種非常舒適溫馨的感覺,這樣的家誰不喜歡?
占地面積:8.2m*13.8m,一層占地106平方米左右; 建筑層高:三層; 建筑高度:12.81米(含屋頂); 設計功能: 一 層:客廳、廚房、餐廳、臥室(衣帽間)、衛生間; 二 層:客廳、臥室(帶衣帽間)×2、臥室、衛生間、陽臺; 三 層:臥室(帶衣帽間)×2、臥室、衛生間、露臺;
不知道這幾款別墅有你喜歡的嗎?留個關注吧,小編會繼續給大家分享更多別墅設計!
圖紙之家-專注農村別墅/自建房設計18年,集合國內200余位經驗豐富的設計師,被評為口碑最好的農村建筑設計公司! |

農村三間兩層樓房設計圖,帶外觀效果圖
占地:140平方米
實用型二層別墅設計圖,簡單大方最耐看,16.5米乘11米
占地:150.94平方米
小型中式一層三合院別墅設計圖,小宅基地照樣建合院
占地:119.73平方米
自建一層農村別墅圖,經濟實用新選擇,建房必備參考戶型!
占地:142.88平方米
鄉下建房一層平房設計圖紙及戶型圖,占地150平米左右
占地:150平方米
二開間二層別墅設計圖,面寬9米,不可多得的好選擇!
占地:93.24平方米
開間8米的小戶型二層別墅設計圖,2開間占地不到60平
占地:56平方米左右
歐式二層5大間別墅設計圖,新穎獨特的外觀,面寬20米
占地:180.14平方米
帶地下室三層豪華大氣新農村房屋設計圖,占地150平米左右
占地:150平方米
鄉村中式四合院二層別墅設計圖,中式韻味十足
占地:223平方米左右
帶地下室設計三層自建房別墅設計圖,復式挑空客廳
占地:192平方米
農村一層四開間自建別墅,美麗住宅如詩如畫里15米乘10米
占地:142平方米
農村帶地下室二層半自建房屋設計圖,樓中樓設計,歐式風格
占地:140平方米
鄉村三層簡單自建房子設計圖,全部建好34萬左右,外觀簡潔
占地:127.912平方米
新農村二層半房屋設計圖紙及效果圖,別墅設計圖精選
占地:113平方米
簡單質樸三層新農村小別墅設計圖紙,別墅圖片,戶型簡單合理實
占地:120平方米
兩層15萬農村自建房設計圖,農村蓋房設計大全圖
占地:130平方米
110平米一層小別墅設計方案,布局四室兩廳一廚兩衛
占地:110.5平方米
180平米農村二層小別墅設計圖,外觀漂亮,帶露臺
占地:180平方米
簡單實用新農村三層住宅房屋設計圖,時尚大氣,低調
占地:140平方米
推薦:10套新農村自建房設計圖,2026年最新設計
閱讀次數:4825737次
100套鄉村別墅圖片大全,2026年最新設計
閱讀次數:2492203次
6款農村蓋一層平房的設計圖,10萬元就能建起來
閱讀次數:1852637次
這11個一層農村自建房別墅火爆了朋友圈!我最喜歡戶型十!你呢
閱讀次數:750268次
農村6萬元建一層小別墅圖,你敢相信嗎
閱讀次數:567686次
農村5萬塊就能自建房,6套普通房子設計圖分享,你沒看錯!
閱讀次數:419410次
8套農村漂亮三間平房圖片,非常適合在農村修建!
閱讀次數:411197次
農村自建房化糞池怎么做?附方案及施工過程
閱讀次數:391783次
農村一層三間平房設計圖,告別土氣養老房,讓人忍不住點贊
閱讀次數:350581次
新農村二層樓房圖片造價12萬,挑一套回家建房吧!
閱讀次數:349126次
