
|
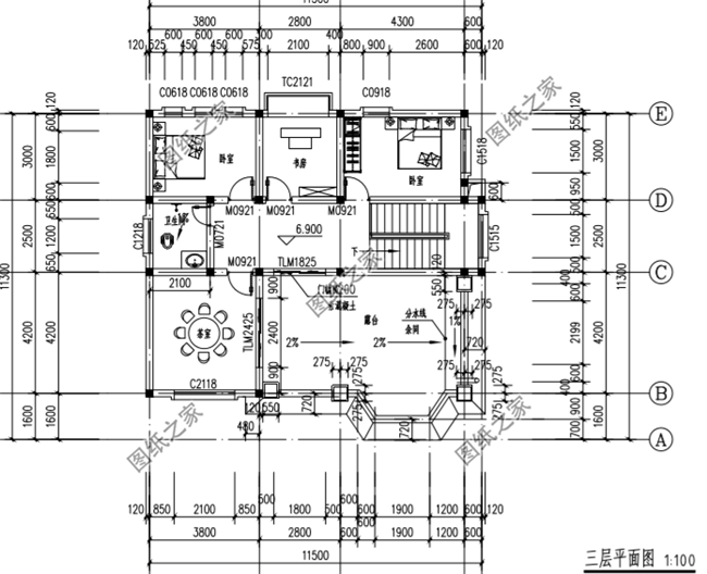
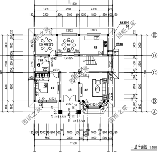
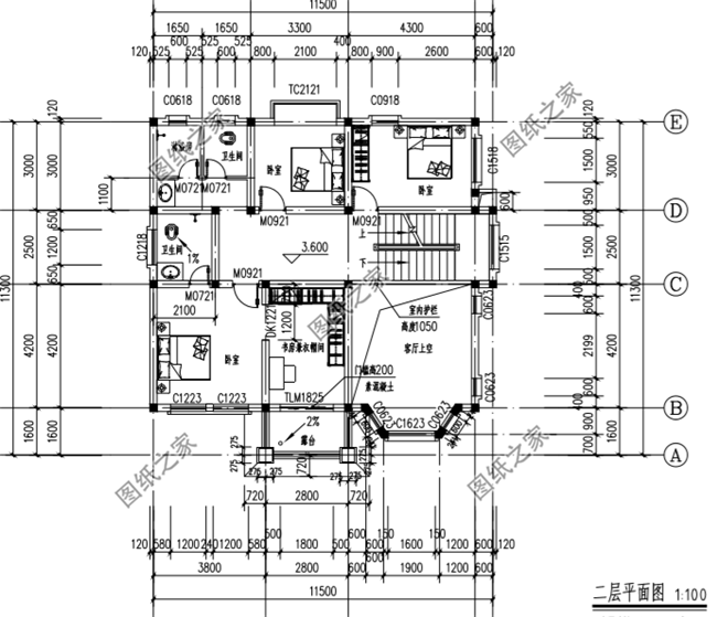
現在誰家要是有一塊宅基地,那可真是村里的紅人啊。在自家宅基地上蓋一棟像樣的房子出來一定會吸引全村人來觀看。可是問題就是像樣的房子如何施工才能建出來,這里面的問題可不是咱們隨隨便便就知道的,首先要有圖紙,然后就是施工隊,滿足這兩個條件就可以蓋出好房子來。今天小編就幫助大家解決第一個問題,那就是分享三款農村20萬元三層小樓圖,保證你看了就愛上。 款式一:最新農村別墅設計圖,占地僅110平米,主體造價20萬左右圖紙介紹:本戶型占地僅110平米,卻有著非常華麗的豪宅既視感,這款別墅保留了歐式經典韻味的同時更加適宜農村來建造。 占地面積:11.5m*11.3m,一層占地115平方米左右; 建筑層高:三層; 建筑高度:12.35米(含屋頂); 設計功能: 一 層:玄關、客廳、廚房、餐廳、臥室、棋牌室、衛生間; 二 層:客廳上空、臥室(帶書房,衣帽間,衛生間)、臥室x2、公衛、淋浴房、小露臺; 三 層:臥室x2、書房、茶室、衛生間、大露臺;
款式二:農村三層別墅自建房設計圖,小開間精選,主體造價20萬左右圖紙介紹:本戶型外觀高端大氣,內部空間規劃緊湊,室內布局很合理,多個臥室可滿足人口多的農村家庭需求,還有神臺、陽臺、露臺、雜物間和活動廳可以保證生活做續和工作娛樂的合理分配。 占地面積:8.1m*12.4m,103平方米左右; 建筑層高:三層; 建筑高度:12.2米(含屋頂); 設計功能: 一層戶型:老人房,公衛,廚房,餐廳,神臺,客廳; 二層戶型: 老人房,公衛,洗衣房,客廳,臥室X2,陽臺; 三層戶型:臥室,公衛,雜物間,活動廳,露臺,涼亭;
款式三:農村造價20萬自建房設計圖,占地120平米左右圖紙介紹:本戶型外形設計結合了傳統的中式風格和當下最流行的歐式風格,簡單大氣,個性時尚;露臺空間很大,視覺效果極佳。 占地面積:12.0m*11.5m,一層占地120平方米左右; 建筑層高:三層; 建筑高度:11.9米(含屋頂); 設計功能: 一 層:客廳、廚房、餐廳、臥室、娛樂室、衛生間; 二 層:客廳、臥室(帶衛生間)、臥室x3、衛生間、休閑區、書房、陽臺; 三 層:臥室(帶衛生間)、休閑區、書房、大露臺、陽臺;
怎么樣,看了這幾款別墅圖紙你還不心動嗎?戶型好造價又低的別墅戶型往哪找去,還不趕快收藏圖紙。
圖紙之家-專注農村別墅/自建房設計18年,集合國內200余位經驗豐富的設計師,被評為口碑最好的農村建筑設計公司! |

農村一層半房屋設計圖,帶外觀效果圖,外觀時尚
占地:155平方米
農村40萬房子圖片外觀設計效果圖,帶地下室,外觀時尚大氣
占地:110平方米
新農村四層房屋設計圖紙,高端大氣,占地150平方米
占地:150平方米
140平方米農村三層復式房屋設計施工圖,開放式廚房
占地:143平方米
二層小別墅外觀圖片,別墅圖紙,外觀時尚,布局簡單實用,挑空
占地:230平方米
115平旋轉樓梯三層復式別墅房屋設計圖,含外觀效果圖
占地:115平方米
230平米歐式帶地下室三層自建別墅設計施工圖紙及效果圖
占地:230平米
180平方米新農村雙拼戶型別墅房屋設計圖紙帶外觀圖17X11米
占地:180平方米
二層美式自建別墅設計圖,全套施工圖+外觀效果圖
占地:145平方米
經典三層雙拼樓房設計圖,經典外觀,經典戶型
占地:225平方米
最新設計的三層農村別墅圖紙,帶車庫,帶露臺,占地150平米左右
占地:150平方米
四層農村別墅設計圖,一二層都有廚房和餐廳的戶型方案
占地:128.52平方米
120平米左右農村房屋設計圖占地面積適宜,外觀舒適大氣
占地:120平方米
鄉村兄弟小戶型雙拼一層房屋設計圖,雙拼別墅格局精煉,實用性
占地:160平方米
2026帶車庫三層雙拼別墅房屋設計圖,配色淡雅低調
占地:224平方米
大面積農村一層房子設計圖,戶型實用、合理
占地:190平方米
3款簡單舒適二層別墅設計圖,低調配色,造型簡單大氣
占地:多戶型可選
2026年新款一層住宅別墅設計圖紙,中式風格漂亮極了
占地:207平方米
歐式三層豪宅樓設計圖紙及外觀效果圖,占地180平左右
占地:177.82平方米
農村二層復式小別墅設計,進深12米,農村建房最受歡迎的款
占地:149.096 平方
推薦:10套新農村自建房設計圖,2026年最新設計
閱讀次數:4825737次
100套鄉村別墅圖片大全,2026年最新設計
閱讀次數:2492203次
6款農村蓋一層平房的設計圖,10萬元就能建起來
閱讀次數:1852637次
這11個一層農村自建房別墅火爆了朋友圈!我最喜歡戶型十!你呢
閱讀次數:750268次
農村6萬元建一層小別墅圖,你敢相信嗎
閱讀次數:567686次
農村5萬塊就能自建房,6套普通房子設計圖分享,你沒看錯!
閱讀次數:419410次
8套農村漂亮三間平房圖片,非常適合在農村修建!
閱讀次數:411197次
農村自建房化糞池怎么做?附方案及施工過程
閱讀次數:391783次
農村一層三間平房設計圖,告別土氣養老房,讓人忍不住點贊
閱讀次數:350581次
新農村二層樓房圖片造價12萬,挑一套回家建房吧!
閱讀次數:349126次
