
|
現在的農村自建房是非常火熱了,越來越多的人放棄在城里買房,選擇回到老家農村修建別墅。以前農村人羨慕在城里住樓房的人,現在情況倒過來了,城里人反倒非常羨慕農村人,不僅有自己的宅基地,而且還有各種優惠政策,回到老家蓋一棟這樣的獨棟三層別墅,日子保準過得比城里還舒服。今天小編就給大家推薦四款獨棟三層別墅設計圖,奢華大氣,看誰還敢說你土。 戶型一:小戶型三層獨棟別墅設計圖,占地70平米
圖紙介紹:本戶型戶型小,外觀造型非常的有特色,不對稱拼湊設計,時尚感十足;歐式風格為主,又摻雜了一些田園風格,整體看上去更加有設計感。
占地面積:8.1m*10.5m,73平方米左右; 建筑層高:三層; 建筑高度:10米(含屋頂); 設計功能: 一層戶型:客廳、雜物間、餐廳、廚房、臥室、衛生間; 二層戶型:書房、臥室x2、衛生間、露臺; 三層戶型:衛生間、露臺; 戶型二:農村房子三層獨棟別墅設計方案圖,占地130平方米
圖紙介紹:本戶型占地130平米,主體造價35萬左右,客廳中空,加上旋轉樓梯設計,寬敞大氣;造型美觀,設計非常養眼,看上去就是一種享受。
占地面積:11.0m*13.6m,一層占地130平方米左右; 建筑層高:三層; 建筑高度:12.78米(含屋頂); 設計功能: 一 層:客廳、廚房、餐廳、臥室×2、休息室、衛生間; 二 層:客廳上空、臥室(帶衛生間,衣帽間)、臥室x2、衛生間、陽臺; 三 層:健身房、臥室(帶書房、陽臺)、臥室(帶涼亭)、臥室x2、衛生間、露臺; 戶型三:140平歐式帶露臺獨棟別墅設計圖,含全套戶型圖
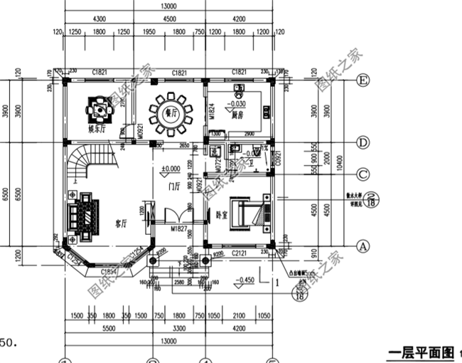
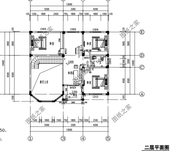
圖紙介紹:本戶型占地140平方米,多面采光窗,增強室內采光,陽光充沛;弧形落地窗設計,整個別墅看起來富有時尚感;整個戶型方正舒適,外觀簡約耐看,造價實惠,
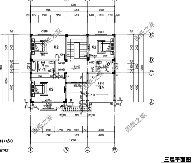
占地面積:13.0m*10.4m,140平方米左右; 建筑層高:三層; 建筑高度:13米(含屋頂); 設計功能: 一層戶型: 娛樂廳,餐廳,廚房,客廳,門廳,衛生間,臥室; 二層戶型:臥室X3,衛生間,客廳上空,休息區,陽臺; 三層戶型:臥室X3,衛生間X2,陽臺,露臺 ; 戶型四:獨棟歐式別墅三層農村樓房設計圖,外觀圖大氣,占地144平米
圖紙介紹:本戶型外觀豪華大氣,多面窗設計又采光又時尚;復式客廳、主臥帶內衛,非常方便;二樓還有小陽臺;屋頂花園可以打牌喝茶,還可以晾曬衣物。
占地面積:13m*13m,144.75平方米左右; 建筑層高:三層; 建筑高度:13米(含屋頂); 設計功能: 一層戶型:客廳、廚房、餐廳、儲物間、臥室(衛生間)、衛生間; 二層戶型:客廳上空、起居室、臥室(衛生間、衣帽間)、臥室、衛生間、陽臺; 三層戶型:娛樂區、臥室(衛生間)x2、臥室、衛生間、露臺; 好啦,看了這四款,不知道你心里有沒有選項了呢,喜歡哪一款趕快收藏圖紙吧!
圖紙之家-專注農村別墅/自建房設計18年,集合國內200余位經驗豐富的設計師,被評為口碑最好的農村建筑設計公司! |

二層農村小別墅設計圖,造價經濟實惠,參考價30萬以內
占地:140平方米
經典三層雙拼房屋設計圖,帶效果圖,戶型好,單戶面積120
占地:240平方米
獨棟小別墅設計圖,造價30萬左右的獨棟小別墅設計推薦
占地:150平方米
農村二層L戶型農村別墅!設計圖簡約時尚又大氣,住著超舒適
占地:170.55平方米
105平方米新農村三層別墅設計圖,全套CAD建筑圖+效果圖
占地:105平方米
20萬左右普通農村房子設計圖,二層簡約小別墅
占地:140平方米
被包工頭夸爆的二層別墅戶型!建好未來幾年必火
占地:189.98平方米
私人二層農村小樓設計圖,外觀靚麗,富有現代氣息
占地:160平方米
開間9到10米簡約別墅設計圖紙帶效果圖,全套別墅設計方案
占地:122平方米
不帶廚房的一層別墅設計圖,三臥二廳超巴適,室外獨立廚房
占地:120平方米
進深15米新農村三層房屋設計圖紙,農村住宅設計圖集
占地:128平方米
60多平三層現代風格別墅設計圖,小戶型平屋頂
占地:66.4平方米
豪華大氣三層農村房屋設計圖,對稱的主體設計大氣恢宏
占地:240平方米
廚房在前,簡約歐式二層農村自建別墅設計圖,戶型個性
占地:143.69平方米
160平小開間大進深農村三層別墅設計圖紙
占地:158.73平方米
新農村140平米樓房圖四層獨棟別墅設計圖,簡歐外觀風格設計
占地:141平方米
新中式二層農村住宅設計圖,戶型方正,主體造價21萬
占地:135.81平方米
一層農村自建房設計圖,造型美觀大氣,占地150平
占地:153.415平方米
農村現代三層建房子設計圖及圖片,平屋頂的設計
占地:150平方米
農村40萬房子圖片外觀設計效果圖,帶地下室,外觀時尚大氣
占地:110平方米
推薦:10套新農村自建房設計圖,2026年最新設計
閱讀次數:4825737次
100套鄉村別墅圖片大全,2026年最新設計
閱讀次數:2492203次
6款農村蓋一層平房的設計圖,10萬元就能建起來
閱讀次數:1852637次
這11個一層農村自建房別墅火爆了朋友圈!我最喜歡戶型十!你呢
閱讀次數:750268次
農村6萬元建一層小別墅圖,你敢相信嗎
閱讀次數:567686次
農村5萬塊就能自建房,6套普通房子設計圖分享,你沒看錯!
閱讀次數:419410次
8套農村漂亮三間平房圖片,非常適合在農村修建!
閱讀次數:411197次
農村自建房化糞池怎么做?附方案及施工過程
閱讀次數:391783次
農村一層三間平房設計圖,告別土氣養老房,讓人忍不住點贊
閱讀次數:350581次
新農村二層樓房圖片造價12萬,挑一套回家建房吧!
閱讀次數:349126次
