
|
現在農村自建房別墅的越來越多,主要是有三點原因:一是城市的房價過高,自己在村里蓋房子性價比高一點;而是家庭人口多,需要大面積的房子;三十農村的基礎條件建設已經很完善了,尤其是南方地區,所以即使在農村生活也很方便。別墅風格也是多種多樣,有帶地下室的,有帶旋轉樓梯的,甚至還有帶電梯的。 今天小編就給大家介紹5套2020農村新款別墅圖,帶地下室功能齊全,樣式美觀。 方案一:二層復式農村別墅設計圖紙,帶地下室,還有酒窖和家庭影院室
圖紙介紹:本戶型方正實用,還有酒窖和家庭影院等,功能齊全,非常適合農村自建房;房子很有層次感,端正穩重;別墅有地下室,可以用作休閑娛樂空間,多功能影音室的設計也同時豐富了在農村的閑暇時光。
占地面積:17.5m*13.45m,208.98平方米左右; 建筑層高:二層; 建筑高度:9.82米(含屋頂); 設計功能: 地下室戶型:家庭影音、酒窖、棋牌室、儲物間、健身區; 一層戶型:玄關、客廳、餐廳、廚房、臥室(帶衛生間)、臥室(帶衛生間、衣帽間)、車庫; 二層戶型:臥室(帶衛生間、衣帽間、書房)x2、臥室(帶汗蒸房)、露臺x2、陽臺; 方案二:二層自建房別墅設計圖,帶小院、地下室,外觀時尚現代
圖紙介紹:本戶型帶獨立小院和地下室,外觀現代時尚,內部布局合理,造價低,是一款經典的別墅戶型。
占地面積:10.5m*18.5m,194平方米左右(含小院); 建筑層高:二層; 建筑高度:10.624米(含屋頂); 設計功能: 地下戶型設計:臥室×2、儲藏間、衛生間、酒窖、 一層戶型設計:客廳、餐廳、廚房、臥室x2、衛生間、棋牌室; 二層戶型設計:主臥(帶衛生間)、臥室x2、衛生間、茶室、露臺; 方案三:農村二層樓房建房戶型圖,占地110平米左右
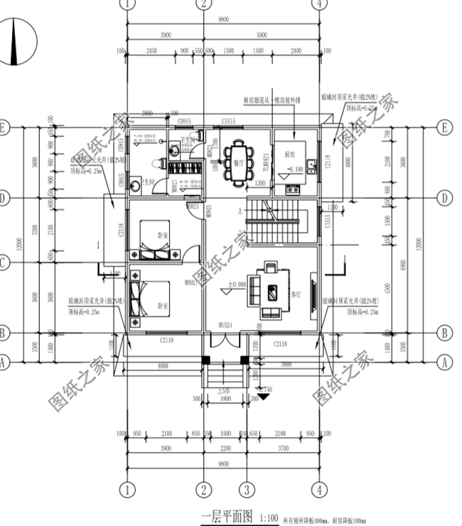
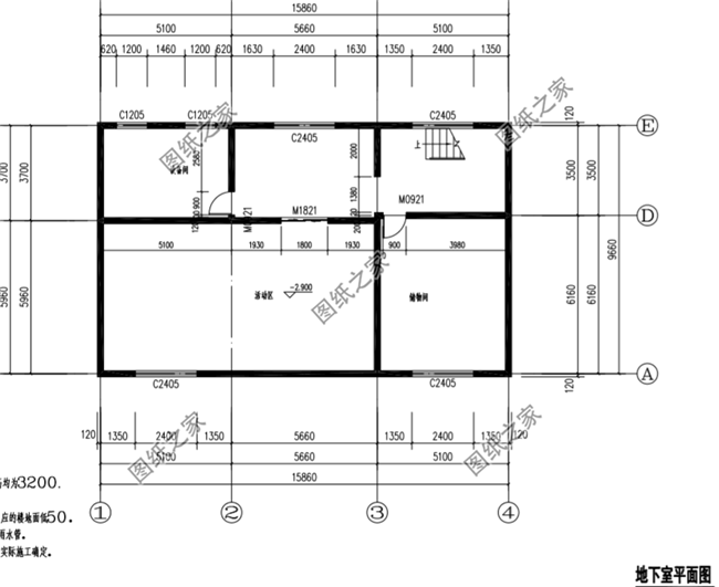
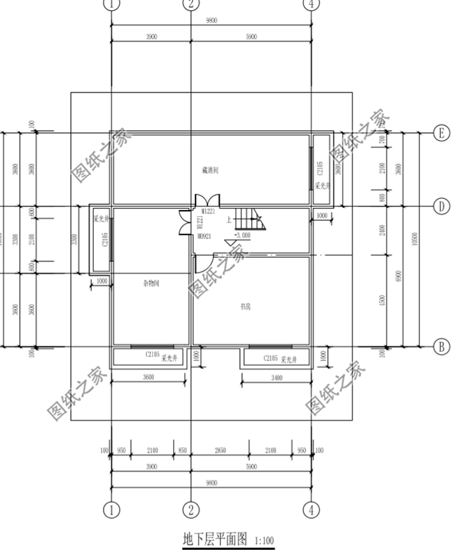
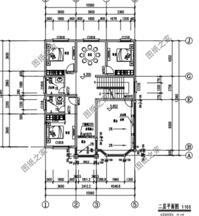
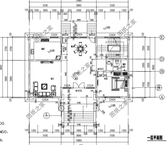
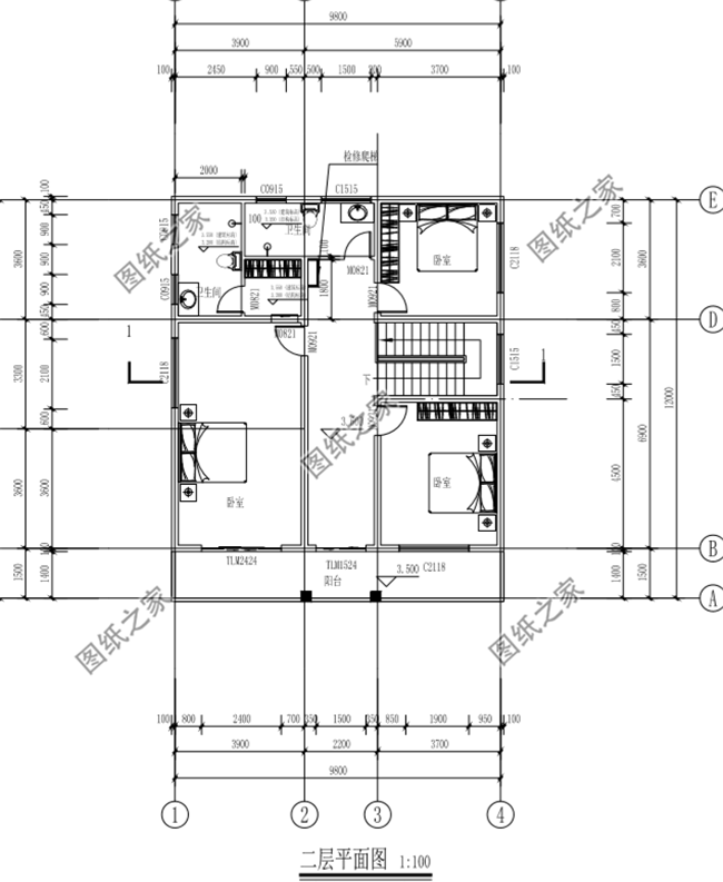
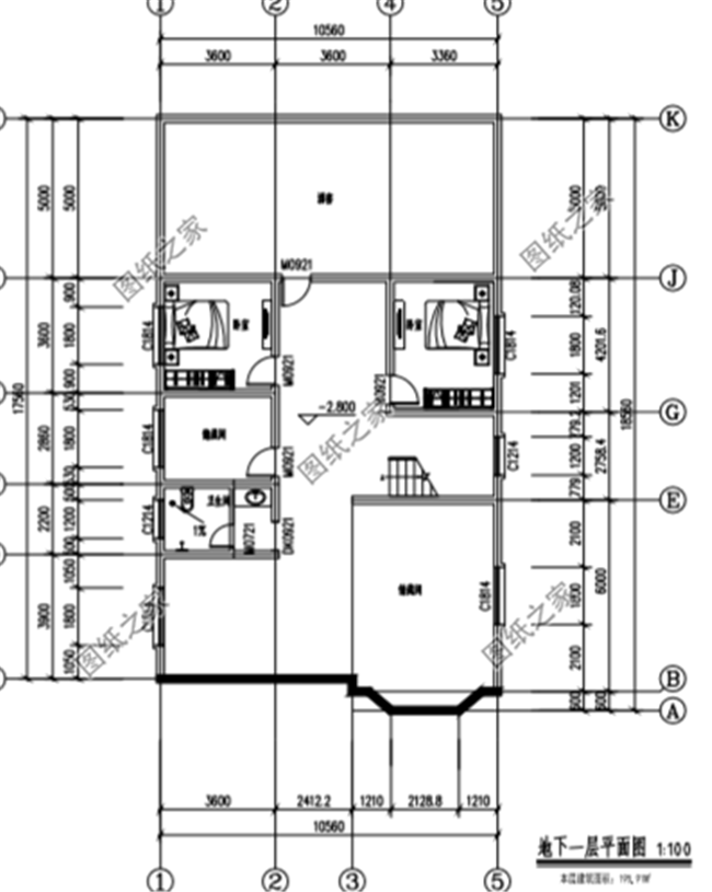
圖紙介紹:本戶型占地110平米左右,帶地下室,整體造型十分干凈利落,別墅外觀鬼泣,真石漆外墻提升檔次,居住舒適,簡約明朗。
占地面積:9.8m*12m,110平方米左右; 建筑層高:二層; 建筑高度:9.8米(含屋頂); 設計功能: 地下室:儲藏間、雜物間、書房; 一層戶型:客廳、餐廳、廚房、衛生間、臥室(臥室、衛生間、衣帽間)、; 二層戶型:主臥(帶衛生間、衣帽間)、臥室x2、衛生間、陽臺x2; 方案四:農村二層別墅住宅圖紙效果圖,帶地下室,難得的好戶型
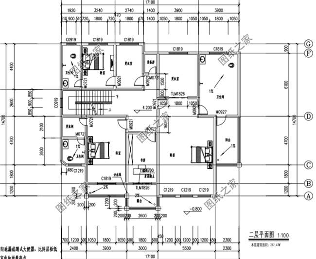
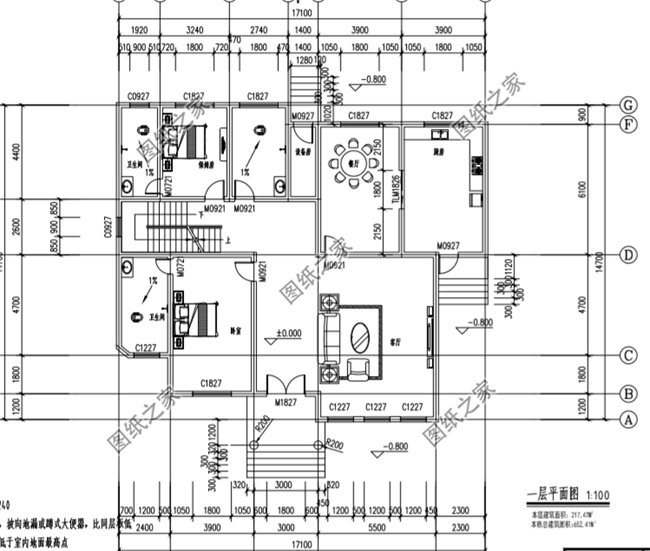
圖紙介紹:本戶型帶地下室,是難得的好戶型;外觀時尚美觀大氣,非常適合農村自建,內部設計也非常合理。
占地面積:17.1m*14.7m,220平方米左右; 建筑層高:二層; 建筑高度:11.6米(含屋頂); 設計功能: 地下室 一層戶型:客廳、餐廳、廚房、衛生間、主臥(帶衛生間)、保姆房(帶衛生間)、設備房、樓梯間; 二層戶型:臥室(帶更衣室、衛生間、陽臺)×2、臥室(帶更衣間、衛生間)、書房、露臺、設備房; 方案五:二層精致歐式小別墅帶地下室,占地160平米左右
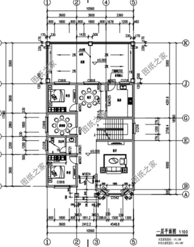
圖紙介紹:本戶型占地160平米左右,歐式外觀大氣實用,非常洋氣,樓層不高,但是可以滿足基本的生活需求,打掃起來也很方便。
占地面積:15.8m*9.6,159平方米左右; 建筑層高:二層; 建筑高度:10.35米(含屋頂); 設計功能: 地下室:活動區、儲藏間、設備間 一層戶型:前廳、客廳、餐廳、廚房、衛生間、臥室; 二層戶型:客廳、主臥(帶衛生間)、臥室x3、衛生間、陽臺; 怎么樣,你是不是也想馬上建一棟這樣的農村別墅啊?趕快收藏圖紙,給自己也建一個這樣的別墅吧。
圖紙之家-專注農村別墅/自建房設計18年,集合國內200余位經驗豐富的設計師,被評為口碑最好的農村建筑設計公司! |

18×15米新中式高檔農村三層別墅設計圖,低調奢華又實用
占地:195.91平方米
氣派的帶旋轉樓梯三層別墅房屋設計圖,戶型很好
占地:150平方米
門廳共用二層歐式兄弟雙拼別墅圖片及施工圖
占地:340平方米
新中式三層樓房設計圖,外觀精致布局也是相當的樸實
占地:140平方米
高端大氣三層雙拼自建房設計圖,外觀漂亮,240平左右
占地:240平方米
農村自建房10萬以下兩層別墅設計圖含外觀效果圖片
占地:105平方米
農村一層四開間自建別墅,美麗住宅如詩如畫里15米乘10米
占地:142平方米
簡單實用新農村三層住宅房屋設計圖,時尚大氣,低調
占地:140平方米
四層豪華別墅設計圖及效果圖,高端房屋設計方案
占地:250平方米
鄉村高檔四層豪華別墅自建房設計圖,一層不帶餐廳廚房戶型
占地:147平方米
農村四層樓房設計圖及外觀效果圖,造價60萬左右
占地:163.84平方米
70平農村小戶型二層別墅設計圖,小宅基地的福音
占地:70平方米
130平新農村三層房屋設計圖紙,預算30萬以內,蓋房推薦
占地:132平方米
預算20萬的農村三層房屋設計圖方案,帶外觀效果圖
占地:115平方米
共堂屋雙拼兩層小別墅設計圖,倆兄弟農村自建房首選
占地:198平方米
大氣豪華四層別墅設計圖紙,占地180平米左右
占地:180平方米
占地90平新中式經濟二層小別墅自建房設計圖,僅15萬
占地:89.3平方米
10套農村經典二層樓房設計圖紙,多戶型,多尺寸,總有一款適合
占地:多種
新款漂亮農村三層別墅建筑設計圖紙帶效果圖片,3種戶型
占地:125平方米
歐式新農村三層復式樓自建房別墅圖紙,旋轉樓梯設計
占地:128平方米
推薦:10套新農村自建房設計圖,2026年最新設計
閱讀次數:4825737次
100套鄉村別墅圖片大全,2026年最新設計
閱讀次數:2492203次
6款農村蓋一層平房的設計圖,10萬元就能建起來
閱讀次數:1852637次
這11個一層農村自建房別墅火爆了朋友圈!我最喜歡戶型十!你呢
閱讀次數:750268次
農村6萬元建一層小別墅圖,你敢相信嗎
閱讀次數:567686次
農村5萬塊就能自建房,6套普通房子設計圖分享,你沒看錯!
閱讀次數:419410次
8套農村漂亮三間平房圖片,非常適合在農村修建!
閱讀次數:411197次
農村自建房化糞池怎么做?附方案及施工過程
閱讀次數:391783次
農村一層三間平房設計圖,告別土氣養老房,讓人忍不住點贊
閱讀次數:350581次
新農村二層樓房圖片造價12萬,挑一套回家建房吧!
閱讀次數:349126次
