
|
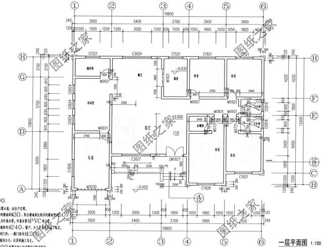
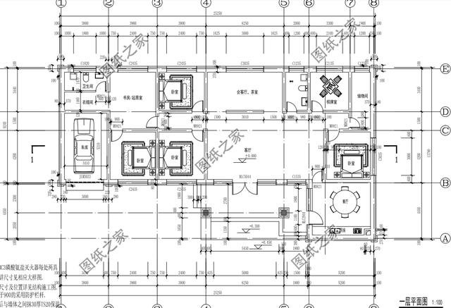
老家的房子,不僅僅是一種特有的居住方式,更是很多人不曾忘懷的時光記憶,隨著城市化和現代化不斷的拓展,往往家中孩子在城市,老人住在家里,節假日回家連停車的地方都沒有。 今天小編就介紹三款適合農村養老房帶車庫的設計圖以及戶型圖,快來看看吧! 第一套:現代式一層自建房,簡單實用![]() ![]() ![]() 這款現代一層平房設計圖,多窗戶設計,外觀干凈整潔,線性感強,白灰色搭配,更顯主人大氣,非常適合農村養老房自建。 占地面積:25.2m*13.8m,260平方米左右 建筑高度:8.9米(含屋頂) 功能:客廳、餐廳、廚房、會客廳、臥室×4、書房、衣帽間、衛生間、棋牌室、儲物間、衛生間、車庫 ![]() 第二款:小戶型一層帶車庫別墅設計圖以及戶型圖,經濟實用![]() ![]() ![]() 這款鄉村一層帶閣樓自建別墅設計圖,帶車庫,外觀非常簡潔,灰色的外墻磚,簡約大氣的方柱,迂回的走廊,構成建筑明亮舒適的格局。屋頂采用的是傳統的坡屋頂,建筑的層次感更分明,舒適感更全面。 占地面積:10.76m*7.76m,80平方米左右 建筑高度:7.2米(含屋頂) 一層戶型:走廊、客廳、餐廳、廚房、臥室、衛生間、車庫 閣樓戶型:棋牌室、儲藏間、臥室x2、衛生間 ![]() ![]() 第三款:簡歐式一層自建房效果圖以及戶型圖![]() ![]() 這款農村一層平房設計圖,帶外觀效果圖,美式和風格結合,第一眼就讓人喜歡,戶型合理,功能齊全,非常適合農村大戶人家自建。 占地面積:19.80m*13.80m,270平方米左右 建筑高度:6.70米(含屋頂) 一層戶型圖:客廳、餐廳、廚房、書房、衛生間、臥室(帶衛生間)、臥室(帶衣帽間)、臥室x2、活動房、儲藏間、車庫 ![]() 今天的分享就到這里了,有沒有你喜歡的?回家可以不用在外面停車了哦!本文由圖紙之家原創,歡迎關注,帶你一起長知識!
圖紙之家-專注農村別墅/自建房設計18年,集合國內200余位經驗豐富的設計師,被評為口碑最好的農村建筑設計公司! |

180平方現代風三層別墅設計圖,經典大氣,百看不厭
占地:180.48平方米
新中式小戶型二層別墅效果圖及全套施工設計圖,造價經濟實惠
占地:108平方米
高端大氣三層別墅設計圖,建好就是村里最靚的
占地:120平方米
農村三層樓房設計圖及效果圖,復式磚混結構
占地:148平方米
300平大戶型豪華三層別墅設計圖,帶總統套房
占地:300平方米
雙拼小別墅設計圖紙(含效果圖),二層別墅設計方案精選
占地:130平方米
最美農村一層合院設計圖紙,自建一棟火遍十里八鄉
占地:190平方米左右
豪華二層別墅設計圖紙及別墅圖片,旋轉樓梯,內設佛堂,大大落
占地:260平方米
中式復古四層別墅房屋設計圖紙,含外觀效果圖
占地:90平方米
開間12米的三層簡歐別墅設計圖,農村建房布局實用住的舒服
占地:108.15平方米
140平四層復式別墅房屋設計圖,帶外觀效果圖
占地:140平方米
好看又簡單二層仿古中式四合院樓房設計圖
占地:352平方米
17X12米三層雙拼別墅自建房設計圖,歐式風格,戶型方正
占地:190平方米
農村120方三層自建房子圖,好看又不貴的三層農村別墅
占地:120平方米
后面帶小院的農村房屋設計圖,適合鄉村自建
占地:300平方米
帶閣樓兩層半雙拼別墅房屋設計圖,帶外觀效果圖
占地:240平方米
一層農房別墅設計圖紙,140平方米,面寬15米
占地:140平方米
面寬8米的新農村三層自建房設計圖平屋頂,全套cad圖紙+效果圖
占地:115平方米
占地180平豪華三層農村別墅自建房設計圖,歐式與現代相融合
占地:183.706平方米
農村大氣四層樓房圖片及全套設計圖紙,復式客廳旋轉樓梯
占地:143平方米
推薦:10套新農村自建房設計圖,2026年最新設計
閱讀次數:4825737次
100套鄉村別墅圖片大全,2026年最新設計
閱讀次數:2492203次
6款農村蓋一層平房的設計圖,10萬元就能建起來
閱讀次數:1852637次
這11個一層農村自建房別墅火爆了朋友圈!我最喜歡戶型十!你呢
閱讀次數:750268次
農村6萬元建一層小別墅圖,你敢相信嗎
閱讀次數:567686次
農村5萬塊就能自建房,6套普通房子設計圖分享,你沒看錯!
閱讀次數:419410次
8套農村漂亮三間平房圖片,非常適合在農村修建!
閱讀次數:411197次
農村自建房化糞池怎么做?附方案及施工過程
閱讀次數:391783次
農村一層三間平房設計圖,告別土氣養老房,讓人忍不住點贊
閱讀次數:350581次
新農村二層樓房圖片造價12萬,挑一套回家建房吧!
閱讀次數:349126次
