
|
很多兄弟在同一個宅基地上建雙拼別墅都是會根據自家的情況來選擇,不同家庭需求肯定不同。宅基地大得當然可以建完全獨立的雙拼別墅,除了墻是一面其他都是分開的;宅基地小的就只能夠不完全分開建雙拼了。今天小編就給大家介紹三款小戶型二層雙拼別墅設計圖,外觀美觀還大氣。
第一款:農村簡單雙拼二層小戶型別墅設計圖,總占地190平米
圖紙介紹:這款二層別墅占地總面積190平方米,非常合理的利用了每一個空間,房屋的造型也是很美觀,從外墻到屋頂,哪怕是細節部分也處理的很到位。 占地面積:14m*12m,190平方米左右,單戶95平方米左右;(含門庭) 建筑層高:二層(含悶頂層); 建筑高度:9.3米(含屋頂); 設計功能: 一層房屋戶型:客廳、廚房、餐廳、衛生間; 二層房屋戶型:主臥(帶書房、;衣帽間)、次臥×2、衛生間; ![]() ![]() ![]() ![]() 第二款:農村二層雙拼別墅帶露臺設計圖,單戶110平米
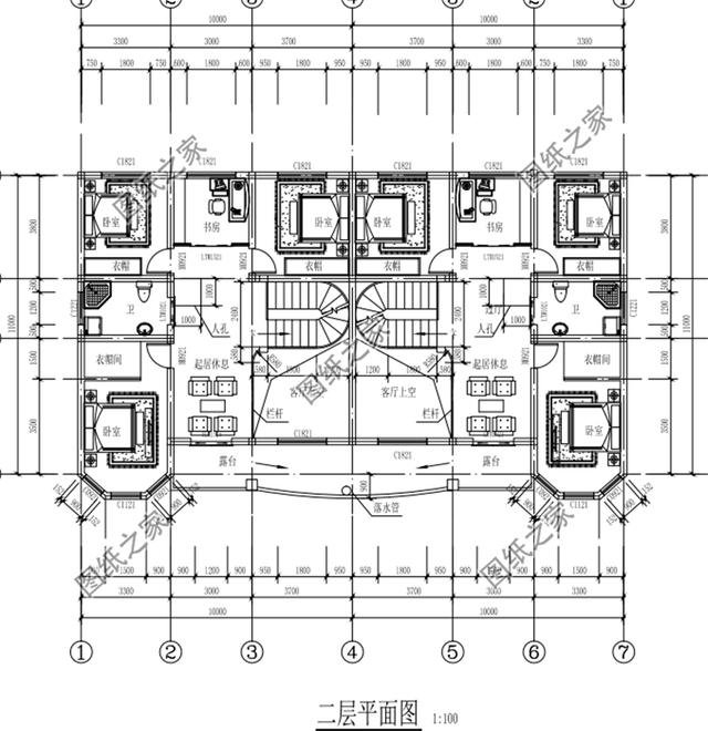
圖紙介紹:這款別墅戶型氣派經濟,外觀簡單大氣,雖然占地面積不是很大但是內部設計可以說是非常合理的了。 占地面積:20.0m*11.8m,220平方米左右,單戶110平方米左右; 建筑層高:二層; 建筑高度:9.6米(含屋頂); 設計功能: 一層房屋戶型:客廳、廚房、餐廳、臥室×2、衛生間; 二層房屋戶型:客廳上空、起居室、臥室×3、書房、衛生間、露臺; ![]() ![]() ![]() ![]() 第三款:經濟小戶型農村雙拼二層自建房設計圖,外觀簡約造價低
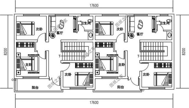
圖紙介紹:這款二層雙拼別墅外觀簡約造價低,雖然占地面積小,但功能齊全,簡單大氣的二層小別墅,建在農村非常時尚。獨進獨出,關上門來就是兩家人,能夠互不打擾。一層客廳、廚房、餐廳、衛生間、臥室都有,二層每家也有3間房,在農村足夠使用了。 占地面積:17.6m*8.2m,138平方米左右,單戶69平方米左右; 建筑層高:二層 建筑高度:8.37米 設計功能: 一層房屋戶型:客廳、廚房、餐廳、衛生間、臥室; 二層房屋戶型:客廳、主臥、次臥×2、衛生間、陽臺; ![]() ![]() ![]() ![]() 兄弟兩個一起建這么氣派的別墅,全家人包括父母臉上都會覺得很有面子。收藏圖紙和你的兄弟一起建吧。
圖紙之家-專注農村別墅/自建房設計18年,集合國內200余位經驗豐富的設計師,被評為口碑最好的農村建筑設計公司! |

豪華三層別墅設計圖紙,全套施工方案帶效果圖
占地:130平方米
經典三層雙拼樓房設計圖,經典外觀,經典戶型
占地:225平方米
三層蓋房子歐式挑空客廳別墅設計圖,外觀漂亮戶型實用
占地:多種戶型
歐式二層別墅平面圖,全套cad設計圖紙和外觀效果圖
占地:202平方米
鄉下建房一層戶型圖,一層住宅設計圖紙,誰說一層平房不能叫別
占地:200平方米
歐式農村三層小別墅設計圖,占地120平米,客廳中空,空間利用率
占地:120平方米
自建一層農村別墅圖,經濟實用新選擇,建房必備參考戶型!
占地:142.88平方米
160平米三層別墅設計圖,功能齊全,外觀漂亮,適合和父母同住
占地:160平方米
農村二層帶閣樓四間別墅設計圖,外觀美觀,戶型實用
占地:175平方米
農村120平三層樓房設計圖,造型現代,帶屋頂花園
占地:120平方米
農村三層帶地下室小樓房設計圖,客廳中空,帶書房,旋轉樓梯
占地:130平方米
帶車庫的農村四合院別墅設計圖,富貴人家的象征,日子越過越興
占地:219.24平方米
最新高端四層別墅外觀效果圖及全套設計圖,真土豪就這樣建
占地:174.08平方米
175平方米二層別墅設計CAD圖紙及效果圖大全,中式風格
占地:175平方米
西班牙風格農村二層樓房設計圖及效果圖,實用美觀
占地:170平方米
130平米新農村自建房屋施工建筑圖紙及效果圖
占地:132平米
二層農村雙拼別墅帶露臺設計圖,20×11.8米,單戶110平米
占地:220平方米
新中式二層別墅設計圖,農村最適合建的兩層小樓,13×12米
占地:143平方米
155平方米二層別墅房屋設計圖,帶獨立車庫
占地:155平方米
漂亮時尚二層樓房設計圖紙,經濟實用,戶型通透
占地:150平方米
推薦:10套新農村自建房設計圖,2026年最新設計
閱讀次數:4825737次
100套鄉村別墅圖片大全,2026年最新設計
閱讀次數:2492203次
6款農村蓋一層平房的設計圖,10萬元就能建起來
閱讀次數:1852637次
這11個一層農村自建房別墅火爆了朋友圈!我最喜歡戶型十!你呢
閱讀次數:750268次
農村6萬元建一層小別墅圖,你敢相信嗎
閱讀次數:567686次
農村5萬塊就能自建房,6套普通房子設計圖分享,你沒看錯!
閱讀次數:419410次
8套農村漂亮三間平房圖片,非常適合在農村修建!
閱讀次數:411197次
農村自建房化糞池怎么做?附方案及施工過程
閱讀次數:391783次
農村一層三間平房設計圖,告別土氣養老房,讓人忍不住點贊
閱讀次數:350581次
新農村二層樓房圖片造價12萬,挑一套回家建房吧!
閱讀次數:349126次
