
|
城市的房價迅速攀升,這是一個不爭的事實,很多在外面打工想要在城里有一席之地的農村人,已經漸漸力不從心了,在城里買套房已經變的越來越艱難,但這時候一想,城里也不是很好,住房面積小,空氣質量也不好,哪像我們農村啊,空氣清新,環境優美,手頭上有個幾十萬完全可以建個好房,再買輛車,生活過的不要太瀟灑,但是大多數人在農村建房,因為沒有施工圖紙,建起來的房子都是千篇一律,土里土氣,下面小編就給大家帶來6款農村別墅圖紙,最高造價只要20萬,你確定不了解一下嗎? 農村別墅一: 基本信息 占地尺寸:12X12.5米 占地面積:140平方米 建筑面積:260平方米 結構類型:磚混結構 主體造價:20萬左右
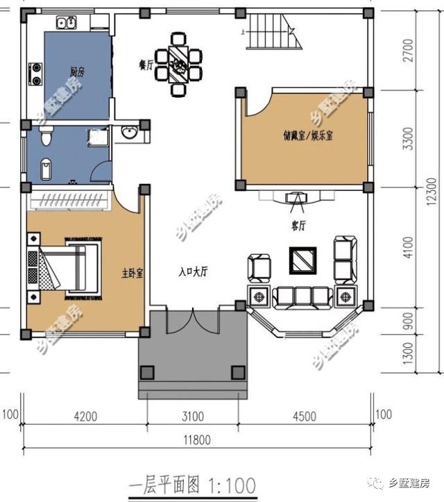
一層設有門廳、客廳、臥室、儲藏室/娛樂室、餐廳、廚房、衛生間。進門處帶有門廳,左手邊的臥室門外就是衛生間,適合老人居住,客廳的一個飄窗,可以擺放桌椅,也是聊天的好地方,儲藏室還是娛樂室這個主要看你們自己。 二層設有客廳、陽臺、3臥室、活動室、衣帽間、2衛生間。
農村別墅二: 基本信息 占地尺寸:10.9X10.8米 占地面積:93.52平方米 建筑面積:177.98平方米 結構類型:磚混結構 主體造價:14萬左右
一層設有客廳、餐廳、廚房、衛生間、臥室。那一塊空缺的地方,可以設為一個涼亭,也可以變為一個開放式車庫。 二層設有休閑區、3臥室、衛生間、露臺。休閑區可以自行設計,書房也行,茶室也行,露臺位置較大,擺放一點綠植,還是很美的。
農村別墅三: 基本信息 占地尺寸:13.4X11.1米 占地面積:142.46平方米 建筑面積:257.91平方米 結構類型:磚混結構 主體造價:20萬左右
一層設有玄關、客廳、2臥室、2衛生間、廚房、餐廳。外面兩個大花壇真的是很好的,里面的廚房內設后門,這點農村也是經常有的。 二層設有3臥室、書房、客廳、2洗手間、陽臺、露臺。
農村別墅四: 基本信息 占地尺寸:10.5X10.7米 占地面積:107平方米 建筑面積:214.1平方米 結構類型:磚混結構 主體造價:18萬
一層設有玄關、客廳、2臥室、廚房、餐廳、衛生間。衛生間采用干濕分離,餐廳與廚房相鄰,客廳的空間很大,布局很合理。 二層設有客廳、3臥室、書房、衛生間。最簡潔的布局,以臥室為主。
農村別墅五: 基本信息 占地尺寸:11.4X10.3米 占地面積:117平方米 建筑面積:234.8平方米 結構類型:磚混結構 主體造價:19萬左右
一層設有客廳、臥室、廚房、餐廳、衛生間。地基墊高,加了一個樓梯的成分,給這棟別墅給加分,長過道,放些綠植,凈化空氣,也綠化了環境。 二層設有客廳、3臥室、書房、衛生間、陽臺。客廳連著陽臺,看電視累了,可不得去陽臺上望望天空嘛,舒緩下眼睛。
農村別墅六: 基本信息 占地尺寸:11.5X12.3米 占地面積:137.86平方米 建筑面積:256.9平方米 結構類型:磚混結構 主體造價:20萬左右
一層設有客廳、2臥室、衛生間、餐廳、廚房。進門處的玄關自己隔斷,兩間臥間都在衛生間旁邊,很方便。 二層設有客廳、4臥室、3陽臺、會客廳。既然有客廳了,可以把會客廳改為茶室,這樣不僅高大上,而且很有韻味,四間室內分布很有規律。
你們有喜歡的款嗎? 圖紙之家-專注農村別墅/自建房設計18年,集合國內200余位經驗豐富的設計師,被評為口碑最好的農村建筑設計公司! |

實用型農村120平米二層樓房設計圖,小巧美觀實用
占地:120平方米
農村60萬別墅款式設計圖及外觀效果圖,客廳中空
占地:150平方米
面寬8米農村二間二層小別墅設計方案,施工簡單造價低
占地:73.77平方米
二層美式花園洋房設計圖,帶堂屋戶型,外觀簡直美爆了
占地:159.32平方米
農村二層半樓房效果圖及全套設計圖紙,自建房簡單實用
占地:121平方米
農村二層小樓的設計圖紙,整體外觀凹凸有致,紅色的坡面屋頂
占地:180平方米
20萬左右普通農村房子設計圖,二層簡約小別墅
占地:140平方米
8萬元二層農村房子圖片及設計圖,簡易二層小樓,占地50平米
占地:50平方米
農村二層別墅設計圖,帶外觀效果圖,兄弟自建推薦
占地:多種戶型
小型雙拼一層平房設計圖,外觀古樸
占地:100平方米
歐式風格三層別墅建筑設計圖,復式樓中樓結構
占地:138平方米
農村蓋平房設計大全圖,鄉下建房一層戶型圖及效果圖
占地:160平方米
農村四間兩層別墅房屋設計圖,含外觀圖片
占地:160平方米
140平米二層半帶露臺別墅圖片及圖紙,戶型極佳
占地:140平方米
中式四合院農村自建房設計圖,白墻黛瓦,四水歸堂
占地:137.72平方米
農村小洋樓設計圖及效果圖,二層樓房設計圖
占地:120平方米
農村一層中式三合院別墅設計圖,戶型經典實用,19米乘15米
占地:243.21平方米
自建一層農村別墅圖,經濟實用新選擇,建房必備參考戶型!
占地:142.88平方米
面寬8米多小開間三層農村別墅設計圖,占地不足百平
占地:95.21
150平米田園風格二層別墅設計圖紙,沉穩大氣有內涵
占地:150平方米
推薦:10套新農村自建房設計圖,2026年最新設計
閱讀次數:4825737次
100套鄉村別墅圖片大全,2026年最新設計
閱讀次數:2492203次
6款農村蓋一層平房的設計圖,10萬元就能建起來
閱讀次數:1852637次
這11個一層農村自建房別墅火爆了朋友圈!我最喜歡戶型十!你呢
閱讀次數:750268次
農村6萬元建一層小別墅圖,你敢相信嗎
農村5萬塊就能自建房,6套普通房子設計圖分享,你沒看錯!
閱讀次數:419410次
8套農村漂亮三間平房圖片,非常適合在農村修建!
閱讀次數:411197次
農村自建房化糞池怎么做?附方案及施工過程
閱讀次數:391783次
農村一層三間平房設計圖,告別土氣養老房,讓人忍不住點贊
閱讀次數:350581次
新農村二層樓房圖片造價12萬,挑一套回家建房吧!
閱讀次數:349126次
