
|
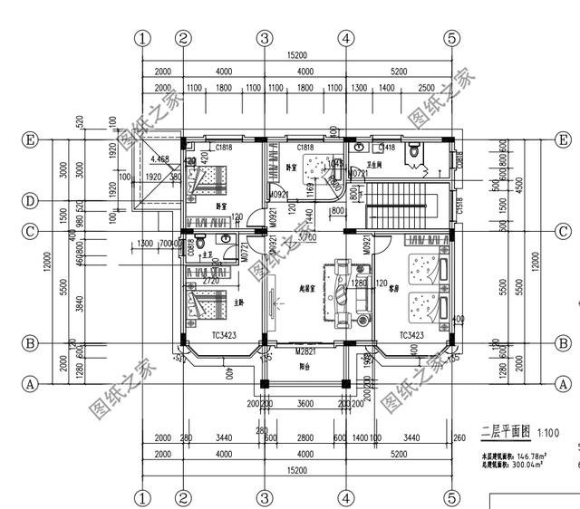
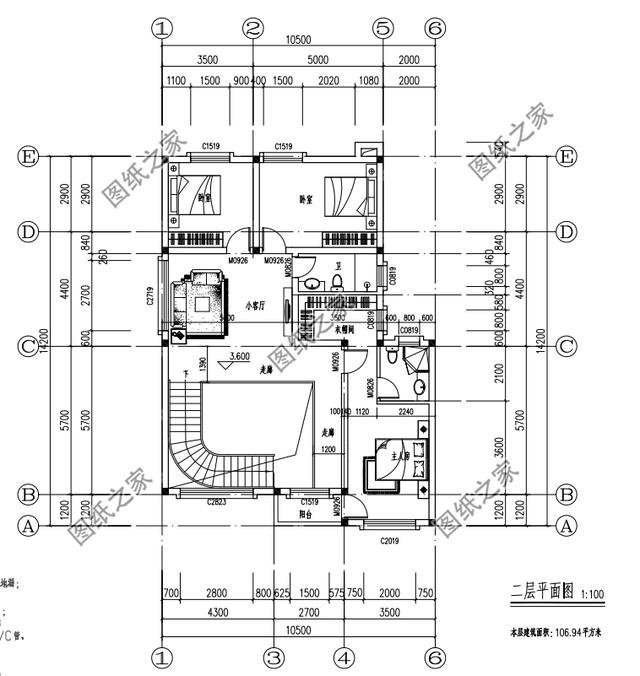
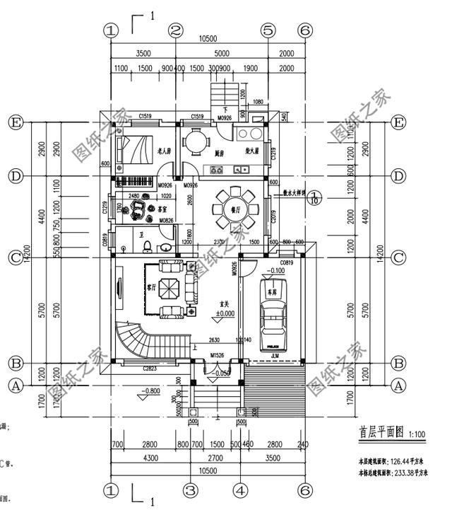
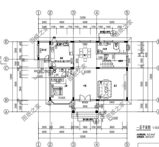
現在農村人建房,大多都是因為辛辛苦賺了錢,回農村建一棟房子,來改善一下自己住的環境。大多數都是和辛勞大半輩子的老父母生活在一起,所以需要在建設時留柴火房,讓父母居住生活舒適。 今天介紹三款帶柴火房的農村二層別墅,看看有沒有你喜歡的? 第一款:新中式二層別墅設計圖以及戶型圖,帶車庫設計![]() 鄉村帶車庫的二層四間別墅建筑結構設計圖,合理布局,力求打造最完美的家。別墅外觀現代時尚,簡約雅致,整體感覺明朗歡快。周末歸家,放下城里的喧囂與忙碌的身心,帶給居住者干凈、素凈的身心感受。內部帶車庫、獨立廚房。白色的面磚搭配褐色涂料恰到好處;斜屋頂蓋上灰色屋面瓦,增添一抹亮點;大門前配上方形,十分大氣。開放式車庫,進門設有玄關,作為進出別墅的公共過渡區域,與客廳相連通,空間有余,獨立廚房與餐廳相連,用推拉門隔開,提供無油煙的良好就餐環境;二層小客廳設置在樓層中心位置,與陽臺直接相連,作為家庭活動的公共區域,必不可缺。 占地面積:14.76m*10.06m,139.85平方米左右 建筑高度:9米(含屋頂) 設計功能: 一層戶型:玄關、客廳、廚房兼柴火房、餐廳、洗衣房、臥室x2、衛生間、車庫 二層戶型:小客廳、儲藏室、臥室x3、陽臺、露臺 ![]() ![]() 第二款:簡歐式二層別墅設計圖以及戶型圖![]() ![]() ![]() 帶車庫簡約二層小別墅房屋設計圖紙,占地120平米,造價20萬左右,彎彎的樓梯打破傳統樓梯的束縛,是室內更時尚美觀。為老家的父母建個舒適淡雅的經濟別墅,可以回鄉自居,亦可孝敬父母。 占地面積:10.5m*14.2m,126平方米左右 建筑層高:二層 建筑高度:9.4米(含屋頂) 功能: 一層戶型:客廳、餐廳、廚房、茶室、老人房、衛生間、車庫 二層戶型:客廳上空、小客廳,主人套間(含衛生間、衣帽間、陽臺)、臥室×2、衛生間 ![]() ![]() 第三款:農村新式二層別墅設計圖以及戶型圖,落地窗設計![]() ![]() ![]() 二層農村房子圖片及全套施工圖紙,占地150平面左右,面積不算大,室內的布局很緊湊,外觀在農村的話顯得低調不張揚,對周邊環境基本上沒有過高的要求 占地面積:15.2m*12.0m,153平方米左右 建筑層高:二層 建筑高度:9.8米(含屋頂) 功能: 一層戶型:客廳、餐廳、廚房、柴火房、衛生間、主臥(帶衛生間) 二層戶型:起居室、主臥(帶衛生間)、臥室x3、衛生間、陽臺 ![]() ![]() 以上就是小編推薦的帶柴火房二層別墅設計圖,可以分享給有需要的朋友哦!本文由圖紙之家原創,歡迎關注,帶你一起長知識!
圖紙之家-專注農村別墅/自建房設計18年,集合國內200余位經驗豐富的設計師,被評為口碑最好的農村建筑設計公司! |

現代風格三層別墅設計圖紙和效果圖,農村自建精選
占地:129平方米
小占地三層現代時尚風別墅設計圖,平屋頂占地不足100平
占地:98.35平方米
小戶型兄弟雙拼別墅房屋設計圖,帶外觀效果圖
占地:150平方米
實用農村10萬一層小別墅戶型圖及圖紙,全套施工圖
占地:多種面積
鄉村三層別墅設計圖紙,帶屋頂花園(含效果圖)
占地:150平方米
農村四層復式房屋設計圖紙,占地105平方米預算35萬左右
占地:105平方米
自建二層獨棟別墅建筑施工圖,含效果圖和全套設計圖紙
占地:198.72平方米
農村四間兩層別墅房屋設計圖,含外觀圖片
占地:160平方米
農村中式二層4開間別墅圖紙設計方案圖,帶車庫戶型
占地:198平方米
歐式三層樓房設計圖,客廳中空,旋轉樓梯,帶土灶房
占地:206平方米
農村二層帶車庫樓房設計圖,帶外觀效果圖片
占地:125平方米
140平米平屋頂二層新農村自建房設計圖,極簡主義設計 ,實用優
占地:143平方米
現代風格四合院別墅設計圖,回老家建一棟吧
占地:177.89平方米
農村三間三層半別墅設計圖,舒適寬敞時尚經濟,居住生活方便舒
占地:168.29平方米
155平方米二層別墅房屋設計圖,帶獨立車庫
占地:155平方米
私家二層農村自建房設計圖及效果圖,造價20萬左右
占地:125平方米
120平農村三層自建房屋設計圖,旋轉樓梯復式別墅戶型方案
占地:119.23平方米
精致小巧新農村二層別墅設計圖紙,占地90平米左右,造價15萬左
占地:90平方米
170平方米歐式農村兩層小別墅設計圖紙帶外觀圖,精致好看
占地:多種戶型
經典美式二層小別墅設計圖,回鄉建房不可不看的經典之作
占地:109.33平方米
推薦:10套新農村自建房設計圖,2026年最新設計
閱讀次數:4825737次
100套鄉村別墅圖片大全,2026年最新設計
閱讀次數:2492203次
6款農村蓋一層平房的設計圖,10萬元就能建起來
閱讀次數:1852637次
這11個一層農村自建房別墅火爆了朋友圈!我最喜歡戶型十!你呢
閱讀次數:750268次
農村6萬元建一層小別墅圖,你敢相信嗎
閱讀次數:567686次
農村5萬塊就能自建房,6套普通房子設計圖分享,你沒看錯!
閱讀次數:419410次
8套農村漂亮三間平房圖片,非常適合在農村修建!
閱讀次數:411197次
農村自建房化糞池怎么做?附方案及施工過程
閱讀次數:391783次
農村一層三間平房設計圖,告別土氣養老房,讓人忍不住點贊
閱讀次數:350581次
新農村二層樓房圖片造價12萬,挑一套回家建房吧!
閱讀次數:349126次
