
|
大多數從農村到城市的人,心里永遠有著家鄉觀念,人常常會說,人不親但土親水親,真的是這樣子。當人的年紀稍大以后,會有一種落葉歸根的感覺。尤其是現在的家鄉,不論是從宏觀經濟,還是微觀形態上看,發展的都很不錯,所以選擇回村里,其實是在選擇自己最后的歸屬。你奮斗了一輩子余下的閑錢,回老家蓋個別墅,將原先破舊的老房子拆除新建,不也是為老祖先修建非常有意義的故居嗎?鄉親們也知道曾經這里居住的老人們后繼有人嗎?無論是為了先人,還是為自己的晚年養老,真的是兩全齊美的好事。 8套130平米二層農村自建房設計案例,平屋頂坡屋頂都有,哪一款能夠吸你眼球呢? 01
該戶型外觀簡約獨特,文化石裝飾一層外墻既美觀又耐臟,二層陽臺寬敞,不僅可以作為景觀臺,還能晾曬衣物,靈活性很強,內部功能設計合理,適合農村自建房。 圖紙詳情 層數:二層 結構形式:磚混結構 主體造價:15-20萬 開間:11.5米 進深:11.1米(不含門柱10.9米) 占地面積:129.18平方米 總建筑面積:220.89平方米 平面圖展示:
一層平面圖 一 層:門廳、客廳、餐廳、廚房、臥室x2、衛生間 ;
二層平面圖 二 層:小客廳、臥室x3、陽臺、衛生間 02
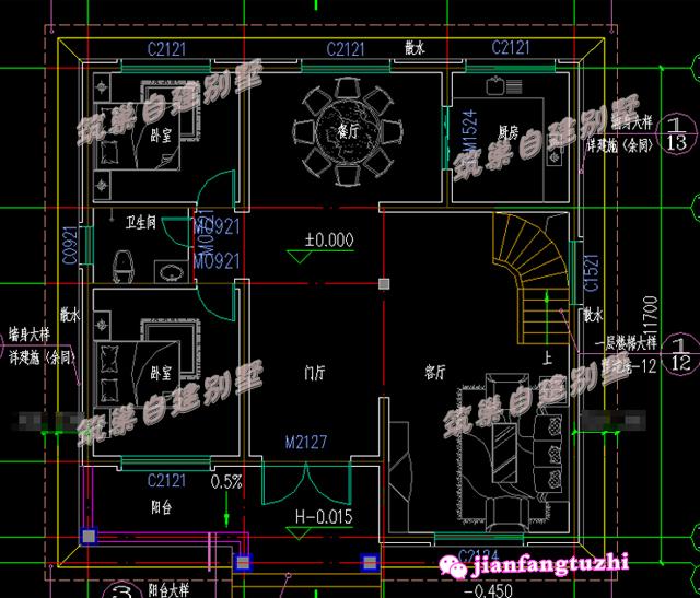
本戶型外觀造型簡單別致,主臥室帶有衣帽間衛生間書房及陽臺,更能體現個人生活的私密性,富有生活氣息。 戶型基本信息 層數:二層 結構形式:磚混結構 主體造價:17-22萬 開間:12.5米 進深:11米 占地面積:131.88平方米 總建筑面積:258.78平方米 平面圖展示:
一層平面圖 一 層:玄關、餐廳、客廳、廚房、雜物間、2間臥室、衛生間
二層平面圖 二 層:主臥室( 帶書房、帶露臺、帶衣帽間、帶衛生間)、臥室(帶露臺)、臥室、衛生間 03
本戶型設計美觀大氣,主體采用黃色的外墻,搭配褐色文化石、紅色面磚、藍色坡屋頂、以及褐色的鐵藝欄桿、窗套、更顯尊貴。有拱形入戶門廊、雙露臺、車庫、二層的臥室功能多樣,舒適方便。 圖紙屬性 層數: 二層 結構形式: 框架結構 主體造價: 23-28萬 開間: 13米 進深: 11.1米 占地面積: 134.61平方米 總建筑面積: 261.34平方米 平面布局圖:
一層平面圖 一 層: 車庫、過道、客廳、廚房、餐廳、臥室(帶衛生間)、公衛
二層平面圖 二 層: 主臥(帶衛生間、書房、露臺)、次臥(帶露臺)、次臥(帶衛生間)、公衛、書房 04
本套二層房屋戶型,外觀簡約優雅,一層客廳挑空,窗戶為三面落地窗設計,美觀且實用,使室內客廳顯得更加寬敞明亮;二樓主臥帶有衣帽間、內衛和露臺,符合當今現代化生活環境,使用戶居住舒適、私密;二樓的露臺是增加用戶的空間利用率,從內部結構看,該戶型功能設計合理,布局緊湊,實用性較強,非常適合農村自建房。 圖紙屬性 層數:二層 結構形式:磚混結構 主體造價:17-20萬 開間:10.8米 進深:12.2米 占地面積:130.84平方米 總建筑面積:256.88平方米 功能設計及平面布局圖:
一層平面圖 一 層:門廳、挑空客廳、餐廳、廚房、臥室、衛生間、車庫
二層平面圖 二 層:主臥室(帶內衛、衣帽間、露臺)、臥室×2、客廳、客廳上空、衛生間 05
本戶型臥室尺寸大小適宜,更多的為住戶居住的舒適和實用性考慮,更能為需要的人營造一個溫馨舒適的家。 圖紙詳情 層數:二層 結構形式:磚混結構 主體造價:16-18萬 開間:11米 進深:12.3米 占地面積:133平方米 總建筑面積:238平方米 平面圖:
一層平面圖 一 層:玄關、客廳、餐廳、廚房、2間臥室、儲藏室、衛生間、
二層平面圖 二 層:小客廳、臥室(帶衛生間)、2間臥室、休息區(帶陽臺)、衛生間 06
外觀非常質樸的平屋頂設計方案,入戶設計檐廊,二層設計陽臺,屋頂還能作為活動和晾曬的空間,非常值。 戶型基本信息 層數:二層 主體造價:22-25萬 結構形式:磚混結構 開間:12米 進深:10米 占地面積:129平方米 總建筑面積:253.16平方米 平面布局圖:
一層平面圖 一層:堂屋、客廳、餐廳、廚房、臥室(帶內衛)、臥室、雜物房、衛生間。
二層平面圖 二層:客廳、臥室(帶內衛)、臥室x3、陽臺、衛生間。 07
本戶型占地面積130平方米左右,采用磚混結構,外觀設計方正,采用白色為主色調,溫馨自然,大露臺,功能多樣化,臥室布局合理,屋頂上還有娛樂區和衛生間,住戶可享受舒服自在的住房環境。 戶型基本信息 層數: 二層 結構形式: 磚混結構 主體造價: 20-25萬 開間:12米 進深:9米(含門柱進深10.6米) 占地面積:133.78平方米 總建筑面積:282.18平方米 平面圖展示:
一層平面圖 一 層:客廳、廚房、餐廳、臥室x2(帶陽臺)、衛生間
二層平面圖 二 層:小客廳、臥室(露臺)、臥室(帶陽臺)、臥室(帶露臺)、衛生間 08
外觀設計方正,四周都設計窗戶,采光及通風極好,二層上的大露臺可用于晾曬農作物等,非常實用,臥室布局合理,套房功能豐富,是個人生活居住的理想空間。 圖紙詳情 層數: 二層 結構形式: 磚混結構 主體造價: 18-23萬 開間:11米 進深:12米 占地面積:127.07平方米 總建筑面積:252.05平方米
一層平面圖 一 層:玄關、客廳、廚房、餐廳、棋牌室、臥室(帶內衛)、雜物間、衛生間
二層平面圖 二 層:休息廳(帶陽臺)、臥室(帶內衛、書房)、臥室(帶內衛)、臥室(帶衣帽間、書房、內衛) 圖紙之家-專注農村別墅/自建房設計18年,集合國內200余位經驗豐富的設計師,被評為口碑最好的農村建筑設計公司! |

一層農村三合院別墅設計方案圖,秀氣優美,大氣又實用
占地:191.18平方米
簡單平房農村自建一層別墅設計圖,時尚大氣,造價經濟
占地:166平方米
農村三間一層別墅設計圖,經濟實用還好看
占地:139.56平方米
新中式農村三層房屋效果圖及施工圖,140平方米左右
占地:140平方米
農村實用三層樓房圖片,占地140平米左右,客廳中空
占地:140平方米
農村三層中式仿古別墅設計圖紙,中國風自建房戶型
占地:158.64平方米
新中式三層豪華大氣三層別墅自建房屋設計圖,帶地下室,土豪專
占地:194平方米
農村17萬元一層自建別墅設計圖,外觀簡潔,戶型方正
占地:163平方米
大氣農村一層自建別墅方案,絕對讓人羨慕的“平房”
占地:158.39平方米
農村宅基地建房二層別墅設計圖,適合回鄉自建!
占地:137.5平方米
農村15萬元二層小樓圖,經濟實用小別墅設計圖
占地:105平方米
90平農村自建房二層新款,占地不大但很實用,
占地:88平方米
13米開間的獨棟經濟型二層小別墅房屋設計圖,現代簡約
占地:150.39平方米
大氣農村三層歐式雙拼別墅全套施工圖紙,帶堂屋設計,外觀圖片
占地:196.056平方米
農村五開間大平層設計圖,主體15萬就能建。
占地:182.43平方米
130平方米別墅設計圖紙(含外觀效果圖,)三層別墅設計方案
占地:135平方米
給爸媽建養老房?100 平人字坡一層房太合適!簡約低調還實用
占地:102.6平方米
面寬20米大氣的農村二層別墅設計圖,戶型帶車庫和土灶房設計
占地:250.85平方米
一層農村自建房設計圖,造型美觀大氣,占地150平
占地:153.415平方米
新農村歐式時尚二層別墅設計圖紙,120平方米自建房
占地:多種戶型
推薦:10套新農村自建房設計圖,2026年最新設計
閱讀次數:4825737次
100套鄉村別墅圖片大全,2026年最新設計
閱讀次數:2492203次
6款農村蓋一層平房的設計圖,10萬元就能建起來
閱讀次數:1852637次
這11個一層農村自建房別墅火爆了朋友圈!我最喜歡戶型十!你呢
閱讀次數:750268次
農村6萬元建一層小別墅圖,你敢相信嗎
閱讀次數:567686次
農村5萬塊就能自建房,6套普通房子設計圖分享,你沒看錯!
閱讀次數:419410次
8套農村漂亮三間平房圖片,非常適合在農村修建!
閱讀次數:411197次
農村自建房化糞池怎么做?附方案及施工過程
閱讀次數:391783次
農村一層三間平房設計圖,告別土氣養老房,讓人忍不住點贊
閱讀次數:350581次
新農村二層樓房圖片造價12萬,挑一套回家建房吧!
閱讀次數:349126次
