
|
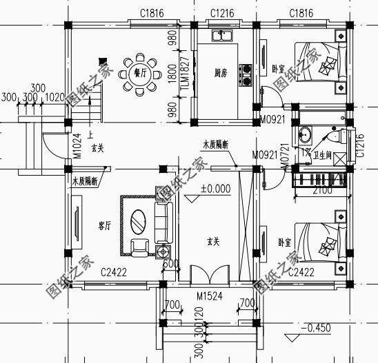
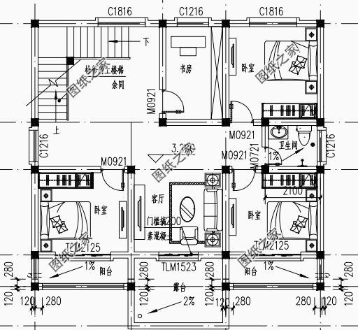
第一款:農村最漂亮二層歐式別墅設計圖,面寬16.5米,帶車庫![]() 圖紙介紹:農村最漂亮二層歐式別墅設計圖,面寬16.5米,帶車庫,宅基地小不建車庫也可以的,這款漂亮的二層歐式別墅,設計太贊了!大氣典雅的裝飾,精美華麗的造型,以及別具一格的色彩搭配深受農村朋友的喜愛。 占地面積:16.56m*12.36m,180.366平方米; 建筑層高:二層; 建筑高度:11.398米(含屋頂); 設計功能: 一層戶型:客廳、廚房、餐廳、臥室(帶衛生間)、臥室、衛生間; 二層戶型:小客廳、棋牌室、臥室(帶衛生間)x2、臥室x3、衛生間、露臺、陽臺; ![]() ![]() 第二款:鄉下120平米二層樓房設計圖 |

網紅農村一層小別墅設計圖,建一層的必看
占地:多戶型可選
農村13萬元二層小樓圖,簡單易建,造價低
占地:110平方米
簡歐風格二層別墅設計圖,經典不過時大氣時尚,漂亮的不像話!
占地:205.68平方米
新農村三層房屋設計圖紙(含效果圖),農村小別墅圖紙推薦
占地:116.15平方米
經濟實用二層樓房設計圖紙,功能布局多,12×11米
占地:130平方米
新農村兩層樓房設計圖,占地110平米,戶型簡單實用
占地:110平方米
歐式兩層別墅樓房設計圖紙施工方案,高端豪華外觀圖片
占地:138平方米
120平方米新農村四層別墅設計圖紙12X10米50萬以內
占地:120平方米
160平方米新農村自建二層樓房設計圖紙及效果圖,15x11米
占地:160平方米
120平方米農村四層別墅施工設計圖紙及效果圖
占地:120平方米
7字型一層半農村別墅設計圖,美觀舒適,買了別墅的都會羨慕你
占地:229.14平方米
50萬左右農村三層別墅設計圖紙,帶大露臺,外觀大氣
占地:150平方米
人氣頗高的三層新中式別墅方案,五種戶型,五種尺寸
占地:120-165平方米
農村一層房屋設計圖,自建一層房子圖紙推薦
占地:200平方米
200平農村二層別墅設計圖,外觀現代簡約
占地:204平方米
農村實用三層樓房圖片,占地140平米左右,客廳中空
占地:140平方米
一層平屋頂自建房圖,簡單而舒適,既省錢不說還不愁沒地曬糧食
占地:106平方米
復式三層帶車庫簡歐小別墅設計圖,農村三層房屋設計圖
占地:126平方米
新農村歐式時尚二層別墅設計圖紙,120平方米自建房
占地:多種戶型
小開間三層新中式小別墅設計圖,外觀圖優雅大氣,讓人心動!
占地:103.18平方米
推薦:10套新農村自建房設計圖,2026年最新設計
閱讀次數:4825737次
100套鄉村別墅圖片大全,2026年最新設計
閱讀次數:2492203次
6款農村蓋一層平房的設計圖,10萬元就能建起來
閱讀次數:1852637次
這11個一層農村自建房別墅火爆了朋友圈!我最喜歡戶型十!你呢
閱讀次數:750268次
農村6萬元建一層小別墅圖,你敢相信嗎
閱讀次數:567686次
農村5萬塊就能自建房,6套普通房子設計圖分享,你沒看錯!
閱讀次數:419410次
8套農村漂亮三間平房圖片,非常適合在農村修建!
閱讀次數:411197次
農村自建房化糞池怎么做?附方案及施工過程
閱讀次數:391783次
農村一層三間平房設計圖,告別土氣養老房,讓人忍不住點贊
閱讀次數:350581次
新農村二層樓房圖片造價12萬,挑一套回家建房吧!
閱讀次數:349126次
