
|
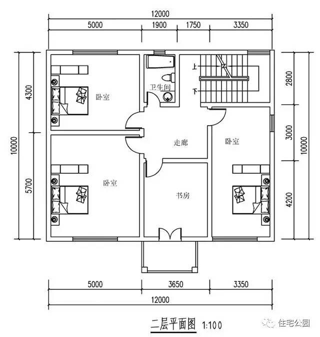
這是網友在圖紙之家上的一個投稿戶型,此戶型開間12米,進深10米,占地面積125.34平方米,建筑面積386.2平方米。戶型方正,南北通透,還有讓人羨慕的小院。
平面布局圖: 客廳很大,生活寬敞、活動空間大。廚房、餐廳大小合理。臥室出門就是餐廳,方便居室的主人就餐。
此戶型可以說是個很實用的戶型,它一共有7個臥室,除了一層的一個外,二三層都各有三個,并且戶型一樣,還各配有一個書房。看來房主家也是一個大家庭呀!
你的家鄉有這樣的小別墅嗎? 圖紙之家-專注農村別墅/自建房設計18年,集合國內200余位經驗豐富的設計師,被評為口碑最好的農村建筑設計公司! |

漂亮時尚二層樓房設計圖紙,經濟實用,戶型通透
占地:150平方米
平屋頂二層自建房帶商鋪別墅設計圖紙及外觀圖
占地:225平方米
適合兄弟自建的二層雙拼別墅設計方案,帶效果圖
占地:180平方米
適合小面寬宅基地的兩開間別墅設計圖,8.5米乘13.5米
占地:107.66平方米
四開間一層自建房設計圖,四臥二廳+棋牌室+書房
占地:181.29平方米
農村四層樓房設計圖,復式結構、客廳中空,外觀效果圖+全套圖
占地:130平方米
美爆的三層經典復式別墅設計圖紙及效果圖,建好更漂亮
占地:130平方米左右
農村自建二層樓房設計圖及效果圖,二層房屋圖推薦
占地:105平方米
好看又簡單的二層小樓設計圖,農村自建20萬元左右
占地:130平方米
歐式新農村自建三層建筑施工設計圖紙及效果圖大全
占地:106平方米
11.5米乘 11.5米自建房:兩層設計 + 戶型方正,誰看誰心動
占地:128.77平方米
70平農村小戶型二層別墅設計圖,小宅基地的福音
占地:70平方米
114平方米農村四層別墅設計圖紙及效果圖,11X11米
占地:114平方米
歐式漂亮農村三層自建房設計圖紙,兩個戶型方案可選
占地:多戶型可選
一層4間自建平房別墅及全套戶型圖紙,占地160平左右,簡單實用
占地:162.13平方米
二層精美偏法式風格別墅設計圖,不但顏值高,品質還高
占地:154.17平方米
農村小別墅一層設計圖紙,全套施工圖兩款戶型可選
占地:多種戶型可選
帶車庫農村二層樓房設計圖,外觀漂亮,精致
占地:154平方米
農村超級好看的現代風格兩層小樓圖,清新優雅
占地:多種戶型
豪華大氣三層農村自建房設計圖,經典大氣,百看不厭,新中式風
占地:141.75平方米
推薦:10套新農村自建房設計圖,2026年最新設計
閱讀次數:4825737次
100套鄉村別墅圖片大全,2026年最新設計
閱讀次數:2492203次
6款農村蓋一層平房的設計圖,10萬元就能建起來
閱讀次數:1852637次
這11個一層農村自建房別墅火爆了朋友圈!我最喜歡戶型十!你呢
閱讀次數:750268次
農村6萬元建一層小別墅圖,你敢相信嗎
閱讀次數:567686次
農村5萬塊就能自建房,6套普通房子設計圖分享,你沒看錯!
閱讀次數:419410次
8套農村漂亮三間平房圖片,非常適合在農村修建!
閱讀次數:411197次
農村自建房化糞池怎么做?附方案及施工過程
閱讀次數:391783次
農村一層三間平房設計圖,告別土氣養老房,讓人忍不住點贊
閱讀次數:350581次
新農村二層樓房圖片造價12萬,挑一套回家建房吧!
閱讀次數:349126次
