
|
要說什么樣的別墅最時髦,當時是現代風格的別墅啦。尤其是現在的年輕人,不想再城里買房,就回老家建一棟現代別墅,比在城里還時尚。今天小編給大家帶來了三款現代最美二層別墅,外觀造型非常時尚,每一款都非常精致,這樣的別墅誰看了不喜歡?而且在村里建房子成本不是很高,多余的錢還可以好好裝修一下室內,豈不是很好。
款式一:占地110平方米新農村現代二層別墅設計圖,主體造價15萬
圖紙介紹:這款別墅占地面積110平米,戶型方正不大不小,別墅的外觀主要用米黃色和乳白色面磚裝飾,讓人一眼就能感受到別墅的豪華程度,二層陽臺處設計有葫蘆蹲,起到了很好的防護作用,同時也美觀,紅色屋檐搭配十分喜慶。 占地面積:11.3m*10m,110平方米左右; 建筑層高:二層; 建筑高度:9.9米(含屋頂); 設計功能: 一層戶型:客廳、餐廳 、廚房、臥室、儲藏室、衛生間; 二層戶型:家庭室、臥室x4、書房、衛生間、陽臺; ![]() ![]() ![]() ![]() 款式二:農村現代時尚二層樓房設計圖,占地130平方米,平屋頂設計
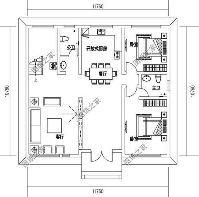
圖紙介紹:這款別墅平屋頂設計,現代風格,內部戶型十分合理,由于是平屋頂設計,屋頂的使用范圍很廣,為日常生活提供了便利。 占地面積:11.76m*10.76m,130平方米左右; 建筑層高:二層; 建筑高度:10米(含屋頂); 設計功能: 一層戶型:客廳、廚房、餐廳、臥室(帶衛生間)、臥室、衛生間; 二層戶型:客廳上空、起居室、臥室(帶衛生間)、臥室、衣帽間儲物間、衛生間; ![]() ![]() ![]() ![]() 款式三:占地145平方米現代二層自建樓房設計圖,帶車庫設計
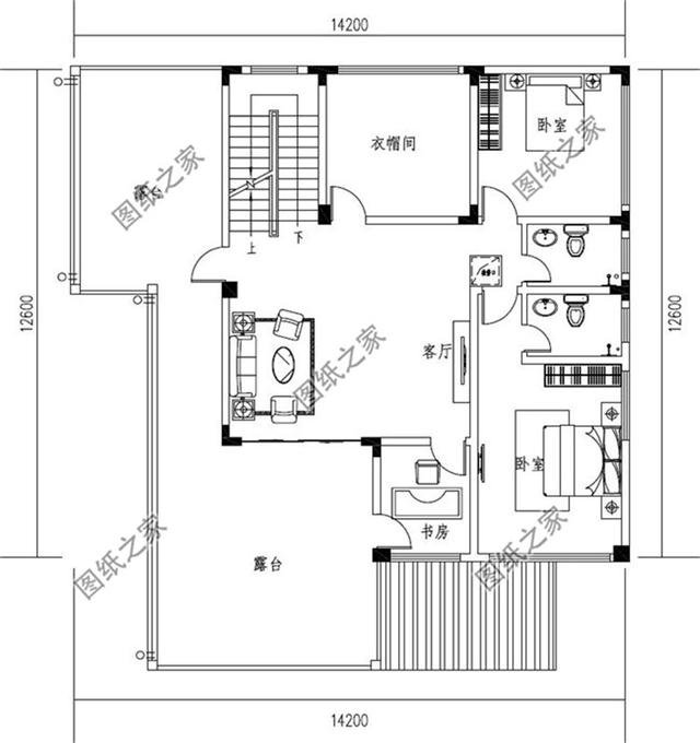
圖紙介紹:這款別墅經濟實用,帶車庫設計,主體造價都在30萬以內,功能布局合理,人車分流,潔凈分開,空間利用率高,適用于大部分農村建房使用。 占地面積:14.2m*12.6m,145平方米左右; 建筑層高:二層; 建筑高度:9.95米(含屋頂); 設計功能: 一層戶型:過廳、客廳、廚房、餐廳、洗衣間、老人房、臥室、衛生間x2、車庫; 二層戶型:客廳、書房、臥室(帶衛生間)、臥室、衣帽間、衛生間、露臺; ![]() ![]() ![]() ![]() 不知道這三款別墅設計圖,你最喜歡哪一套呢?
圖紙之家-專注農村別墅/自建房設計18年,集合國內200余位經驗豐富的設計師,被評為口碑最好的農村建筑設計公司! |

小戶型經濟農村雙拼自建房別墅設計圖紙,二層簡約造價低
占地:138平方米
中式二層對稱別墅設計圖,帶地下室設計,整體造價經濟
占地:171.6平方米
最美建筑四合院別墅設計方案,大氣經典,開間19米
占地:168.61平方米
17X12米三層雙拼別墅自建房設計圖,歐式風格,戶型方正
占地:190平方米
別致漂亮二層別墅設計圖紙,占地160平米左右,精致的外觀,讓人
占地:160平方米
帶屋頂平臺的一層農村小別墅圖,有閣樓有露臺
占地:152平方米
2026最火的現代別墅設計圖農村三層戶型,帶地下室
占地:119.79平方米
可以傳家的新中式二層別墅,經典耐看,再過幾十年也不過時
占地:146.81平方米
美爆的三層經典復式別墅設計圖紙及效果圖,建好更漂亮
占地:130平方米左右
10萬內2層小洋樓設計圖,平屋頂,戶型設計合理
占地:90平方米
自建一層農村別墅圖,經濟實用新選擇,建房必備參考戶型!
占地:142.88平方米
二層復式小別墅設計圖,樓中樓結構,外觀漂亮,簡單
占地:120平方米
農村大戶型中式二層四合院別墅設計圖含外觀效果圖,戶型經典、
占地:464平方米
簡潔大氣140平方三層房子設計圖,帶車庫戶型極佳
占地:140平方米
260平方米兩層帶車庫四合院房屋設計圖紙及效果圖
占地:260平方米
農村18萬元二層小樓圖,占地120平面,戶型緊湊合理
占地:120平方米
農村16萬一層平房小院設計圖,左右對稱布局好,南北方都能建
占地:195.9平方米
爆款120平米三層農村別墅房屋設計圖,室內布局功能齊全,色彩搭
占地:120平方米
簡歐風格三層別墅設計圖,外觀看起來很高端、上檔次
占地:139平方米
18×15米新中式高檔農村三層別墅設計圖,低調奢華又實用
占地:195.91平方米
推薦:10套新農村自建房設計圖,2026年最新設計
閱讀次數:4825737次
100套鄉村別墅圖片大全,2026年最新設計
閱讀次數:2492203次
6款農村蓋一層平房的設計圖,10萬元就能建起來
閱讀次數:1852637次
這11個一層農村自建房別墅火爆了朋友圈!我最喜歡戶型十!你呢
閱讀次數:750268次
農村6萬元建一層小別墅圖,你敢相信嗎
閱讀次數:567686次
農村5萬塊就能自建房,6套普通房子設計圖分享,你沒看錯!
閱讀次數:419410次
8套農村漂亮三間平房圖片,非常適合在農村修建!
閱讀次數:411197次
農村自建房化糞池怎么做?附方案及施工過程
閱讀次數:391783次
農村一層三間平房設計圖,告別土氣養老房,讓人忍不住點贊
閱讀次數:350581次
新農村二層樓房圖片造價12萬,挑一套回家建房吧!
閱讀次數:349126次
