
|
現在在農村建房子,一層平房越來越招人喜歡,在以前,全部都是二三層的樓房,基本上給很少見一層平房。現在為什么都建一層的呢? 因為年輕人在城里掙錢了,就想著給老家的父母改善一下居住環境,想讓父母也住著舒適的房子。所以今天小編給大家推薦四款一層平房設計圖,每一款的樣式都不同,絕對的招人喜歡,一起看看吧。
方案一:農村中式三合院設計圖,占地300平米,大戶型設計
圖紙介紹:這款別墅戶型帶堂屋,住著比別墅舒服,接地氣,尤其是老人特別喜歡。建筑為三合院形式,整體配色淡雅,以白墻展現主體雕塑感。搭配有木頭柱子,整體給人的感覺就是古樸典雅。 占地面積:20.8m*20.7m,300平方米左右; 建筑層高:一層; 建筑高度:7.11米(含屋頂); 設計功能:堂屋、客廳、餐廳、廚房、臥室(帶衛生間)×3、臥室×4、公衛、書房、儲藏室; ![]() ![]() ![]() ![]() 方案二:農村簡單實用戶型一層平房設計圖,占地238平方米,造價不到20萬
圖紙介紹:本戶型占地20x12米,外觀設計非常漂亮,配色簡單;室內布局合理實用,休閑娛樂與日常生活于一體,屋頂上有老虎窗,提高室內采光及通風。 占地面積:20m*12m,238平方米左右; 建筑層高:一層; 建筑高度:7.13米(含屋頂); 設計功能: 一層戶型:客廳、玄關、餐廳、廚房、儲藏室、娛樂室、主臥(帶衛生間)x2、臥室x3、衛生間; ![]() ![]() ![]() ![]() 方案三:農村一層獨棟平房別墅設計圖,帶閣樓設計
圖紙介紹:這款別墅帶閣樓,設計感十足,雖然只有一層,但是功能設計還是很齊全的,別墅設有4個臥室,帶有車庫,廚房餐廳在前,潔污分區,很溫馨的一個家。 占地面積:18.6m*19.2m,256平方米左右; 建筑層高:一層; 建筑高度:6.59米(含屋頂); 設計功能: 一層:客廳、餐廳、廚房、茶室、主臥(帶書房,衛生間)、臥室(帶衛生間)×2、臥室、衛生間×2; 閣樓:臥室,儲藏室; ![]() ![]() ![]() ![]() ![]() 方案四:新農村大氣一層平房設計圖,占地200平米左右,主體造價20萬
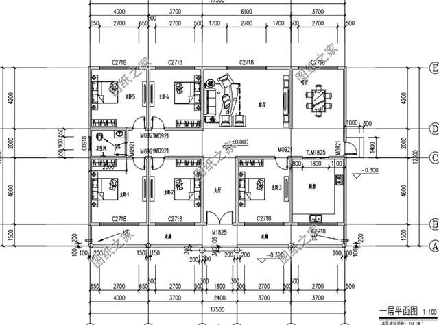
圖紙介紹:本戶型造價20萬以內,占地面積200平米左右,外觀看上去沉穩大氣,室內布局也是好的沒話說,在農村建套一層的平房,不僅住著舒服,而且造價經濟實惠。 占地面積:17.5m*12.3m,194平方米左右; 建筑層高:一層; 建筑高度:6.4米(含屋頂); 設計功能:過廳、客廳、餐廳、廚房、臥室×5、衛生間; ![]() ![]() ![]() ![]() 不知道這五款有沒有大家中意的呢?如果有,下方留言告訴小編。
圖紙之家-專注農村別墅/自建房設計18年,集合國內200余位經驗豐富的設計師,被評為口碑最好的農村建筑設計公司! |

200平農村二層別墅設計圖,外觀現代簡約
占地:204平方米
200平米二層自建房別墅設計圖,外觀漂亮布局實用
占地:207.09平方米
20萬左右農村雙拼別墅住宅設計圖,簡單小戶型設計
占地:120平方米
110平米一層小別墅設計方案,布局四室兩廳一廚兩衛
占地:110.5平方米
七字型設計新中式一層別墅設計圖,類合院風格
占地:267.3平方米
新農村兩層半小洋樓房設計圖,預算33萬左右
占地:多種戶型
135平三層農村樓房設計圖及效果圖,造價20萬左右
占地:135平方米
20萬以內二層歐式小別墅設計方案,全套施工圖+效果圖
占地:115平方米
新農村簡歐三層樓房圖片自建3層別墅施工設計圖及效果圖
占地:126平方米
豪華三層歐式雙拼別墅設計圖紙,雙拼歐式別墅如何設計看這款
占地:258.294平方米
豪華大氣農村三層別墅圖紙,帶車庫、露臺,占地200平方米左右
占地:207平方米
農村18萬元二層小樓圖,帶開放式車庫
占地:110平方米
面寬16米三層法式別墅設計圖,設計新穎別致,建成后美不勝收
占地:162.07平方米
鄉村三層別墅施工圖紙帶效果圖,田園別墅設計圖紙推薦
占地:178平方米
一層農村必蓋戶型設計方案,養老自住兩相宜,經濟實惠又耐用!
占地:150.36平方米
簡單實用的二層雙拼別墅設計圖,總占地150平米左右,雙拼房屋
占地:150平方米MB
新中式二層雙拼別墅農村自建房子設計圖紙,面寬19米
占地:240平方米左右,單
占地90平新中式經濟二層小別墅自建房設計圖,僅15萬
占地:89.3平方米
進深9米的農村自建一層養老房戶型方案,三室二廳兩衛
占地:133.2平方米
農村三層兄弟雙拼別墅設計圖及效果圖片,14X12米自建戶型
占地:154平方米
推薦:10套新農村自建房設計圖,2026年最新設計
閱讀次數:4825737次
100套鄉村別墅圖片大全,2026年最新設計
閱讀次數:2492203次
6款農村蓋一層平房的設計圖,10萬元就能建起來
閱讀次數:1852637次
這11個一層農村自建房別墅火爆了朋友圈!我最喜歡戶型十!你呢
閱讀次數:750268次
農村6萬元建一層小別墅圖,你敢相信嗎
閱讀次數:567686次
農村5萬塊就能自建房,6套普通房子設計圖分享,你沒看錯!
閱讀次數:419410次
8套農村漂亮三間平房圖片,非常適合在農村修建!
閱讀次數:411197次
農村自建房化糞池怎么做?附方案及施工過程
閱讀次數:391783次
農村一層三間平房設計圖,告別土氣養老房,讓人忍不住點贊
閱讀次數:350581次
新農村二層樓房圖片造價12萬,挑一套回家建房吧!
閱讀次數:349126次
