
|
想建房子宅基地太小怎么辦?建什么樣的比較好看?很多農村朋友問的最多的大概就是這兩個問題了吧,宅基地小不要緊,今天小編就給大家推薦三款農村二層9×11米房子設計圖,小戶型二層別墅,施工簡單造價經濟,關鍵是好看,絕對讓您看了一眼就愛上,家里宅基地小的朋友們趕緊看看吧,沒準有你喜歡的款式呢。
方案一:農村私人二層小別墅設計圖,占地100平米左右,造價16萬
圖紙介紹:本戶型占地100平米左右,坡屋頂和平屋頂相結合,方便放太陽能等設備,這款歐式別墅,主體簡約時尚,外墻沒有過多裝飾和浮夸造型,方方正正的戶型看著就舒服,布局合理實用,造價經濟,施工簡單,非常適合農村自建。 占地面積:9.6m*11.1m,104平方米左右; 建筑層高:二層; 建筑高度:10.47米(含屋頂); 設計功能: 一層戶型:客廳、小廳、廚房、餐廳、臥室、衛生間; 二層戶型:臥室(帶衛生間)x4、陽臺; ![]() ![]() ![]() ![]() 方案二:造價15萬農村二層小樓設計圖,經濟實用,占地105平米
圖紙介紹:本戶型造價15萬元,經濟實用,外觀小巧精致,配色協調,戶型南北通透,經典、實用,外觀漂亮、內在實用均可兼得,是設計師比較推薦的小戶型方案。 占地面積:9.34m*11.24m,105平方米左右; 建筑層高:二層; 建筑高度:8.1米(含屋頂); 設計功能: 一層戶型:客廳、餐廳、廚房、衛生間、臥室、儲物間; 二層戶型:客廳、臥室x2、書房、衛生間; ![]() ![]() ![]() ![]() 方案三:占地100平米左右二層樓房設計圖,施工簡單,造價低
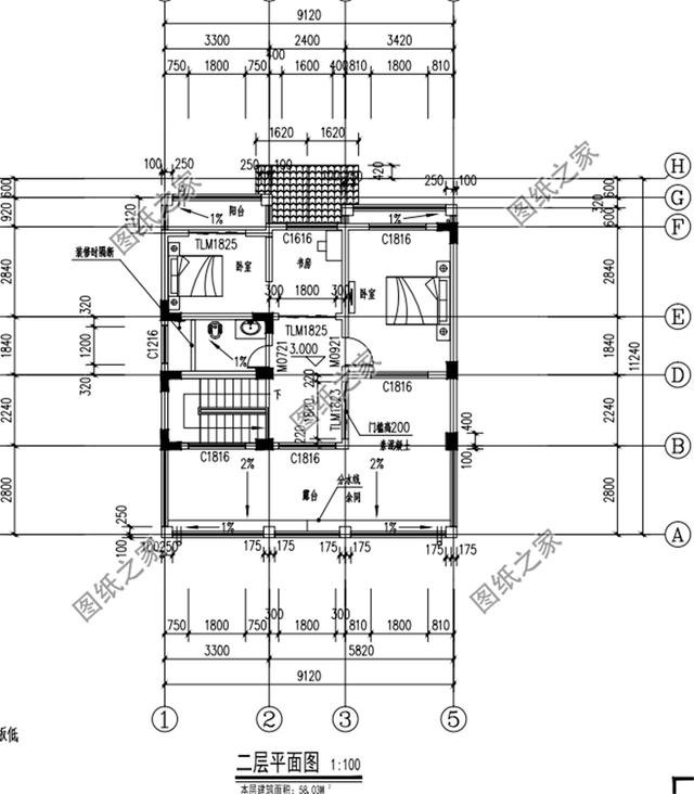
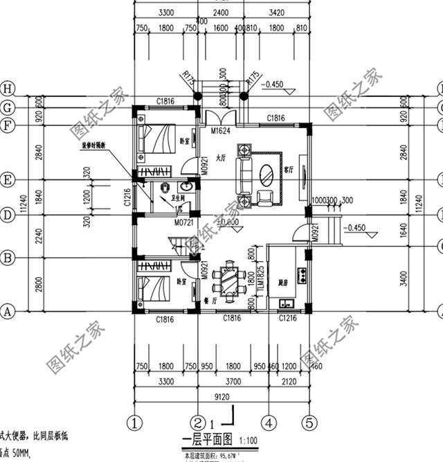
圖紙介紹:本戶型占地100平米左右,施工簡單造價低,外觀簡約大方,主體造價15萬左右,室內布局非常合理,二樓還有大露臺。 占地面積:9.1m*11.2m,95平方米左右; 建筑層高:二層; 建筑高度:7.5米(含屋頂); 設計功能: 一層戶型:客廳、餐廳、廚房、衛生間、臥室×2; 二層戶型:臥室x2、書房、衛生間、陽臺、大露臺; ![]() ![]() ![]() ![]() 喜歡這棟小別墅嗎?喜歡的話告訴小編,繼續為大家分享。
圖紙之家-專注農村別墅/自建房設計18年,集合國內200余位經驗豐富的設計師,被評為口碑最好的農村建筑設計公司! |

新中式二層雙拼樓房設計圖,單戶面積100平米左右,實用美觀
占地:200平方米
仿古中式三合院設計圖紙,帶堂屋,適合農村自建
占地:173平方米
農村三層帶地下室小樓房設計圖,客廳中空,帶書房,旋轉樓梯
占地:130平方米
現代田園風格一層農村別墅設計圖效果圖,帶閣樓設計
占地:220平方米
豪華三層歐式風格別墅圖紙設計,挑空客廳大面寬大戶型
占地:225.72平方米
農村二層半別墅設計圖,簡單實用,造價低
占地:140平方米
四開間一層自建房設計圖,四臥二廳+棋牌室+書房
占地:181.29平方米
爆款農村一層別墅圖紙設計,看過的都說漂亮實用
占地:144.91平方米
三層新農村140平方米房屋設計圖紙,全套施工圖及效果圖
占地:140平方米
二層門面房自建小樓設計圖紙及效果圖,占地150平
占地:151.83平方米
農村二層帶車庫四合院別墅設計圖,新中式外觀圖片,戶型實用方
占地:247平方米
140平方米三層豪華新中式別墅設計圖紙帶外觀效果圖
占地:141.35平方米
二層農村房屋設計圖紙,帶效果圖和全套施工方案圖
占地:多種戶型
三層新中式別墅設計圖,面寬12米經典漂亮
占地:154.93平方米
8.5×12米四層歐式房屋設計圖紙,占地100平,落地窗中嵌入了雕花
占地:100平方米
兩層半30萬農村自建房別墅設計圖紙,客廳挑空,帶大露臺
占地:130平方米
農村實用三層樓房外觀圖片+全套施工設計圖
占地:106平方米
兄弟雙拼別墅設計戶型圖及設計方案圖,帶外觀效果圖,外觀好看
占地:185平方米(單棟)
三層帶地下室+旋轉樓梯別墅設計圖紙,復式挑空客廳
占地:多種戶型
歐式三層別墅設計圖,低調奢華,實用布局,好設計不容錯過
占地:134.1平方米
推薦:10套新農村自建房設計圖,2026年最新設計
閱讀次數:4825737次
100套鄉村別墅圖片大全,2026年最新設計
閱讀次數:2492203次
6款農村蓋一層平房的設計圖,10萬元就能建起來
閱讀次數:1852637次
這11個一層農村自建房別墅火爆了朋友圈!我最喜歡戶型十!你呢
閱讀次數:750268次
農村6萬元建一層小別墅圖,你敢相信嗎
閱讀次數:567686次
農村5萬塊就能自建房,6套普通房子設計圖分享,你沒看錯!
閱讀次數:419410次
8套農村漂亮三間平房圖片,非常適合在農村修建!
閱讀次數:411197次
農村自建房化糞池怎么做?附方案及施工過程
閱讀次數:391783次
農村一層三間平房設計圖,告別土氣養老房,讓人忍不住點贊
閱讀次數:350581次
新農村二層樓房圖片造價12萬,挑一套回家建房吧!
閱讀次數:349126次
