
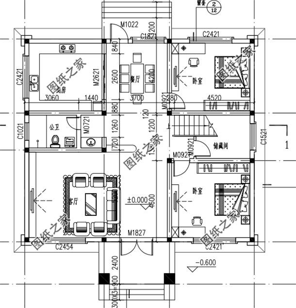
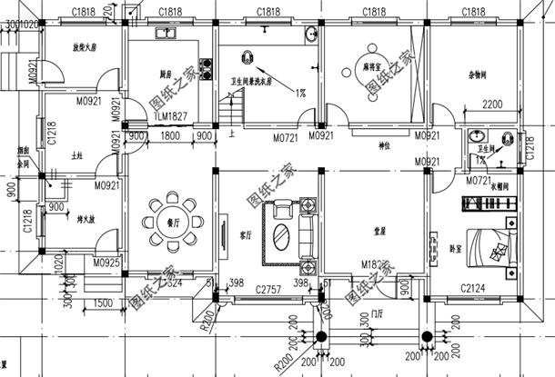
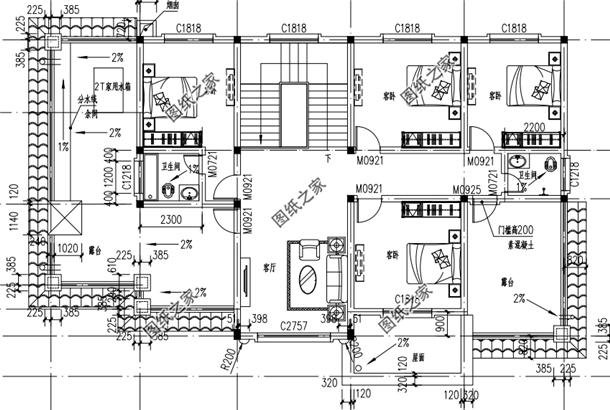
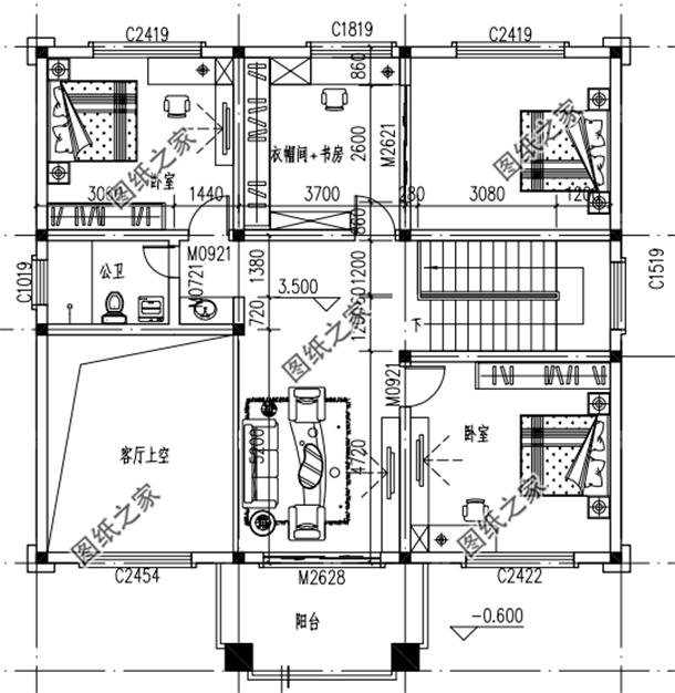
戶型一:120平方房子設計圖及外觀圖片圖紙介紹:本戶型為占地120平方米的二層鄉村樓房設計圖,帶屋頂花園,內部設計考慮風水布局,絕對風水好,120平米的設計為主流面積,戶型是經典戶型,設計師主推。 ![]() 占地面積:12m*10m,120平方米左右; 建筑層高:二層; 建筑高度:8.60米(含屋頂); 設計功能: 一層戶型設計:客廳(堂房)、臥室、廚房、餐廳、衛生間、雜物房 二層戶型設計:客廳、娛樂室、臥室x3、露臺 ![]() ![]() 戶型二:歐式二層別墅平面圖,及外觀效果圖圖紙介紹:歐式二層別墅平面圖,外觀因為多類型窗戶的設計顯得別具一格,二樓的大露臺和小陽臺讓農村生活更具多樣性,室內布局在滿足日常居住的需求的同時,也注重品質享受。 ![]() 占地面積:19m*12.5m,202平方米左右; 建筑層高:二層; 建筑高度:9.59米(含屋頂); 設計功能: 一層戶型:門廳、客廳、堂屋、神位、廚房、餐廳 、放柴火房、土灶、烤火房、麻將室、雜物間、臥室(帶衛生間)、衛生間兼洗衣房; 二層戶型:客廳、臥室(帶衛生間)、客臥x3、衛生間、露臺; ![]() ![]() 戶型三:新中式農村自建二層別墅設計圖,客廳中空圖紙介紹:新中式農村自建二層別墅設計圖,占地160平米左右,客廳中空,外觀大氣。別墅配色明亮簡潔很現代化,整體外觀錯落有致,造型精美獨特,一棟漂亮房子是男人面子的象征,也是一個家族興旺的體現。房子建的好,自然有很多人來你家串門了。 占地面積:13.0m*13.9m,160平方米左右; ![]() 建筑層高:二層; 建筑高度:10.17米(含屋頂); 設計功能: 一層戶型:客廳、餐廳、廚房、衛生間、臥室x2、儲藏間; 二層戶型:客廳上空、客廳、臥室x3、衣帽間、衛生間、陽臺; ![]() ![]() 以上就是三款農村簡約自建房外觀圖,戶型是經典戶型,設計師主推。
圖紙之家-專注農村別墅/自建房設計18年,集合國內200余位經驗豐富的設計師,被評為口碑最好的農村建筑設計公司! |

260平方米歐式四層別墅設計圖20X18米,造價108萬
占地:260平方米
140平方米新農村二層自建平屋頂房屋設計圖紙帶外觀效果圖
占地:140平方米左右
160平小開間大進深農村三層別墅設計圖紙
占地:158.73平方米
占地170平米2026新款三層別墅設計圖片及設計方案
占地:170平方米
四間兩層別墅房屋設計圖,外觀效果圖好看
占地:235平方米
適合兄弟自建的二層雙拼別墅設計方案,帶效果圖
占地:180平方米
農村25萬元二層小樓圖,經典大氣建成20年不過時
占地:150平方米
高端大氣三層別墅設計圖,建好就是村里最靚的
占地:120平方米
占地200平農村二層自建房設計方案戶型,陽面臥室多
占地:208平方米
帶屋頂平臺的一層農村小別墅圖,有閣樓有露臺
占地:152平方米
農村帶地下室二層半自建房屋設計圖,樓中樓設計,歐式風格
占地:140平方米
20萬左右歐式二層小別墅設計圖,100平米和130兩個戶型
占地:多種戶型
180平方米漂亮大氣三層雙拼別墅設計圖,自建房圖片
占地:186平方米
一層中式四合院別墅設計圖,符合國人審美,簡單大氣穩妥沉穩
占地:388平方米
占地180平方米二層農村新款樓房別墅設計圖,外觀漂亮
占地:180平方米
190平方米新農村三層(二層半)雙拼房屋設計圖紙,兄弟合建
占地:192平方米左右
現代風格建房圖紙二層別墅設計方案,外觀百看不厭
占地:多戶型可選
地中海風格二層別墅設計圖方案,含外觀效果圖
占地:130平方米
簡單實用二層自建房子設計圖,主體造價僅17萬
占地:106.387平方米
新中式二層雙拼樓房設計圖,單戶面積100平米左右,實用美觀
占地:200平方米
推薦:10套新農村自建房設計圖,2026年最新設計
閱讀次數:4825737次
100套鄉村別墅圖片大全,2026年最新設計
閱讀次數:2492203次
6款農村蓋一層平房的設計圖,10萬元就能建起來
閱讀次數:1852637次
這11個一層農村自建房別墅火爆了朋友圈!我最喜歡戶型十!你呢
閱讀次數:750268次
農村6萬元建一層小別墅圖,你敢相信嗎
閱讀次數:567686次
農村5萬塊就能自建房,6套普通房子設計圖分享,你沒看錯!
閱讀次數:419410次
8套農村漂亮三間平房圖片,非常適合在農村修建!
閱讀次數:411197次
農村自建房化糞池怎么做?附方案及施工過程
閱讀次數:391783次
農村一層三間平房設計圖,告別土氣養老房,讓人忍不住點贊
閱讀次數:350581次
新農村二層樓房圖片造價12萬,挑一套回家建房吧!
閱讀次數:349126次
