
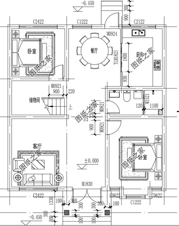
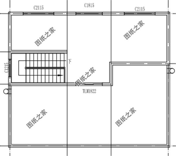
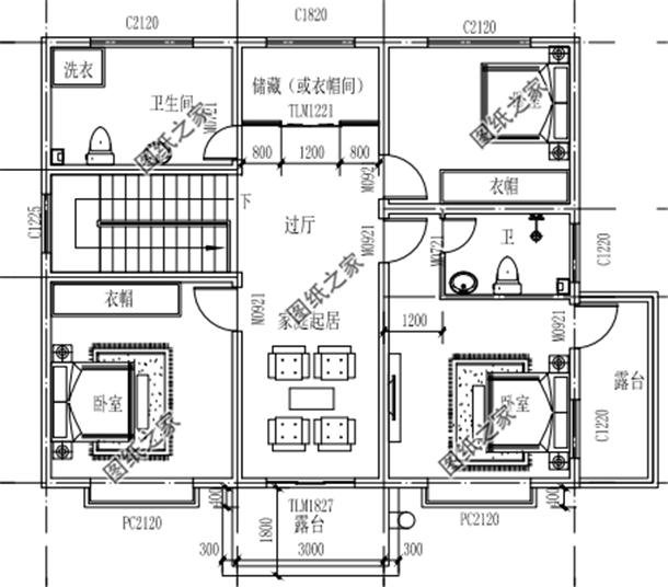
別墅圖紙一:農村一層四間平房設計圖紙,含外觀圖片圖紙介紹:本戶型為農村一層四間平房設計圖方案,含外觀圖片,整體造型美觀、大氣,戶型布局非常合理,4個臥室滿足絕大部分家庭使用。 ![]() 占地面積:16.00m*12.00m,190平方米左右; 建筑層高:一層; 建筑高度:6.18米(含屋頂); 設計功能: 一層:門廳、客廳、餐廳、廚房、衛生間、臥室x4(其中1個臥室帶衣帽間和衛生間,1個臥室帶衛生間); ![]() 別墅圖紙二:農村二層小樓圖,簡單易建圖紙介紹:農村二層小樓圖,簡單易建。簡化設計,戶型簡約,外墻色彩簡單溫和,施工簡單沒有難度。一般的農村家庭,建個兩層的小別墅就足夠居住了。 ![]() 占地面積:10.0m*11.0m,116平方米左右; 建筑層高:二層; 建筑高度:9.2米(含屋頂); 設計功能: 一層戶型:客廳、餐廳、廚房、衛生間、臥室×2; 二層戶型:臥室x3、兒童房(可以做棋牌室)衛生間、陽臺; ![]() ![]() 別墅圖紙三:100平米三層樓上設計圖片,戶型簡約時尚圖紙介紹:100平方三層樓房設計圖及圖片,三層設計一個整體的大空間,業主可以自行隔斷,靈活使用有限的空間。外立面采用淺黃色搭配屋頂灰色,清新優雅。 ![]() 占地面積:10.8m*9.0m,一層占地100平方米左右; 建筑層高:三層; 建筑高度:12.6米(含屋頂); 設計功能: 一 層:客廳、廚房、餐廳、臥室(衛生間)、衛生間、儲藏間; 二 層:起居室、臥室(帶衛生間、露臺)、臥室×2、衣帽間、衛生間、露臺; 三 層:大露臺、房間功能自定義; ![]() ![]() ![]() 以上就是農村最新房子款式,戶型方正大氣,農村蓋房就是要吸引人,農村人看了都喜歡。
圖紙之家-專注農村別墅/自建房設計18年,集合國內200余位經驗豐富的設計師,被評為口碑最好的農村建筑設計公司! |

新中式三層別墅,旋轉樓梯+挑空客廳,高級感拉滿
占地:125平方米
120平方兩層房子設計圖及圖片,外觀大方好看,內部結構合理
占地:120平方米
農村兩層新中式自建房屋設計圖,受歡迎的帶小配房戶型
占地:多戶型可選
三層帶露臺21萬別墅設計圖,占地面積100平米左右
占地:106平方米
13×10米現代簡約風格三層別墅圖,坡屋頂和平屋頂完美結合
占地:120平方米
面寬13米簡簡單單一層農村自建別墅設計圖,方正大氣經濟宜居
占地:126.1平方米
農村一層中式三合院太香了!白墻黛瓦,有院有景超宜居
占地:364.72平方米
90平農村自建房二層新款,占地不大但很實用,
占地:88平方米
造型對稱的簡約二層別墅設計圖紙,戶型布局好,13x13米5室2廳
占地:151.94平方米
2026年最新款四間二層別墅設計圖,15米乘13米
占地:171.01平方米
兩層半20萬農村自建房,占地120平米左右
占地:120平方米
一層帶商鋪的四層樓房別墅設計圖紙和效果圖,房屋戶型圖
占地:133平方米
兩層半30萬農村自建房別墅設計圖紙,客廳挑空,帶大露臺
占地:130平方米
二層帶地下室樓房設計方案,效果圖+全套施工圖
占地:160平方米
歐式風格高檔三層別墅設計圖紙,帶高清外觀效果圖
占地:105平方米
面寬13米帶堂屋三層農村別墅圖,新中式大氣風格
占地:151.58平方米
客廳中空三層復式別墅房屋設計圖,帶外觀效果圖
占地:145平方米
農村200平一層別墅房屋設計圖,外觀圖片時尚、漂亮
占地:200平方米
徽派120平新農村住宅設計方案,帶外觀效果圖
占地:120平方米
農村中式一層合院別墅設計圖,帶小院子規劃設計
占地:202平方米左右
推薦:10套新農村自建房設計圖,2026年最新設計
閱讀次數:4825737次
100套鄉村別墅圖片大全,2026年最新設計
閱讀次數:2492203次
6款農村蓋一層平房的設計圖,10萬元就能建起來
閱讀次數:1852637次
這11個一層農村自建房別墅火爆了朋友圈!我最喜歡戶型十!你呢
閱讀次數:750268次
農村6萬元建一層小別墅圖,你敢相信嗎
閱讀次數:567686次
農村5萬塊就能自建房,6套普通房子設計圖分享,你沒看錯!
閱讀次數:419410次
8套農村漂亮三間平房圖片,非常適合在農村修建!
閱讀次數:411197次
農村自建房化糞池怎么做?附方案及施工過程
閱讀次數:391783次
農村一層三間平房設計圖,告別土氣養老房,讓人忍不住點贊
閱讀次數:350581次
新農村二層樓房圖片造價12萬,挑一套回家建房吧!
閱讀次數:349126次
