
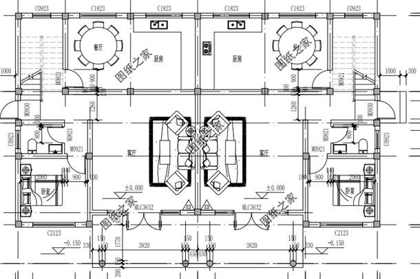
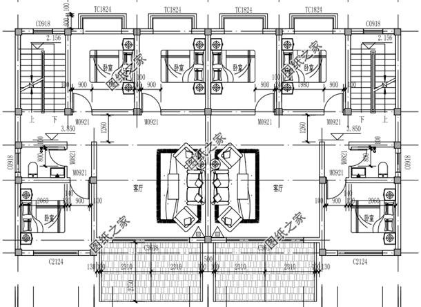
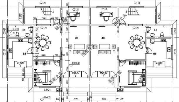
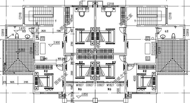
戶型一:農村二層雙拼別墅自建房效果圖紙圖紙介紹:250平方米農村二層雙拼別墅建筑圖紙及效果圖,農村自建房圖片,別墅為典型的歐式風格,室內布局都是一致的,一層有一間臥室,廚房和餐廳一體,方便起居。二層設計3間臥室,臥室朝南并帶有大陽臺。 ![]() 占地面積:24.4m*12m,254平方米左右,單戶127平方米左右; 建筑層高:二層 建筑高度:11.03米 設計功能: 一層房屋戶型:客廳、廚房、餐廳、書房、衛生間、臥室; 二層房屋戶型:起居室、主臥(帶書房)、次臥×2、衛生間、陽臺; ![]() ![]() 戶型二:農村兄弟雙拼四間三層戶型圖及全套圖紙圖紙介紹:兄弟雙拼四間三層戶型圖及全套圖紙,戶型簡單合理,雙拼別墅最主要的一個優點就是,住宅采光面廣,使其擁有了更寬闊的室外空間。 ![]() 占地面積:18.0m*10.6m,184平方米左右,單戶92平左右; 建筑層高:三層; 建筑高度:13.25米(含屋頂); 設計功能: 一層:客廳、餐廳、廚房、臥室、衛生間; 二層:客廳、臥室(帶衛生間)、臥室×3、衛生間; 三層:臥室、娛樂室、衛生間、露臺; ![]() ![]() ![]() 戶型三:簡單大氣二層兄弟雙拼樓房設計圖圖紙介紹:簡單大氣二層雙拼樓房、兩兄弟聯拼別墅房屋設計圖,外觀靚麗,淡黃色外墻搭配紅色屋頂,該戶型不錯,采用對稱設計,外觀對稱,室內布局也是對稱,規整大氣,布局合理、實用。 ![]() 占地面積:26.43m*10.83m,268平方米左右,單戶134平方米左右; 建筑層高:二層 建筑高度:9.7米 設計功能: 一層戶型:玄關、客廳、廚房、餐廳、衛生間、主臥(帶衛生間)、臥室、儲藏間; 二層戶型:主臥(帶衛生間)、次臥×2、衛生間、休閑區、書房、客廳、露臺; ![]() ![]() 以上就是農村一宅兩戶兄弟房效果圖,農村倆兄弟的,可以這樣建,你們喜歡哪一款?
圖紙之家-專注農村別墅/自建房設計18年,集合國內200余位經驗豐富的設計師,被評為口碑最好的農村建筑設計公司! |

一層帶閣樓農村別墅設計圖,多得一層可變空間,太值了!
占地:165.89平方米
四開間兩層別墅設計圖,農村自建住著舒適的好方案!
占地:187.04平方米
農村10萬元一層小別墅設計圖,農村一層自建房屋設計圖
占地:多種戶型
鄉村一層帶閣樓歐式小別墅,“L”型七字設計戶型
占地:194.218平方米
新農村三層房屋cad建筑設計圖紙,磚混結構
占地:138平方米
100平方米新農村住宅二層小別墅設計CAD圖紙及效果圖,10x10米
占地:96平方米
復式別墅農村四層霸氣豪宅設計圖紙,建好你就是村里第一
占地:136.356平方米
占地百平三層歐式別墅設計圖,回到家鄉建一棟,大氣美觀有內涵
占地:99.94平方米
兩層15萬農村自建房設計圖,農村蓋房設計大全圖
占地:130平方米
占地200平農村二層自建房設計方案戶型,陽面臥室多
占地:208平方米
16米乘11米接地氣農村二層自建房圖,帶配房設計
占地:149.8平方米
一層農村必蓋戶型設計方案,養老自住兩相宜,經濟實惠又耐用!
占地:150.36平方米
120平方兩層房子設計圖及圖片,外觀大方好看,內部結構合理
占地:120平方米
面寬8米農村二間二層小別墅設計方案,施工簡單造價低
占地:73.77平方米
造價低經濟簡單的二層農村自建房圖紙設計,簡潔實用
占地:136.08平方米
美式田園二層別墅設計方案圖,全套設計圖+效果圖
占地:235平方米
100平方米農村二層CAD設計圖紙帶外觀圖,12X8米
占地:100平方米
一層農村自建房別墅設計方案,左右對稱布局好
占地:154平方米
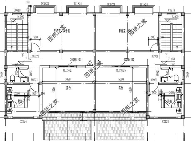
造價便宜的二層雙拼別墅設計圖,造型簡約大氣,進深10米
占地:SP23059
240平農村二層自建別墅設計圖紙,帶你體驗家的溫馨
占地:240平方米
推薦:10套新農村自建房設計圖,2026年最新設計
閱讀次數:4825737次
100套鄉村別墅圖片大全,2026年最新設計
閱讀次數:2492203次
6款農村蓋一層平房的設計圖,10萬元就能建起來
閱讀次數:1852637次
這11個一層農村自建房別墅火爆了朋友圈!我最喜歡戶型十!你呢
閱讀次數:750268次
農村6萬元建一層小別墅圖,你敢相信嗎
閱讀次數:567686次
農村5萬塊就能自建房,6套普通房子設計圖分享,你沒看錯!
閱讀次數:419410次
8套農村漂亮三間平房圖片,非常適合在農村修建!
閱讀次數:411197次
農村自建房化糞池怎么做?附方案及施工過程
閱讀次數:391783次
農村一層三間平房設計圖,告別土氣養老房,讓人忍不住點贊
閱讀次數:350581次
新農村二層樓房圖片造價12萬,挑一套回家建房吧!
閱讀次數:349126次
